QQ登录    

08我家网

2023兔年大吉

送给老妈的现代简约风格宜居十五万全包家装(不含家电)

[复制链接]

1万

帖子

628

原创值

1万

金币

荣誉版主

积分
8155

社区居民忠实会员社区劳模最爱沙发社区明星

发表于 2013-05-24 12:09:37 | 显示全部楼层
小区环境真心不错。
回复

使用道具 举报

471

帖子

0

原创值

659

金币

大四_装修达人

Rank: 4

积分
268

社区居民

发表于 2013-05-24 12:46:02 | 显示全部楼层
我也准备现代简约,过来取取经
回复

使用道具 举报

186

帖子

0

原创值

170

金币

大三_装修里手

Rank: 3Rank: 3

积分
166

社区居民忠实会员

发表于 2013-05-24 13:20:08 | 显示全部楼层
全包的呀,那要仔细看看,学习经验。
回复

使用道具 举报

33

帖子

0

原创值

38

金币

大二_装修学长

脚踏实地  孜

Rank: 2

积分
29

社区居民

 楼主| 发表于 2013-05-26 14:38:32 | 显示全部楼层
      工地放鞭炮,都没请示物业的,恰好边上也有一户在装修,鞭炮噼里啪啦作响,想着反正不是我带头。我们也在选好的良辰吉日点燃了鞭炮,事先把窗户都打开,就感觉楼板都在震动,鞭炮炸很快,等声音一消停,立马跑出了屋子,满屋子的灰尘,呛得个半死。还没办装修手续,在装饰公司陪同下到了物业,在里面一个屁点大的地方,两个小妹子也不是特别熟练,在那里忙手脚不赢办个手续,搞了四十多分钟最后还是没办成,原因只收现金,商量决定空两天再来办理。
回复

使用道具 举报

33

帖子

0

原创值

38

金币

大二_装修学长

脚踏实地  孜

Rank: 2

积分
29

社区居民

 楼主| 发表于 2013-05-26 15:03:22 | 显示全部楼层
首先,给大家晒晒我的户型图,买的是两室两厅,可谓不大不小,买了之后,如果改三房,就略显尴尬,两房,显得有点浪费,当然,做个书房,娱乐房间那这种户型就不错。
QQ图片20130526144643.jpg

  这个就是他们的对这个户型的介绍,像这种大小的,就这么一个户型,选都没得选

QQ图片20130526144528.jpg

这个户型,粗一看,没啥大优点,也没啥大缺点,实际上,进门入户花园比较浪费地方, QQ图片20130526145304.jpg
,这个地方是栏杆后面,我实在想不出为什么要留这么大的空地,思来想去就只有一个解释,为了好看。可对于我们来说,可都是白花花的mimi啊,万万不能浪费的,还带也有个把平方的样子,这里房价7000多一平·

·
第二个我不太满意的地方, QQ图片20130526145744.jpg
空中庭院实在忒大了点,导致卫生间被挤得不成样了,庭院都跟卧室一般大了,卫生间越看越不爽,太小了



除了这两个,其余我还是比较满意的,特别是卧室,全有飘窗,全都能晒太阳,午后暖暖的阳光,惬意···
回复

使用道具 举报

33

帖子

0

原创值

38

金币

大二_装修学长

脚踏实地  孜

Rank: 2

积分
29

社区居民

 楼主| 发表于 2013-05-26 15:32:41 | 显示全部楼层
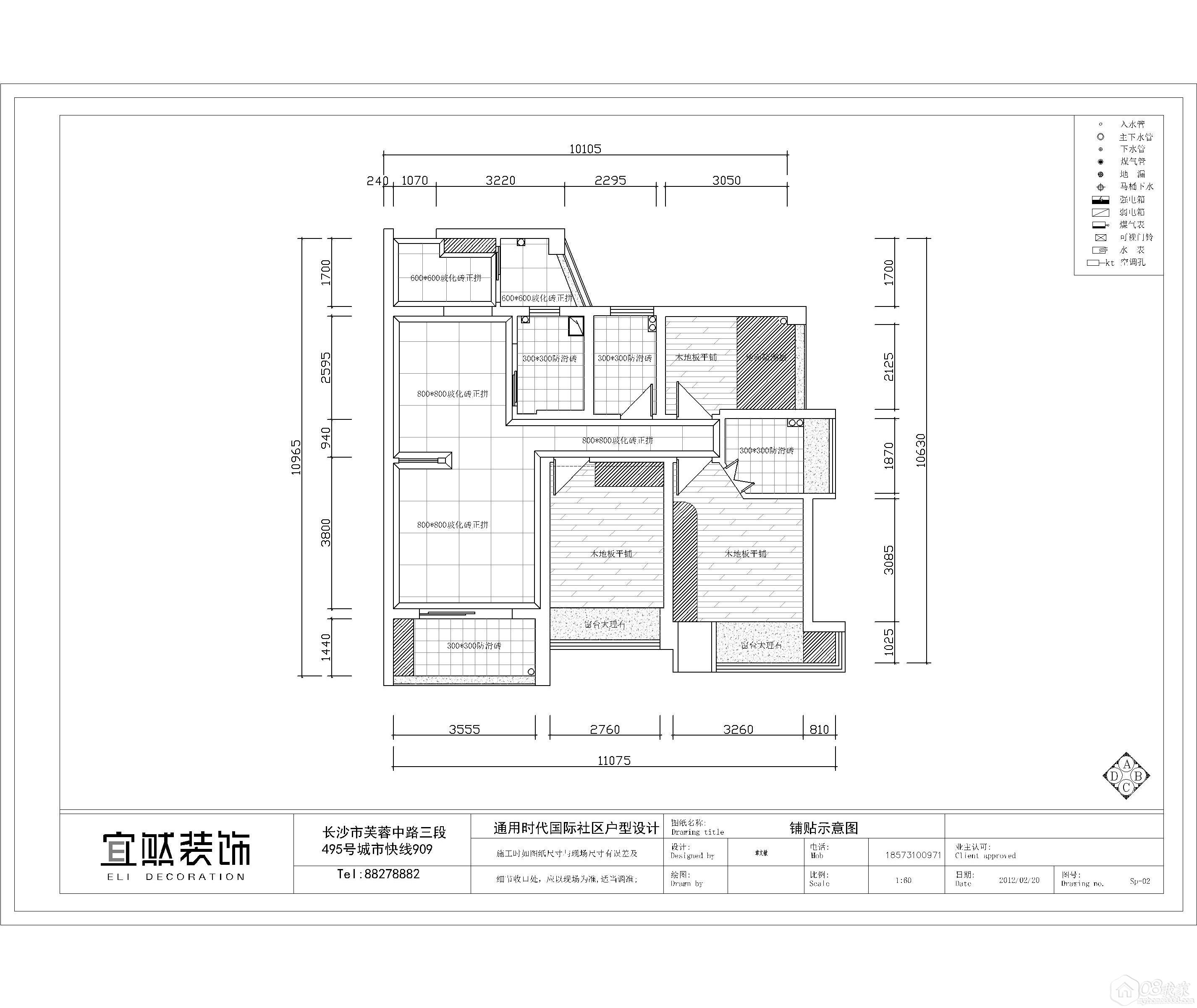
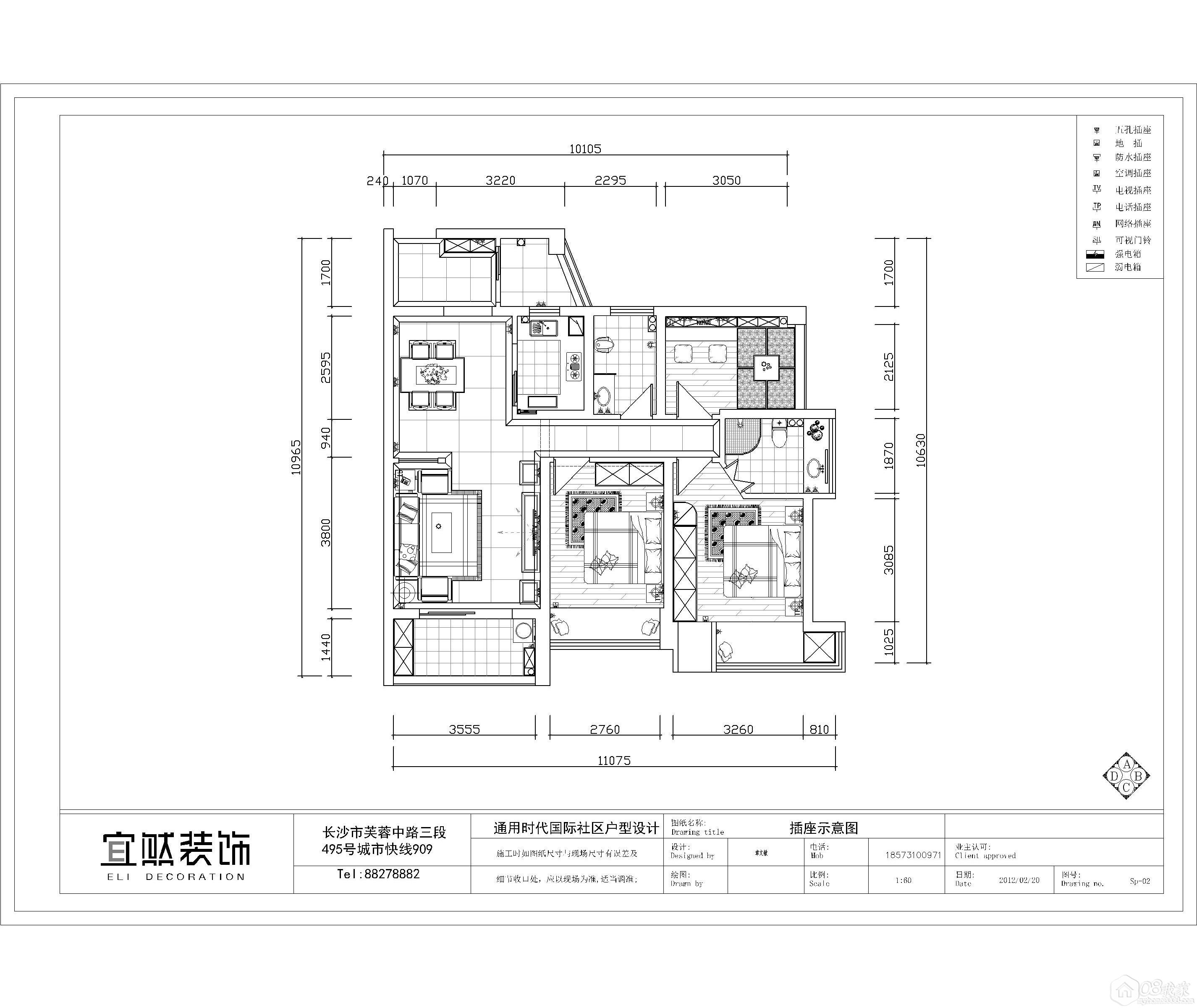
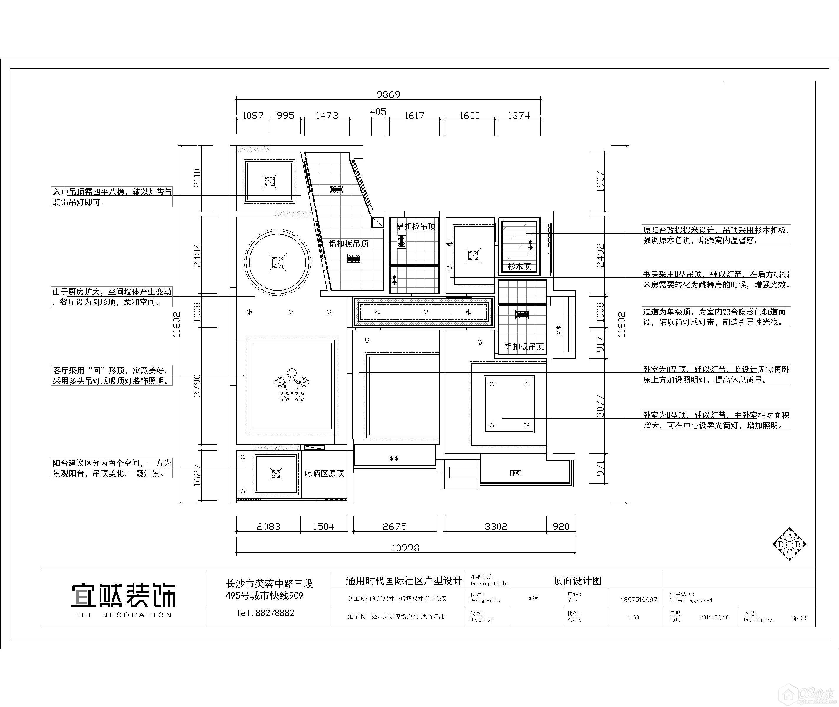
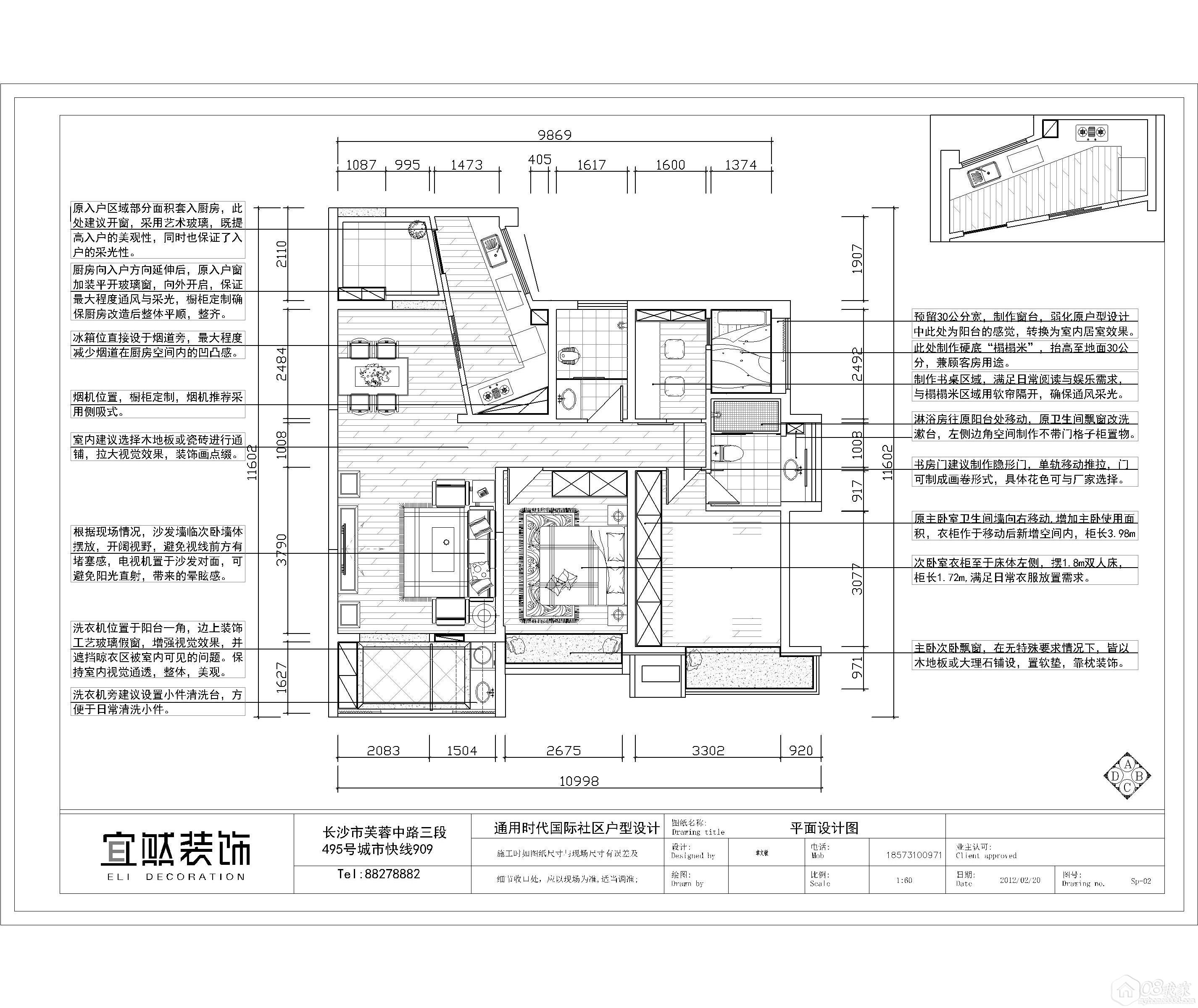
时间就在设计稿审定,改动,纠结,还有老妈的意见,统统汇总,总算是把最后设计确定,设计很简单,老妈要求的更简单,什么吊顶统统不要,造型一律从简,无赖之中又没办法,只得遵从老人家的意思,毕竟以后还是老人家住。
         发几张设计图纸,欢迎大家品鉴,有好的建议欢迎大家指正(水电已经完工)
   通用新文件-Model5.jpg

通用新文件-Model6.jpg

通用新文件-Model3.jpg

通用新文件-Model4.jpg


          通用新文件-Model2.jpg

       还有以前初步设计的,大家看看,哪样更好看吧!
通用新文件-Model12.jpg
通用新文件-Model13.jpg

通用新文件-Model14.jpg
通用新文件-Model15.jpg
回复

使用道具 举报

33

帖子

0

原创值

38

金币

大二_装修学长

脚踏实地  孜

Rank: 2

积分
29

社区居民

 楼主| 发表于 2013-05-26 15:37:18 | 显示全部楼层

回 芹菜 的帖子

芹菜:小区环境真心不错。 (2013-05-24 12:09) 
嘿嘿,是啊 ,特安静,现在还没几个人住,晚上安静的有点吓人
回复

使用道具 举报

33

帖子

0

原创值

38

金币

大二_装修学长

脚踏实地  孜

Rank: 2

积分
29

社区居民

 楼主| 发表于 2013-05-26 15:37:59 | 显示全部楼层

回 bronx 的帖子

bronx:我也准备现代简约,过来取取经 (2013-05-24 12:46) 
我都是甩手掌柜,什么都不管,只看看材料,看看进度,不过,有什么可一起交流撒
回复

使用道具 举报

33

帖子

0

原创值

38

金币

大二_装修学长

脚踏实地  孜

Rank: 2

积分
29

社区居民

 楼主| 发表于 2013-05-26 15:38:32 | 显示全部楼层

回 东经 的帖子

东经:全包的呀,那要仔细看看,学习经验。  (2013-05-24 13:20) 
一起学习
回复

使用道具 举报

33

帖子

0

原创值

38

金币

大二_装修学长

脚踏实地  孜

Rank: 2

积分
29

社区居民

 楼主| 发表于 2013-05-26 15:41:18 | 显示全部楼层
匆忙发了两个帖子,又要出去了,忙碌命啊·····未完待续
回复

使用道具 举报

您需要登录后才可以回帖 登录 | 立即注册

本版积分规则