QQ登录    

08我家网

2023兔年大吉

方便上班方便孩子的学区超小户型房

[复制链接]

74

帖子

0

原创值

91

金币

大三_装修里手

Rank: 3Rank: 3

积分
70

社区居民

 楼主| 发表于 2013-05-20 16:05:50 | 显示全部楼层
施工图出来了,设计师走的简欧路线,人家还是很有想法的,可惜我预算有限,是希望又好看又方便又环保又便宜 ,后天跟装修师傅见面看房造预算,如果还能接受,6月2日我就准下水啦!希望一切顺利,收房、预算、师傅啥的不要出西西!
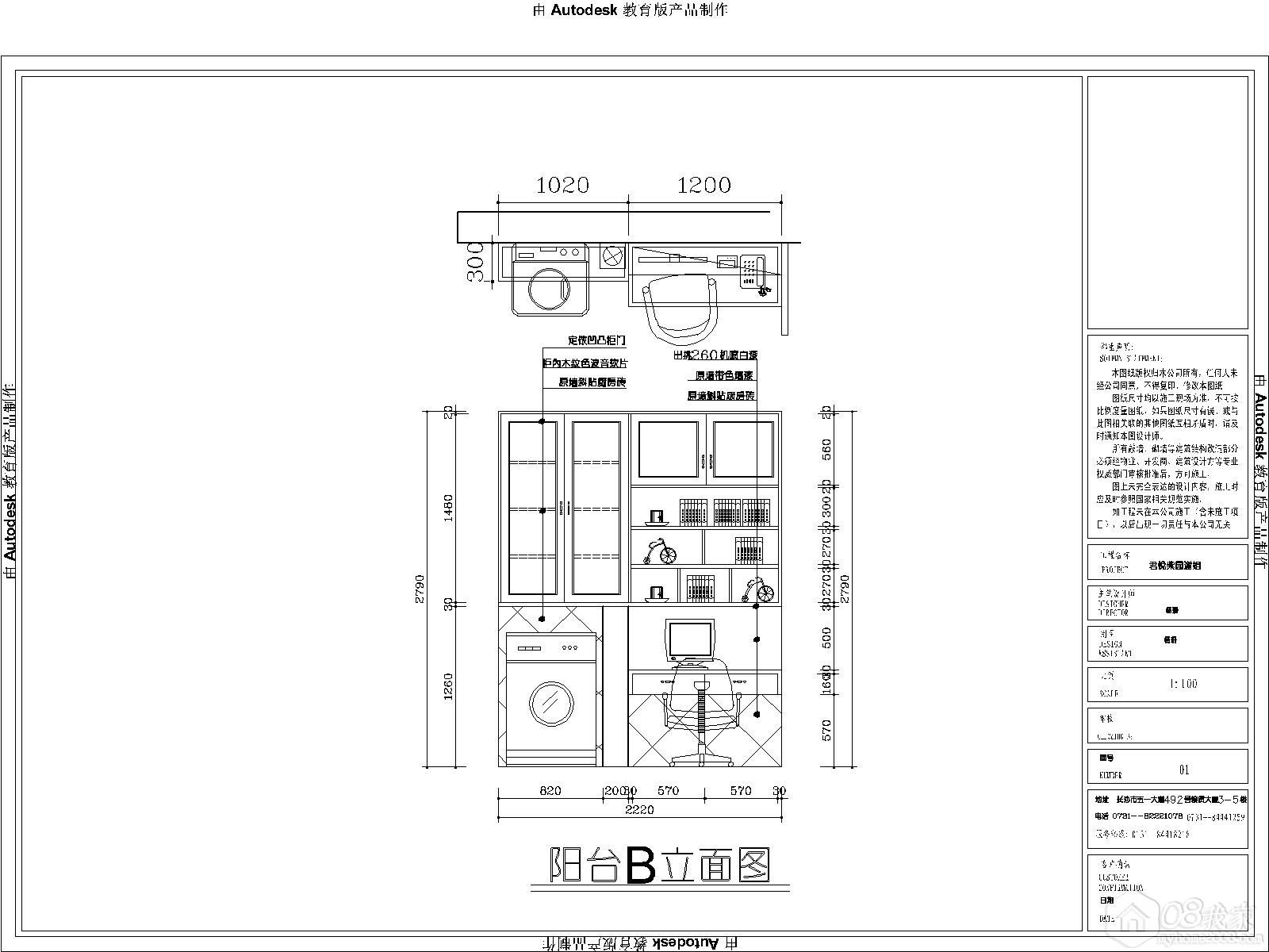
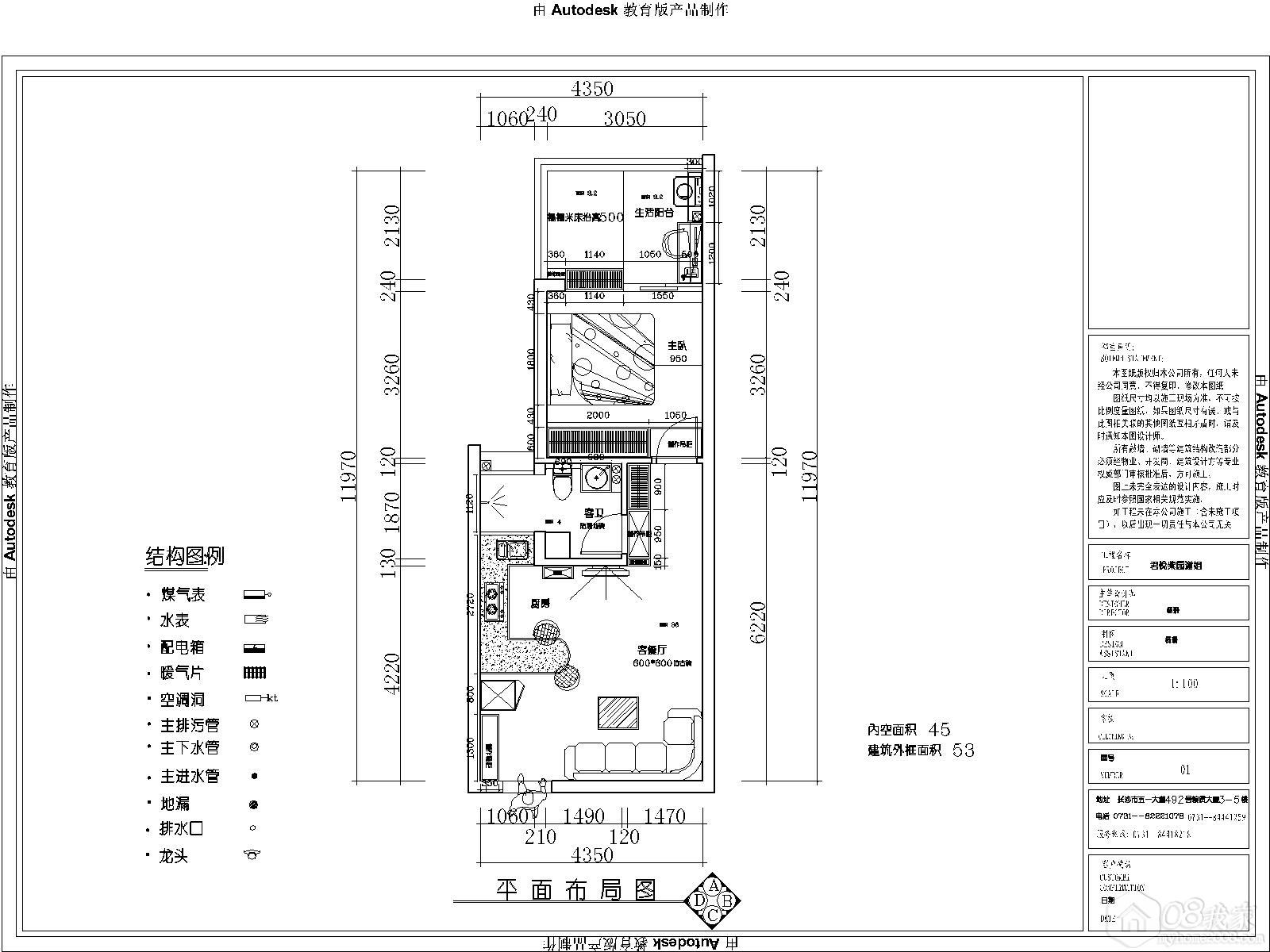
        上几张设计详图(还没弄太清怎么写装修日志,只知道在快速回复你继续发,请哪位前辈指点一下!
    君悦紫园谢姐2-Model.jpg

       君悦紫园谢姐-8Model.jpg

       君悦紫园谢姐14-Model.jpg
回复

使用道具 举报

74

帖子

0

原创值

91

金币

大三_装修里手

Rank: 3Rank: 3

积分
70

社区居民

 楼主| 发表于 2013-05-21 10:41:27 | 显示全部楼层

今早有收获

因为是开放式厨房,很早前就在关注老板大功率欧式烟机,本来中意于8210,可惜价格太高,于是退而求其次,8008,同样的抽烟功率效果,只是外观不是全不锈钢,照明不是LED灯,自我觉得牺牲一点外观,只要抽烟效果相当还是可以接受的,之前看的套餐价格一直是3580,在齐家网团购看的也是,都准备六一去买了,可今天一大早接到京东降价通知,3199,还送一个不锈钢水壶,于是果断拿下,呵呵,今早就有收获哦,六一可以好好带崽玩了,不用去挤团购了
     
rBEHZVDzw4UIAAAAAAEbcB8T4DMAADn7AFxf7YAARuI853.jpg

      
回复

使用道具 举报

1万

帖子

628

原创值

1万

金币

荣誉版主

积分
8155

社区居民忠实会员社区劳模最爱沙发社区明星

发表于 2013-05-26 12:53:26 | 显示全部楼层
写装修日志
     就是你在快速回复里,写文字,贴图片就可以了哇。然后点发布。
     发布以后,假如,你要更改,点击这个刚发帖子的左上角   有个编辑。  然后就进入编辑页面。
一般情况下,我都是在快速回复里  ,写几个字。然后发布它,再点编辑。  在编辑页面,进行全面的日记。
       哈哈,因为我觉得那里页面更大。看起来,还有使用起来,更方便
回复

使用道具 举报

74

帖子

0

原创值

91

金币

大三_装修里手

Rank: 3Rank: 3

积分
70

社区居民

 楼主| 发表于 2013-05-28 08:40:26 | 显示全部楼层

回 芹菜 的帖子

芹菜:写装修日志
     就是你在快速回复里,写文字,贴图片就可以了哇。然后点发布。
     发布以后,假如,你要更改,点击这个刚发帖子的左上角   有个编辑。  然后就进入编辑页面。
一般情况下,我都是在快速回复里&nbs .. (2013-05-26 12:53)
知道了 ,谢谢!
回复

使用道具 举报

74

帖子

0

原创值

91

金币

大三_装修里手

Rank: 3Rank: 3

积分
70

社区居民

 楼主| 发表于 2013-05-31 08:45:59 | 显示全部楼层
待会去办装修手续了,加油!
回复

使用道具 举报

74

帖子

0

原创值

91

金币

大三_装修里手

Rank: 3Rank: 3

积分
70

社区居民

 楼主| 发表于 2013-05-31 16:01:51 | 显示全部楼层

达人帮忙看看水电单子开大了吗?

达人帮忙看看水电单子开大了吗?53平米小房,设计入之前发的,今天水电师傅开的单子,水方面的暂不说,光电就开了2.5平方的红色一卷,蓝色一卷,黄色两卷,4个平方的红色一卷,蓝色1卷,天啊,那不有6百米线啊,师傅说是走三根线,要这么多,好似乎没这么多就做不出来,我现在又不能去一米米量,又怕他不肯做,怎么办啊?请求08各位能人帮忙,也问问金杯电线的价格是不是2.5平方150左右,4平方240左右?
回复

使用道具 举报

1万

帖子

628

原创值

1万

金币

荣誉版主

积分
8155

社区居民忠实会员社区劳模最爱沙发社区明星

发表于 2013-06-02 21:35:44 | 显示全部楼层
一共8卷线。还有的多啊。建面135,实际110的样子。供参考
回复

使用道具 举报

74

帖子

0

原创值

91

金币

大三_装修里手

Rank: 3Rank: 3

积分
70

社区居民

 楼主| 发表于 2013-06-04 09:31:32 | 显示全部楼层

回 芹菜 的帖子

芹菜:一共8卷线。还有的多啊。建面135,实际110的样子。供参考 (2013-06-02 21:35)
谢谢芹菜
回复

使用道具 举报

74

帖子

0

原创值

91

金币

大三_装修里手

Rank: 3Rank: 3

积分
70

社区居民

 楼主| 发表于 2013-06-04 10:11:21 | 显示全部楼层
   开工了,暂时还算顺利,虽然中间也出过一点小西西,但终究按设计图纸进行了改造,物业的上来又是一顿七里八里的,无非就是这也不能敲,那也不能改,还重新量敲墙的尺寸,唉,随他们啦,反正别人家改了的,我就能改,多交点敲墙费、物管费我认了!
      只是预算啊永远是我心里的一块痛,超多少是个头啊,老公开始希望我5万搞定一切(有一部分电器家具能搬过来用的),我左算右算不行,说得6万,可现在看来能7万搞定就不错了
     水电师傅要明天才来,开工四天的成果先给大家看看。
敲掉原来客厅的窗户,充分利用外面的看台
       1370067775991.jpg
窗户往外移550公分,这里做橱柜水槽 ,余下的看台部分封起来做淋浴间
         1370232724395.jpg
鼓起勇气把大门往左平移了25公分,这样入门左边就可以做鞋柜了
       1370232778034.jpg
换个方向看看台,最外面还得把敲掉的窗户安上,中间是淋浴间,不洗澡时两个窗户可以都打开,这样可以缓解一下客厅的采光和通风问题
       1370232832027.jpg
家处九楼,阳台景色还算开阔,阳台有6.5个平米,全封闭起来做小孩房
1370068208250.jpg
回复

使用道具 举报

74

帖子

0

原创值

91

金币

大三_装修里手

Rank: 3Rank: 3

积分
70

社区居民

 楼主| 发表于 2013-06-05 14:17:03 | 显示全部楼层

水电大单被我搞定

       最近一直被师傅开的水电材料单所困扰,你问他为什么要这么多电线,他反正振振有词,好似乎没这么多线就搞不成,还一种嫌我小气不懂行的感觉,让我十分憋火,可又不好跟他们翻脸,毕竟我是不懂,没有很好的证据反驳他,看来跟这个为头的姓李的小子策是没用的,再想办法!
       今天水电师傅正式进场,中午我下了班在食堂随便吃了个饭就往房子赶,师傅是河南的,不善言辞,但做事挺勤快,十二点多了还在干活没吃饭,我一见状,立马下楼帮师傅买了个饭带上来,叫他先休息吃饭,又把随身带的口罩给了他几个,说灰尘太大,带个口罩还是好点,师傅接过去连声说谢谢,我见气氛和谐无比,心想现在提提电线的问题没准有戏。于是商量似的口吻跟师傅聊起家里的灯具和电器的安装使用,真是不聊不知道,一聊惊喜吓我一大跳,师傅说按我的说发,2.5平方的线一卷就够了!我就说嘛,鸟窝大的房子那要的那么多线,那个姓李的所谓设计师不是坑爹吗,想赚钱说在明处啊!搞定,明天退线去!以后有问题直接跟做事的师傅交流商量实在多了,一般搞名堂的就是什么设计师啊,工头的!
回复

使用道具 举报

您需要登录后才可以回帖 登录 | 立即注册

本版积分规则