QQ登录    

08我家网

2023兔年大吉

[其他]【最难户型我来搞】2号户型我之见!

[复制链接]

400

帖子

0

原创值

1167

金币

设计师

让空间与人共舞,让生活与自然接

Rank: 8Rank: 8

积分
548

社区居民忠实会员社区明星

发表于 2013-05-19 01:58:22 | 显示全部楼层 |阅读模式
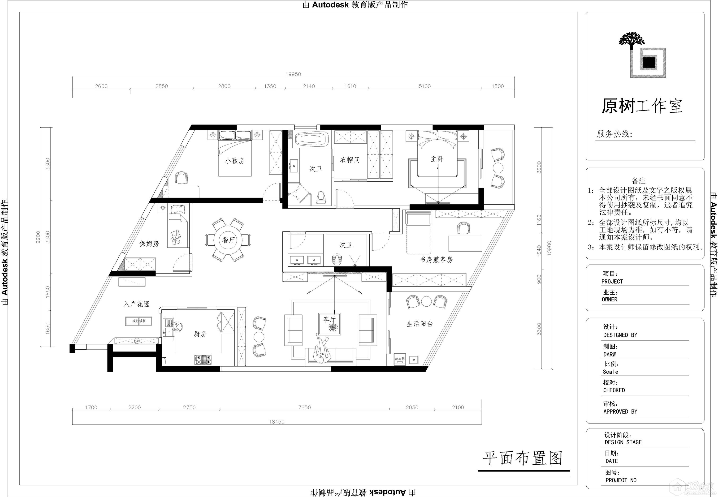
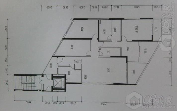
半夜可以抛去城市的吵闹,让我静下心来完成了这个户型布局。一直到现在才上图,真是不好意思。这次选了2号户型。不好之处希望大家指正!!!!

请输入描述

请输入描述


请输入描述

请输入描述

房子建筑面积180平方,在10层楼的6楼,看着房子大,但实际一点不好用。家里现在常住人口是4人,一家3口加一个保姆,孩子还小,才9个月大,所以父母有时候会过来小住,有时是把小孩放父母家。
客户问题:
1、几间房如何安排?
   我俩是电脑一族,书房是肯定要的,而且很重要。原打算卧室2作为小孩房,优点是够大,缺点是离主卧有点远;如果将阳台2打通,书房做小孩房,总觉得还是不够大。   
2、需要一个保姆房

   原打算将卧室1分出一小间做保姆房,如何分?或者保姆房安排在什么位置?
3、书房的门开在什么地方?
4、冰箱放在什么位置?
   家里面积大,但厨房的使用面积感觉好小,本打算用双门冰箱,现在估计不行,冰箱摆在什么位置?
5、入户过道长
   入户花园小,入户过道长。让人一进门感觉好小气,视野一点都不开阔。本来想做开发式厨房的,进门一线吧台那样,可以看到整个厨房和客厅,但还是担心油烟问题。 )
6、衣帽间和主卫  
   每次进主卫都要经过衣帽间,这是什么设计?哎,感觉从主卧上厕所,要经过无数张门~~~


设计说明:
1.为了让入户一进去不显得过于小气,我把厨房往里面推,让入户变得宽敞。同时也增加了厨房的空间(解决了业主考虑冰箱的问题)。
2.为了并不让入户过道太长。我把卧室分一小部分做保姆房,留一大部分做餐厅。这样一入户看到的不是一个过道,而是一个很大的餐厅空间。(之前餐厅位置被厨房占用一部分,客厅也占用一部分。让客厅看起来更加气派!)可能大家觉得房间是不是变少了,其实业主已经要求必须要有保姆房。还有小孩子9个月,短时间几年不会单独分开睡。现在的小孩房就可以做客房用。如果以后小孩需要独立房间之后。书房兼客房就可以住客房用。摆1.5米的沙发床完全也影响不到书房。(毕竟父母不是常住)
3.主卧衣帽间有一长条衣柜朝主卧,其余的都为衣帽间。主卫也加了一个淋浴区。方便不泡澡时就可以淋浴,或者泡完澡后淋浴。
4.次卫不好通风。光线也不好。建议在卫生间加个窗。如果不加,太黑建议装一个常明灯。

1万

帖子

0

原创值

9611

金币

论坛元老

掰子姐

Rank: 15Rank: 15Rank: 15Rank: 15Rank: 15

积分
11275

吃货社区居民社区明星忠实会员最爱沙发新人进步奖幽默大师奖贴图大师奖原创先锋奖金点子奖特殊贡献奖宣传大使奖优秀斑竹奖终身成就奖灌水天才奖社区劳模原创达人

发表于 2013-05-19 10:53:58 | 显示全部楼层
保姆房会不会太小啊?
回复

使用道具 举报

1274

帖子

0

原创值

399

金币

装修大学_研究生

我是卖活性炭的茶茶同学!

Rank: 5Rank: 5

积分
1078

社区居民忠实会员社区劳模社区明星

发表于 2013-05-19 11:30:56 | 显示全部楼层
保姆房本来就不需要太大吧? file:///C:\\DOCUME~1\\ADMINI~1\\LOCALS~1\\Temp\\SGTpbq\\3600\\00B9F086.gif嘿嘿。
回复

使用道具 举报

7878

帖子

0

原创值

3159

金币

荣誉版主

积分
7785

社区居民社区明星终身成就奖宣传大使奖优秀斑竹奖原创先锋奖忠实会员最爱沙发社区劳模原创达人

发表于 2013-05-19 12:00:14 | 显示全部楼层
2号户型应该是这次入围户型里
网友公认最难的户型了
回复

使用道具 举报

400

帖子

0

原创值

1167

金币

设计师

让空间与人共舞,让生活与自然接

Rank: 8Rank: 8

积分
548

社区居民忠实会员社区明星

 楼主| 发表于 2013-05-19 12:35:40 | 显示全部楼层

回 叽歪 的帖子

叽歪:保姆房会不会太小啊? (2013-05-19 10:53)
保姆房一般是一个人睡,已经足够。如果太大会缩小餐厅的空间。
回复

使用道具 举报

267

帖子

0

原创值

82

金币

大四_装修达人

Rank: 4

积分
235

社区居民忠实会员

发表于 2013-05-19 16:01:25 | 显示全部楼层
嗯,原树大师的设计很大胆,我想都没想过,毕竟是大师的想法
看了说明,有的确实有道理
呵呵,谢谢啦
回复

使用道具 举报

1753

帖子

0

原创值

504

金币

装修大学_博士生

Rank: 6Rank: 6

积分
1586

社区居民忠实会员社区劳模最爱沙发社区明星

发表于 2013-05-20 08:40:34 | 显示全部楼层
   这个户型很有挑战性吧


可是……呜呜      我还是最喜欢看效果图    直接明了
回复

使用道具 举报

1万

帖子

0

原创值

9611

金币

论坛元老

掰子姐

Rank: 15Rank: 15Rank: 15Rank: 15Rank: 15

积分
11275

吃货社区居民社区明星忠实会员最爱沙发新人进步奖幽默大师奖贴图大师奖原创先锋奖金点子奖特殊贡献奖宣传大使奖优秀斑竹奖终身成就奖灌水天才奖社区劳模原创达人

发表于 2013-05-20 11:11:23 | 显示全部楼层
又回过头来看看,与其他设计相比,个人认为亮点在餐厅~
回复

使用道具 举报

400

帖子

0

原创值

1167

金币

设计师

让空间与人共舞,让生活与自然接

Rank: 8Rank: 8

积分
548

社区居民忠实会员社区明星

 楼主| 发表于 2013-05-21 10:01:17 | 显示全部楼层

回 叽歪 的帖子

叽歪:又回过头来看看,与其他设计相比,个人认为亮点在餐厅~ (2013-05-20 11:11)
叽歪大人说的很正确,亮点在餐厅,因为解决了过道过长和餐厅拥挤的问题。呵呵!
回复

使用道具 举报

400

帖子

0

原创值

1167

金币

设计师

让空间与人共舞,让生活与自然接

Rank: 8Rank: 8

积分
548

社区居民忠实会员社区明星

 楼主| 发表于 2013-05-21 10:03:37 | 显示全部楼层

回 米粒儿 的帖子

米粒儿:嗯,原树大师的设计很大胆,我想都没想过,毕竟是大师的想法
看了说明,有的确实有道理
呵呵,谢谢啦 (2013-05-19 16:01)
呵呵,多谢夸奖。因为户型造型受限,所以要大胆的改才能解决问题。
回复

使用道具 举报

您需要登录后才可以回帖 登录 | 立即注册

本版积分规则