QQ登录    

08我家网

2023兔年大吉

[其他]【最难户型我来搞】2号户型我之见

[复制链接]

43

帖子

0

原创值

283

金币

大二_装修学长

Rank: 2

积分
30

社区居民忠实会员

发表于 2013-05-20 10:29:07 | 显示全部楼层 |阅读模式
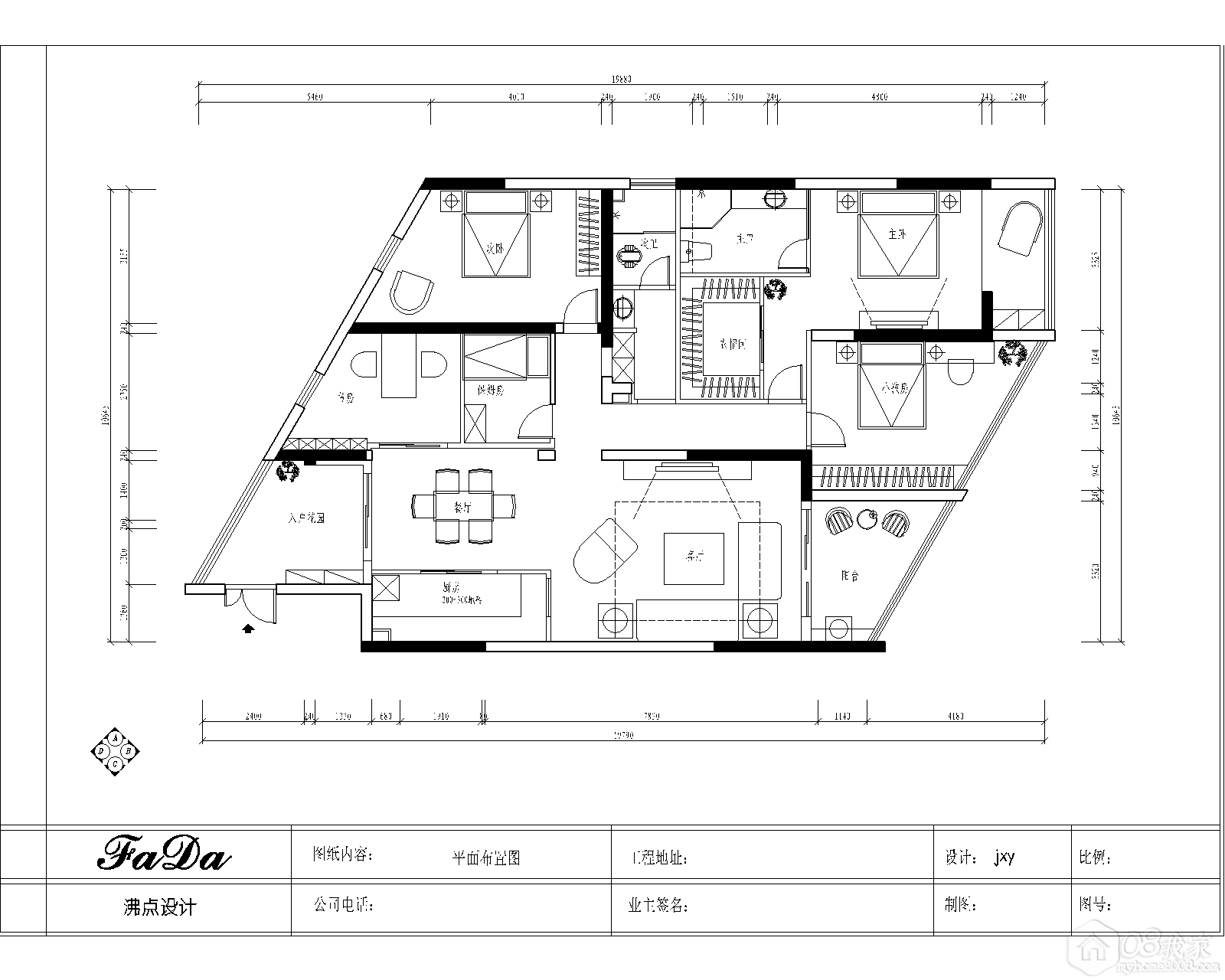
新手上路,对08业务比较陌生,不周之处还请各位老师指点。看到02户型就有一股冲动和激情。闲话少说,上图。各位老师多提意见 。  
平面方案:

02户型平面方案

02户型平面方案


设计说明:1、根据业主家庭人口结构,功能上面安排了 主卧、次卧,小孩房、书房、保姆房。
          2 、餐厅安排可解决入户过道狭长、感觉小气的问题。入户感觉大气,符合大户型的特征。
          3、 次卫移位纯属个人遇见。都是风水惹的祸,信者有,不信者无。
          4、 建议采用水暖,锅炉放在次卫入口左侧,两卫共用锅炉热水,厨房单独装燃气热水器。可解决问题7、8.
业主需求:   
家里现在常住人口是4人,一家3口加一个保姆,孩子还小,才9个月大,所以父母有时候会过来小住,有时是把小孩放父母家。
房主的问题是:
1、几间房如何安排?
   我俩是电脑一族,书房是肯定要的,而且很重要。原打算卧室2作为小孩房,优点是够大,缺点是离主卧有点远;如果将阳台2打通,书房做小孩房,总觉得还是不够大。
2、需要一个保姆房
   原打算将卧室1分出一小间做保姆房,如何分?或者保姆房安排在什么位置?
3、书房的门开在什么地方?
4、冰箱放在什么位置?
   家里面积大,但厨房的使用面积感觉好小,本打算用双门冰箱,现在估计不行,冰箱摆在什么位置?
5、入户过道长
   入户花园小,入户过道长。让人一进门感觉好小气,视野一点都不开阔。本来想做开发式厨房的,进门一线吧台那样,可以看到整个厨房和客厅,但还是担心油烟问题。
6、衣帽间和主卫
   每次进主卫都要经过衣帽间,这是什么设计?哎,感觉从主卧上厕所,要经过无数张门
7、两个卫生间与厨房的距离都很远
   这个直接导致的就是能源的浪费,是装电热水器还是燃气热水器?估计大部分都会安排一电一气,有没更好的法子?
8、地暖  
   同样面临装水暖还是电暖的问题。都说我家这么大面积适合装水暖,但水暖的锅炉装哪?按我家使用情况,虽然孩子现在小,但2年后就会去上幼儿园,我们又是上班族,在家的时间并不多,孩子大了也不打算请阿姨啦,所以我又有点倾向电地暖。。。

   最后,俺家是户型很多斜角,想做点圆形或者弧线冲淡斜角的感觉,不知能否实现。
平面方案.png

1万

帖子

0

原创值

9611

金币

论坛元老

掰子姐

Rank: 15Rank: 15Rank: 15Rank: 15Rank: 15

积分
11275

吃货社区居民社区明星忠实会员最爱沙发新人进步奖幽默大师奖贴图大师奖原创先锋奖金点子奖特殊贡献奖宣传大使奖优秀斑竹奖终身成就奖灌水天才奖社区劳模原创达人

发表于 2013-05-20 14:11:14 | 显示全部楼层
次卫改了,下水好改么?
餐厅够大了,不过也成了过道。
为保姆争取大空间权利!!
回复

使用道具 举报

43

帖子

0

原创值

283

金币

大二_装修学长

Rank: 2

积分
30

社区居民忠实会员

 楼主| 发表于 2013-05-20 14:48:03 | 显示全部楼层
下水没有问题,原主卫如果有沉箱就很好解决,如果没有沉箱就要地面抬高。

利用空间的做法之一:空间共享。

保姆房也有不足之处,没有窗户。

感谢版主提的意见.
回复

使用道具 举报

5266

帖子

0

原创值

1985

金币

装修大学_教授

若我白发苍苍,容颜迟暮,你会不会

Rank: 7Rank: 7Rank: 7

积分
5326

吃货民间厨神社区居民最爱沙发社区明星原创先锋奖灌水天才奖新人进步奖忠实会员社区劳模特殊贡献奖宣传大使奖贴图大师奖幽默大师奖金点子奖购物达人原创达人

发表于 2013-05-20 20:55:20 | 显示全部楼层
设计不错 想的比我好 我承认 呵呵
回复

使用道具 举报

43

帖子

0

原创值

283

金币

大二_装修学长

Rank: 2

积分
30

社区居民忠实会员

 楼主| 发表于 2013-05-20 21:47:34 | 显示全部楼层
谢谢!

多提意见,感激不尽。
回复

使用道具 举报

267

帖子

0

原创值

82

金币

大四_装修达人

Rank: 4

积分
235

社区居民忠实会员

发表于 2013-05-20 22:35:16 | 显示全部楼层
还可以这么改丫
就是不知道卫生间这样改一下,费用大概多少呢
谢谢
回复

使用道具 举报

1万

帖子

0

原创值

9611

金币

论坛元老

掰子姐

Rank: 15Rank: 15Rank: 15Rank: 15Rank: 15

积分
11275

吃货社区居民社区明星忠实会员最爱沙发新人进步奖幽默大师奖贴图大师奖原创先锋奖金点子奖特殊贡献奖宣传大使奖优秀斑竹奖终身成就奖灌水天才奖社区劳模原创达人

发表于 2013-05-21 10:39:11 | 显示全部楼层

回 米粒儿 的帖子

米粒儿:还可以这么改丫
就是不知道卫生间这样改一下,费用大概多少呢
谢谢

 (2013-05-20 22:35) 
你这个户型要玩出花样来,估计得烧不少钱~~
回复

使用道具 举报

267

帖子

0

原创值

82

金币

大四_装修达人

Rank: 4

积分
235

社区居民忠实会员

发表于 2013-05-21 10:44:34 | 显示全部楼层

回 叽歪 的帖子

叽歪:你这个户型要玩出花样来,估计得烧不少钱~~ (2013-05-21 10:39)
是哦,版主大大,正愁这个事呢
回复

使用道具 举报

43

帖子

0

原创值

283

金币

大二_装修学长

Rank: 2

积分
30

社区居民忠实会员

 楼主| 发表于 2013-05-21 12:02:12 | 显示全部楼层
就卫生间结构改造这一项,大概2千左右吧,
由于客观的局限性,每一种方案都会有利有弊,关键在于怎么取舍。(根据自己的情况综合考虑)。

好钢用在刀刃上。
回复

使用道具 举报

您需要登录后才可以回帖 登录 | 立即注册

本版积分规则