QQ登录    

08我家网

2023兔年大吉

田园简装——痛并快乐着(部分清单及使用后说明)

[复制链接]

702

帖子

0

原创值

31

金币

装修大学_研究生

Rank: 5Rank: 5

积分
632

社区居民

 楼主| 发表于 2010-06-05 19:50:26 | 显示全部楼层

回 69楼(与春天有约) 的帖子

    
回复

使用道具 举报

702

帖子

0

原创值

31

金币

装修大学_研究生

Rank: 5Rank: 5

积分
632

社区居民

 楼主| 发表于 2010-06-05 19:51:36 | 显示全部楼层

回 68楼(sisi780819) 的帖子

     相互学习喔
回复

使用道具 举报

702

帖子

0

原创值

31

金币

装修大学_研究生

Rank: 5Rank: 5

积分
632

社区居民

 楼主| 发表于 2010-06-05 21:10:07 | 显示全部楼层

厨柜篇

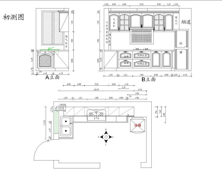
今天陪朋友去JX厨柜,貌似生意红火,朋友按照偶的价格定了厨柜,看样子偶的厨柜性价比还可以,发张咱厨柜的设计图。注:厨柜复尺的时候就要报上抽油烟机、灶等厨房电器的各项尺寸。导购美女把偶的厨柜总价算了出来,又策了一下,碗碟拉篮打了个折扣给我,又省出了一顿饭钱。 未命名2.jpg

效果图 1186112142685.jpg
1186112310128.jpg
   

<关于橱柜的环保>

原罪一:化学污染

除了甲醛以外,橱柜内可能还存在着有害物质苯、氡等。除了面板以外,还有柜体板和粘胶都需要进行相关处理,才能保证各项有害物质的含量不超标。

原罪二:物理伤害

材料、做工低劣的橱柜,可能在细节处存在毛刺、尖角、快口等,这些未经合理处理的部分,很容易造成身体伤害。在橱柜上直接处理食物,可能因为台面质量问题,造成误食杂质、碎屑等情况,对健康也有危害。

原罪三:材料不可循环造成浪费

从材料的环保性来说,铝质要比不锈钢材料更好,因为铝的沸点比较低,只有200度,而不锈钢要高达2000度,不利于材料的再循环加工。

有些不显眼的部分,比如橱柜的调整脚,完全可以使用塑料回料,只要它强度合格,没有必要非选用所谓的ABS塑料等。

原罪四:很少节能型设计

水槽的选用直接影响到自来水的使用量。单个大水槽和目前比较流行的双槽水槽相比,后者更节约用水;因为大水槽需要蓄更多的水,而且双水槽可以浸、洗分开,能更加合理用水。

煤气灶的设置应该尽量避开风口,如果安装在门边,使用时煤气会受到流动空气的影响,不仅燃气的使用量会增大,而且油烟被风吹散,无法集中吸收,会影响抽油烟机的工作。


原罪五:使用不安全

橱柜是水、电、煤大集合的地方,如果这三样东西使用不当,都会对环境造成危害,甚至影响到人身安全。水槽中的溢水口要合理设置;电器、电线和插头避免漏电;还有煤气的阀门、熄火保护等等。
回复

使用道具 举报

702

帖子

0

原创值

31

金币

装修大学_研究生

Rank: 5Rank: 5

积分
632

社区居民

 楼主| 发表于 2010-06-07 02:46:23 | 显示全部楼层

装修无小事 禁忌事项需认真对待

装修是一个既简单又复杂的工程,许多业主因为装修时的种种不注意导致装修完工后留下诸多遗憾。近日,小编经过总结整理,就装修的禁忌问题进行了归纳,与网友分享。

一、忌仓促上马
新房的钥匙拿到了手中,一些性急的人往往迫不及待地想要赶紧装修入住。匆忙的结果可能导致一系列问题:选择的装饰公司不尽如人意,设计、施工水平没能达到要求,质量问题接连不断地出现。因此在装修之前,你应留出一段时间好好考虑房间的设计和装饰材料的选择,以及用一段时间去选择一家合格的装饰公司。

二、忌“胸无全局”
家是一个整体,它需要统筹部署。在装修之前,你应该对房间的装饰风格、所使用的装饰材料、家具的选择和大致的摆放位置以及装修的预算等做到心中有数。如果对房间装饰没有通盘考虑,往往会出现家具与装饰风格不相符合的现象。

三、忌“一刀切”式的统一
虽然说一套住宅应该统一在一种装饰风格下,但每个房间都有不同的功用,居住者也不一样,所以切忌在所有的房间中都采用一种装饰风格,使用同样的装饰材料。这样做的结果只能使房间显得单调缺少情趣和变化。

四、忌表面的“涂脂抹粉”
从目前的建筑格局来讲,并非所有的格局都很合理,所以切忌依赖房间原有的格局,只做房间的“表面文章”。从美学角度考虑,矩形的房间并不理想。

五、忌不分主次
有些人在装修中不分主次,对所有空间“一视同仁”。这样装修不仅花费过多,而且往往“事倍功半”。其实整套房间并非一定着墨一样、面面俱到,凭家具和装饰品来点缀或许效果更佳。

六、忌脱离文化背景
很多人装修前都爱参照各类家居画册,取长补短无可厚非,但完全照搬就只能是“画虎不成反类犬”了,所以切忌脱离文化背景。

七、忌脱离外部环境
如果你的居室外面十分嘈杂、纷乱,内部装修就要简洁一些。如果房间在阴面,光线不足,装修时就忌用深颜色。

八、忌“无人参与”
有些消费者把装修的全过程都交给装饰公司,自己不参与一点意见,装修过程中也不到现场察看及时掌握工程情况,这样装修出来的房间不但没有一点主人爱好和性格的体现,出现问题也不能得到及时整改。

九、忌追求“一步到位”
目前大部分消费者都希望装修“一步到位”,其实这并非明智之举,因为人在变化,家在“生长”,装修也应该随之做一些小的调整。例如孩子大了,儿童间的装修和家具就要随之改换。

十、忌生搬硬套
所有的装饰手法都有一定的局限性,生搬硬套和硬性拼凑只能给人凌乱的感觉。尤其是在装修之前,有些人喜欢去别人家“取经”,结果自己家的装修风格凌乱,不成体系。

屋宽未必美,室雅何需大。居室只有通过精心设计、合理布置以及优良施工,才能体现出家的温馨和舒适。
回复

使用道具 举报

702

帖子

0

原创值

31

金币

装修大学_研究生

Rank: 5Rank: 5

积分
632

社区居民

 楼主| 发表于 2010-06-07 11:51:06 | 显示全部楼层

推荐超强木工师傅

偶们的部门常被同事们称为救火队员,装修中,偶也经常充当救火队员:这个砖要怎么铺,这个东东差了少了........常被师傅们招去工地,(用招这个字眼是因为真的得随时待命,看师傅这边有什么状况需解决),一天下来要解决好几个小问题。好在,经过上次的水电风波后,偶和偶家的师傅们沟通灰常灰常地顺利,每个师傅有他的特点,尊敬他们,多沟通,装修就事半功倍啦。尤其是木工成师傅,为我省了不少料,不少钱。
     成师傅电话:13875856139
未命名2.jpg
未命名.jpg
未命名1.jpg
回复

使用道具 举报

702

帖子

0

原创值

31

金币

装修大学_研究生

Rank: 5Rank: 5

积分
632

社区居民

 楼主| 发表于 2010-06-07 18:39:36 | 显示全部楼层

支出超十万元大关了,心疼。

搞装修千万不要怕麻烦,就是在麻烦中你可以省下很多不必要的支出。装修的钱就是靠一笔笔一二百省下来的。你每一项都能省下一二百,你会发现这可会是一笔不小的支出!如果哪项材料超过预算的,就算你再满意也要直接PASS,开先例的后果就是预算会大幅度的增长,到最后你都不知道多出的一万几万是花在哪儿了。
      在小本上记录:1)是必须要买的吗?-----是就买;不是不买; 2)对我生活的舒适度贡献大吗?----大,就多花钱,不大就少花钱; 3)是可以拆卸和易于搬动的吗?-----不是,买好点的材料;是,买便宜的;4)是方便维修和搞卫生的吗?------不选择难于伺候的东西,比如水晶灯、白色玻璃灯;5)是我搬进房子之后可以继续购买的吗?------是就暂缓购买; 6)是可以团购的吗? 7)是可以网购的吗?

附:《团购点采购五金明细表》(说明一下,偶家做的家具有2衣柜、1书桌、1书柜、1电视机柜、1鞋柜、3吊柜、2扇门、1茶几)

名称    单价

铜门吸    23.6元
铜门合页  34元
450轨道 11.7元
400轨道 10.4元
大弯     6元
中弯     6元
磁碰     1.8元
合页(70)2.5元
插销     2.5元
不锈钢管 4.5元
10公分柜脚  8元
衣杆     18元
衣座     4.8元
拉手(1)  7.8元
拉手(2) 6.8元
拉手(3) 9.5元
晾衣架   280元
穿衣镜   120元
顶固铜锁  225元
合计1700元
4_1070_3075f2a18868360.JPG
回复

使用道具 举报

308

帖子

0

原创值

5

金币

大四_装修达人

Rank: 4

积分
269
发表于 2010-06-07 20:54:28 | 显示全部楼层
好看!!
回复

使用道具 举报

702

帖子

0

原创值

31

金币

装修大学_研究生

Rank: 5Rank: 5

积分
632

社区居民

 楼主| 发表于 2010-06-07 21:02:51 | 显示全部楼层

回 76楼(西瓜小猪) 的帖子

欢迎小瓜来指导
回复

使用道具 举报

702

帖子

0

原创值

31

金币

装修大学_研究生

Rank: 5Rank: 5

积分
632

社区居民

 楼主| 发表于 2010-06-07 22:26:10 | 显示全部楼层

瓷砖篇

1、抽油烟机和热水器的排气孔要预先打好孔,如果等贴好瓷片后再打孔,就不方便了。所以,在装修前一定要选好抽油烟机,炉具和热水器等,以确定打孔的大小。
     2、在贴瓷砖时一定要注意以下几点:
  ①最好自己能在现场。 ②部分不太完美的瓷砖可以让工人贴在将来一些看不到的位置,比如橱柜、洗手台、镜子等后面,还要注意花砖、腰砖等不要被工人贴在以上位置,否则将来你什么都看不到,还花冤枉钱。 ③墙砖、地砖在贴之前,泡水时间一定要够。④一定要将地漏用东西塞好,防止掉水泥下去堵塞。⑤主人在现场,工人不会太浪费瓷砖。
     3、卫生间瓷砖不要用太素的,一是容易脏,二来时间长了太过平淡!
     4、墙砖的高度,刚开始偶就是没注意到这一点,虽然比2.4的标高已经高了一些,但偶家的厨房是敞开的,站在客厅仍可以直接看到吊顶。
回复

使用道具 举报

5232

帖子

0

原创值

4139

金币

装修大学_教授

Rank: 7Rank: 7Rank: 7

积分
3884

社区居民灌水天才奖终身成就奖社区明星忠实会员社区劳模宣传大使奖特殊贡献奖原创先锋奖贴图大师奖最爱沙发金点子奖幽默大师奖新人进步奖

发表于 2010-06-07 22:51:53 | 显示全部楼层
热水器打孔和贴砖的关系不大吧?
砖不会贴那么高的~~
回复

使用道具 举报

您需要登录后才可以回帖 登录 | 立即注册

本版积分规则