QQ登录    

08我家网

2023兔年大吉

Treehouse(安装美图来袭!!!!)

  [复制链接]

231

帖子

0

原创值

588

金币

设计师

设计因人而意,品质始终如一。

Rank: 8Rank: 8

积分
1044

社区居民忠实会员

发表于 2013-08-18 13:14:07 | 显示全部楼层
回复

使用道具 举报

474

帖子

0

原创值

443

金币

大四_装修达人

每个人有每个人向往的生活,我们

Rank: 4

积分
436

社区居民新人进步奖忠实会员

发表于 2013-08-18 16:37:07 | 显示全部楼层
看看 隐藏~~~~~
回复

使用道具 举报

2134

帖子

0

原创值

2613

金币

装修大学_博士生

Rank: 6Rank: 6

积分
2245

社区居民忠实会员社区劳模最爱沙发社区明星

 楼主| 发表于 2013-08-18 22:06:20 | 显示全部楼层

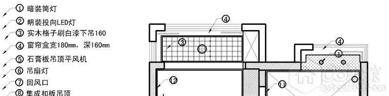
木格子吊顶

阳台想要挂些绿萝、太阳花等小植,想做个格子吊顶。
20100429_3e87be11778ffaab0552fwF55zegAPTy_副本.jpg


大平面深化设计方案图005.plt_副本.jpg



吊顶尺寸:3180*1150
目前正在联系外包方。
在淘宝上联系了一家可以做的,
卖家说用俄罗斯樟子松制作,
建议用5*5的木方,经处理实际尺寸4*4
格子单元尺寸要现场确认,初步定为100×150
颜色做成白色,
买家说做成格子材料本身并不贵,但手工费用比较高。
13905-1276338887.jpg




0dc91cbe6c7452dd814f31389d94bc90.png


樟子松
电梯门尺寸:2米1 内空2米4
联系电话:18692234172
工厂在东站附近,工厂名湘之景
回复 收藏

使用道具 举报

473

帖子

0

原创值

238

金币

大四_装修达人

Rank: 4

积分
410

社区居民忠实会员

发表于 2013-08-19 00:02:40 | 显示全部楼层
我也准备全房木踢 脚线
回复

使用道具 举报

17

帖子

0

原创值

54

金币

禁止发言

积分
14

社区居民

发表于 2013-08-20 09:30:40 | 显示全部楼层
提示: 作者被禁止或删除 内容自动屏蔽
回复

使用道具 举报

17

帖子

0

原创值

54

金币

禁止发言

积分
14

社区居民

发表于 2013-08-20 09:32:55 | 显示全部楼层
提示: 作者被禁止或删除 内容自动屏蔽
回复

使用道具 举报

15

帖子

0

原创值

57

金币

大一_装修新生

Rank: 1

积分
13

社区居民

发表于 2013-08-20 11:12:35 | 显示全部楼层
回复

使用道具 举报

15

帖子

0

原创值

57

金币

大一_装修新生

Rank: 1

积分
13

社区居民

发表于 2013-08-20 11:15:44 | 显示全部楼层
回复

使用道具 举报

2134

帖子

0

原创值

2613

金币

装修大学_博士生

Rank: 6Rank: 6

积分
2245

社区居民忠实会员社区劳模最爱沙发社区明星

 楼主| 发表于 2013-08-20 17:09:35 | 显示全部楼层

辅材选择

1万象E0(18mm)大芯板--基层/抽屉边框
  万象E1(9mm)--背板/抽屉底板
  万象E1(15mm)--柜门
  万象E1 水曲柳饰面板
  木线条--收边收口(选用的时候注意是否有霉点、开裂,颜色深浅是否一致)
  门套线(六公分/八公分平板门套线)


2 华润五合一木器白漆9.5kg(三底二面)
   华润五合一木器清漆 9.5kg(一底二面)
3 多乐士精装五合一(无添加)顶面内墙漆
4 多乐士精装五合一(无添加)墙面内墙漆
5 多乐士内墙专用底漆
6 绿蛙腻子胶LW301(我家需要四桶)
T2hyzQXXpXXXXXXXXX_!!225511517.jpg

7 多邦腻子粉
8 龙牌石膏板
T2Q5VMXh0cXXXXXXXX_!!756403583.jpg



T2YrpkXbFOXXXXXXXX_!!756403583.jpg

9 金色罗曼五金
10 百得防水-多功能优效型20kg装(MW55)
      20kg涂刷面积8平两遍
                   厨房        地面4.5平+墙面(0.3米高)              14.75
                   卫生间    地面3.4平+全墙                                   18.78
                   生活阳台地面2.4平+墙面0.3米高                       3.6
                   休闲阳台 没有水源,不需要防水
11 德高彩色防霉填缝剂 浅灰色4包(25元一包),白色2包(20元一包)      
12 玻璃胶
      用于台盆密封,厨房灶具/台面/水槽密封
      一瓶可用于6mm宽10米长
        道康宁(16元)
回复 收藏

使用道具 举报

15

帖子

0

原创值

21

金币

大一_装修新生

Rank: 1

积分
13

社区居民

发表于 2013-08-20 17:12:24 | 显示全部楼层
    
回复

使用道具 举报

您需要登录后才可以回帖 登录 | 立即注册

本版积分规则