QQ登录    

08我家网

2023兔年大吉

凤凰城装修之路漫长,我才刚刚开始-- (再次更新大量半成型美照更新)我的心真欢喜啊。 *(已更新)

  [复制链接]

24

帖子

0

原创值

33

金币

大一_装修新生

Rank: 1

积分
17

社区居民

发表于 2013-07-19 22:03:11 | 显示全部楼层
加油啊。
回复

使用道具 举报

67

帖子

0

原创值

66

金币

大三_装修里手

Rank: 3Rank: 3

积分
64

社区居民

 楼主| 发表于 2013-07-20 21:41:35 | 显示全部楼层
很不好意思,关注我帖子的朋友,这么久都没写下文。因为是回了趟老家,呆了几天,实在是没得时间上网。好了言归正传。
                上面有朋友问我是哪个设计师? 说起来有些意思,当时大李给我安排设计师的时候说他是阿鲁,我还感觉好惊讶!虽然在逛08时间不是很长,也晓得有个叫阿鲁的设计师很牛气,我以为此阿鲁就是彼阿鲁大师,感觉年轻些,一问下才晓得,不是。不过这个设计师也很用心,直接拿出三套方案,这点让我感觉很好,觉得公司对我上心了
                 我要求是要多做储物空间,因为有小孩。对环保高求比较高,家具都是自己做。我呢?又喜欢简洁一些的。
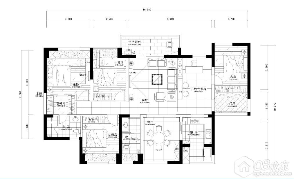
未命名6.jpg

                最后综合了三套方案的优点,我也提出了一些我的想法,做出来了我传上来的这副平面图,在美观上效果可能差一点,但是很符合居家,柜子做的比较多,东西 杂物总是越来越多的嘛!进门靠右手边那间用来做客房,客厅比较大。这房子唯一不太好的地方就是厨房稍微小了些,不过问题也不大。没做背景墙,   听设计师说效果会打些折扣,不过我感觉也没什么,没必要花那钱,装修预算要控制好啊!
回复

使用道具 举报

67

帖子

0

原创值

66

金币

大三_装修里手

Rank: 3Rank: 3

积分
64

社区居民

 楼主| 发表于 2013-07-20 21:56:10 | 显示全部楼层

回 装修大李- 的帖子

装修大李-:    希望接下来的合作愉快,郭姐。 (2013-07-12 16:42)

      合作愉快。
回复

使用道具 举报

67

帖子

0

原创值

66

金币

大三_装修里手

Rank: 3Rank: 3

积分
64

社区居民

 楼主| 发表于 2013-07-20 21:57:34 | 显示全部楼层

回 手边的幸福 的帖子

手边的幸福:不错啊!看看后面怎么装的 (2013-07-12 21:59)
嘿嘿!瞎写,你的装好了吗?
回复

使用道具 举报

67

帖子

0

原创值

66

金币

大三_装修里手

Rank: 3Rank: 3

积分
64

社区居民

 楼主| 发表于 2013-07-20 21:58:57 | 显示全部楼层

回 芹菜 的帖子

芹菜:紫风铃,热烈欢迎你成为08日记版块的一员。会持续关注的。
        我喜欢你的文风。 (2013-07-13 11:47)
谢谢夸奖!现在只有坚持写了,努力。
回复

使用道具 举报

67

帖子

0

原创值

66

金币

大三_装修里手

Rank: 3Rank: 3

积分
64

社区居民

 楼主| 发表于 2013-07-20 21:59:31 | 显示全部楼层

回 清风歌赋 的帖子

清风歌赋:期待后续。 (2013-07-18 22:57)
   谢谢关注!
回复

使用道具 举报

67

帖子

0

原创值

66

金币

大三_装修里手

Rank: 3Rank: 3

积分
64

社区居民

 楼主| 发表于 2013-07-20 22:00:51 | 显示全部楼层

回 wuli23 的帖子

wuli23:最后你选择了谁帮你设计啊 (2013-07-18 23:52)
嗯!品然的设计师。
回复

使用道具 举报

1344

帖子

0

原创值

1622

金币

装修大学_研究生

通用时代-董妞

Rank: 5Rank: 5

积分
1194

社区居民忠实会员社区劳模社区明星最爱沙发

发表于 2013-07-21 09:43:16 | 显示全部楼层
与主卫相邻的衣帽间有特别的防潮处理么?
卫生间的门正对着主卧,以后的湿气如何处理呢?如果隔离不利于通风,如果不隔离,湿气直冲床铺哦!

p.s:房子很大!很爽呀!
回复

使用道具 举报

897

帖子

0

原创值

117

金币

装修大学_研究生

请勿广告

Rank: 5Rank: 5

积分
905

社区明星最爱沙发社区居民

发表于 2013-07-21 11:36:48 | 显示全部楼层
凤凰城里花时别;好傍青山与碧溪.  开工大吉
回复

使用道具 举报

234

帖子

0

原创值

332

金币

大三_装修里手

Rank: 3Rank: 3

积分
183

社区居民忠实会员社区劳模

发表于 2013-07-21 20:55:57 | 显示全部楼层
我来了,开工大吉。
回复

使用道具 举报

您需要登录后才可以回帖 登录 | 立即注册

本版积分规则