QQ登录    

08我家网

2023兔年大吉

[装修求助]求各位支招,新房子到底装不装暖气片· 房子很小

[复制链接]

647

帖子

0

原创值

1549

金币

装修大学_研究生

Rank: 5Rank: 5

积分
524

社区居民忠实会员社区劳模

发表于 2013-07-13 11:55:19 | 显示全部楼层 |阅读模式
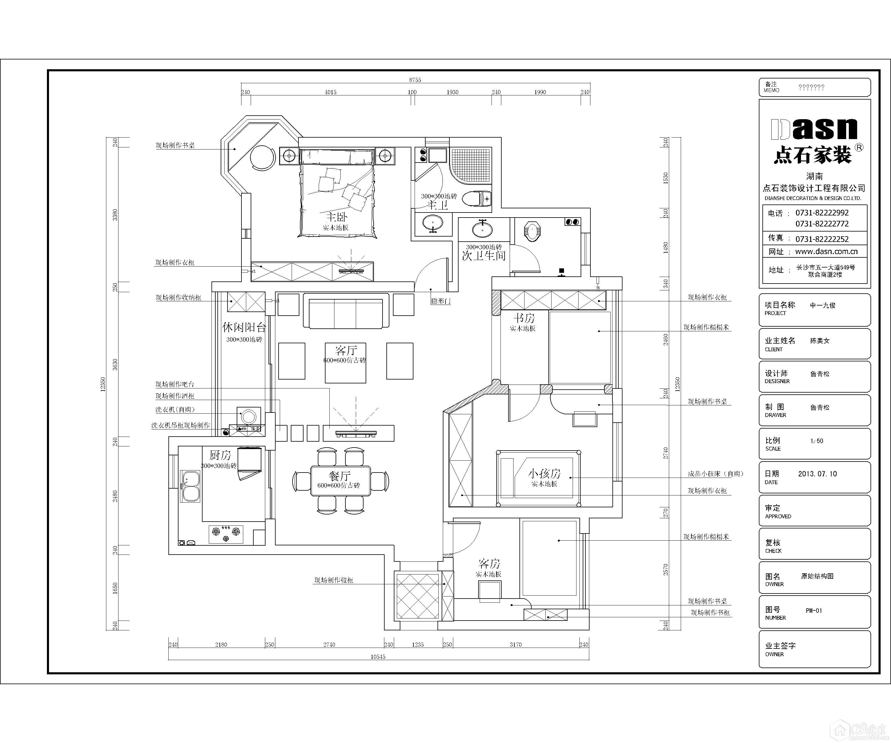
中一九俊2013.7.10-Model.plt.jpg


开始考虑到孩子本来是装地暖 可是层高只有2.77米  装地暖不适合  到底暖气片好不好,我又在考虑暖气片

大家帮我看看户型设计图  ·  有什么好的建议吗

层高不够,

7878

帖子

0

原创值

3159

金币

荣誉版主

积分
7785

社区居民社区明星终身成就奖宣传大使奖优秀斑竹奖原创先锋奖忠实会员最爱沙发社区劳模原创达人

发表于 2013-07-13 12:17:28 | 显示全部楼层
暖气片也有占空间的特点
回复

使用道具 举报

您需要登录后才可以回帖 登录 | 立即注册

本版积分规则