QQ登录    

08我家网

2023兔年大吉

[主题活动]【装修我最白】附装修公司的方案和精算,请Nick帮忙看下装修公司哪些费用可以省?

[复制链接]

48

帖子

0

原创值

20

金币

大二_装修学长

Rank: 2

积分
45

社区居民

发表于 2013-07-19 19:18:12 | 显示全部楼层 |阅读模式
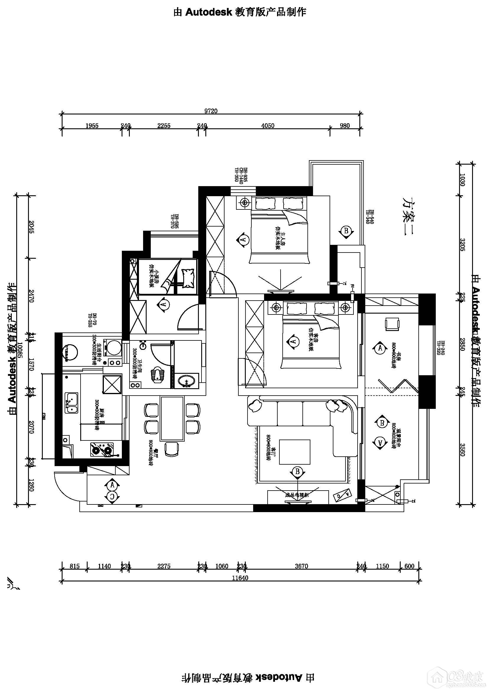
在长沙夏季家博会时找的这家装修公司,因为本人在外地工作,而且对装修是一窍不通,所以一直考虑的是找个好点的装修公司做全包。之前也在08论坛了解了一下长沙的装修公司,主要是参考了【Nick探店系列活动】之装修公司篇,找了家相对评价高的公司。去家博会时公司给出了第一套方案,简欧报价为9.5W,说是现代简约的话能少近1W块,所以后来改做现代简约风格,并交齐所有设计费。哪知道前几天新的方案和预算出来后吓我一跳,居然要11W+,最后减少门上方的吊柜,报价减到10.7W,附件较多麻烦Nick大神帮忙看下我能在什么地方省下钱?

方案一

方案一

方案二

方案二
3_1.jpg
3_2.jpg
3_3.jpg
3_4.jpg
3_5.jpg
3_6.jpg
3_7.jpg
3_8.jpg
3_9.jpg
4_1.jpg
4_2.jpg
4_3.jpg
觉得图片看不清的朋友,可以点击图片在另一个窗口打开,然后鼠标放在图片上面等出来一个 20130720104206.jpg
这样的图标就可以点击放大了。还是看得很清楚的

6682

帖子

0

原创值

1万

金币

荣誉版主

积分
5451

终身成就奖优秀斑竹奖宣传大使奖特殊贡献奖金点子奖原创先锋奖灌水天才奖认证团长社区居民忠实会员最爱沙发社区劳模社区明星

发表于 2013-07-19 19:53:23 | 显示全部楼层
我是来围观的,等nick解答
回复

使用道具 举报

70

帖子

0

原创值

71

金币

大三_装修里手

Rank: 3Rank: 3

积分
54

社区居民

发表于 2013-07-19 21:51:58 | 显示全部楼层
看不清。
回复

使用道具 举报

48

帖子

0

原创值

20

金币

大二_装修学长

Rank: 2

积分
45

社区居民

 楼主| 发表于 2013-07-19 22:22:28 | 显示全部楼层

回 周氏 的帖子

周氏: 看不清。 (2013-07-19 21:51)
点击可以放大的
回复

使用道具 举报

7878

帖子

0

原创值

3159

金币

荣誉版主

积分
7785

社区居民社区明星终身成就奖宣传大使奖优秀斑竹奖原创先锋奖忠实会员最爱沙发社区劳模原创达人

发表于 2013-07-19 23:44:38 | 显示全部楼层
如果估计没错这套报价应该是第二类公司里的一家
其实是哪一家nick也大概猜到了
只是不好说出来
这也应证了nick的这个评价

QQ截图20130719234247.jpg


不过预算真的看不清
你还是打成压缩包
发到nick邮箱吧
89472674@qq .com
结果nick会在帖子公布的
回复

使用道具 举报

48

帖子

0

原创值

20

金币

大二_装修学长

Rank: 2

积分
45

社区居民

 楼主| 发表于 2013-07-20 10:14:30 | 显示全部楼层

回 nick 的帖子

nick:如果估计没错这套报价应该是第二类公司里的一家
其实是哪一家nick也大概猜到了
只是不好说出来
这也应证了nick的这个评价

.......(2013-07-19 23:44)嬀/color]
已发送到你的邮箱,请查收,多谢Nick关注。
预算点开的话可以放大的啊。
回复

使用道具 举报

48

帖子

0

原创值

20

金币

大二_装修学长

Rank: 2

积分
45

社区居民

 楼主| 发表于 2013-07-20 10:19:16 | 显示全部楼层
确实是第二类公司里的一家,怪自己没记住Nick提到的这个低进高出的问题。后悔啊!
回复

使用道具 举报

54

帖子

0

原创值

35

金币

大三_装修里手

Rank: 3Rank: 3

积分
63

社区居民

发表于 2013-07-20 11:59:17 | 显示全部楼层
麻雀  我也是C8栋的  你的这个户型 进门玄关处能做鞋柜吗? 那里很窄  我打过电话问过物业 那面墙好像不能敲 。
回复

使用道具 举报

7878

帖子

0

原创值

3159

金币

荣誉版主

积分
7785

社区居民社区明星终身成就奖宣传大使奖优秀斑竹奖原创先锋奖忠实会员最爱沙发社区劳模原创达人

发表于 2013-07-20 13:43:02 | 显示全部楼层

回 麻雀 的帖子

麻雀:确实是第二类公司里的一家,怪自己没记住Nick提到的这个低进高出的问题。后悔啊!
 (2013-07-20 10:19) 
请关注本帖
nick审核预算之后会发布在本帖
回复

使用道具 举报

195

帖子

0

原创值

219

金币

大三_装修里手

Rank: 3Rank: 3

积分
163

社区居民忠实会员

发表于 2013-07-20 23:27:11 | 显示全部楼层
支持支持
回复

使用道具 举报

您需要登录后才可以回帖 登录 | 立即注册

本版积分规则