QQ登录    

08我家网

2023兔年大吉

[装修交流]简约、淡雅、轻松,我的温馨小窝。

[复制链接]

210

帖子

0

原创值

561

金币

大三_装修里手

Rank: 3Rank: 3

积分
199

社区居民忠实会员社区劳模

 楼主| 发表于 2013-08-23 21:30:56 | 显示全部楼层

回 yuddj 的帖子

yuddj:好坏都是相对而言。请一个好点的项目经理是关键, (2013-08-06 17:11) 
请给我的平面图拍砖。。。
回复

使用道具 举报

210

帖子

0

原创值

561

金币

大三_装修里手

Rank: 3Rank: 3

积分
199

社区居民忠实会员社区劳模

 楼主| 发表于 2013-08-23 21:31:50 | 显示全部楼层

回 allenhong 的帖子

allenhong:遥遥 切克闹

哪有发帖子是这样发的

 (2013-08-17 14:48) 
屁屁,请给我的平面图提意见,灌水,实在不行,灌灌醋也行。。。
回复

使用道具 举报

1156

帖子

0

原创值

1439

金币

装修大学_研究生

Rank: 5Rank: 5

积分
1072

社区居民忠实会员社区劳模最爱沙发

发表于 2013-08-23 21:56:29 | 显示全部楼层

回 故乡遥 的帖子

故乡遥:请给我的平面图拍砖。。。 (2013-08-23 21:30)
阿姨我不懂拍砖是啥意思。
回复

使用道具 举报

2700

帖子

0

原创值

652

金币

装修大学_博士生

Rank: 6Rank: 6

积分
2660

社区居民社区明星忠实会员社区劳模最爱沙发

发表于 2013-08-24 09:31:15 | 显示全部楼层

回 故乡遥 的帖子

故乡遥:杨美女,这不是设计师杨美女,真的是你吗,妈呀,太激动了,照个相呗 (2013-08-23 21:26)
我不是设计师杨美女哈~~待会俺们的设计师会给你上图 嘿嘿
回复

使用道具 举报

905

帖子

0

原创值

1534

金币

设计师

Rank: 8Rank: 8

积分
937

社区居民忠实会员社区劳模最爱沙发

发表于 2013-08-24 09:43:03 | 显示全部楼层
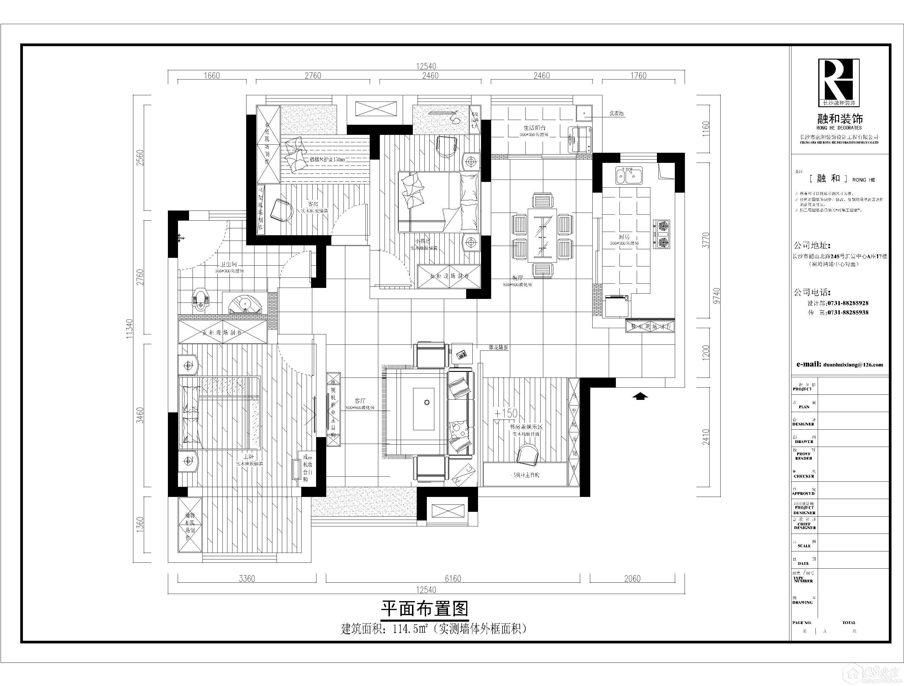
龙湾社区-Mode原始.jpg
龙湾社区-Model.jpg

,你好,这个方案还是四个房间保留,一个敞开式书房‘三个卧房,书房与客厅隔断处如果喜欢吧台,还可以用吧台做相隔,餐厅的位置放于厨房一边,厨房可以做一个比较大的推拉门,并且多了一个生活阳台,主卧的阳台就完全可以作为主卧的一个休闲阳台使用,因为主卧的空间不是很大,卫生间比较宽敞,所以就借用了卫生间的一点空间做了主卧衣柜,防潮不用担心,只要做好防水就完全没有问题
回复

使用道具 举报

2700

帖子

0

原创值

652

金币

装修大学_博士生

Rank: 6Rank: 6

积分
2660

社区居民社区明星忠实会员社区劳模最爱沙发

发表于 2013-08-24 09:53:02 | 显示全部楼层
俺们的设计师紫玲美女 上图咯
回复

使用道具 举报

905

帖子

0

原创值

1534

金币

设计师

Rank: 8Rank: 8

积分
937

社区居民忠实会员社区劳模最爱沙发

发表于 2013-08-24 10:04:13 | 显示全部楼层

回 故乡遥 的帖子

故乡遥:
 (2013-08-23 21:12) 
电视背景放在那边有点小哦,沙发会显得长了很多,楼主说的光线也确实有点暗,厨房可以改成推拉门,不管是采光还是实用都要好一点哦,餐桌要换一个方向,不然不好过路哦,生活阳台1.2米宽就足够用了,可以放下一个洗衣机和一个洗衣池了,主卧放的床有点小哦,一般最小都会放1.8米的床,不过要看楼主的具体要求是什么了,呵呵
回复

使用道具 举报

210

帖子

0

原创值

561

金币

大三_装修里手

Rank: 3Rank: 3

积分
199

社区居民忠实会员社区劳模

 楼主| 发表于 2013-08-24 10:39:45 | 显示全部楼层

回 紫铃 的帖子

紫铃:电视背景放在那边有点小哦,沙发会显得长了很多,楼主说的光线也确实有点暗,厨房可以改成推拉门,不管是采光还是实用都要好一点哦,餐桌要换一个方向,不然不好过路哦,生活阳台1.2米宽就足够用了,可以放下一个洗衣机和一个洗衣池了,主卧放的床有点小哦,一般最小都会放1.8米 .. (2013-08-24 10:04) 
阿玲,谢谢,谢谢啊,丰收果里,有你的一份咯
回复

使用道具 举报

210

帖子

0

原创值

561

金币

大三_装修里手

Rank: 3Rank: 3

积分
199

社区居民忠实会员社区劳模

 楼主| 发表于 2013-08-24 10:43:58 | 显示全部楼层

回 橙子721 的帖子

橙子721:俺们的设计师紫玲美女 上图咯 (2013-08-24 09:53) 
融合的设计师都来了,太给力了,还是美女
回复

使用道具 举报

905

帖子

0

原创值

1534

金币

设计师

Rank: 8Rank: 8

积分
937

社区居民忠实会员社区劳模最爱沙发

发表于 2013-08-24 11:27:54 | 显示全部楼层

回 故乡遥 的帖子

故乡遥:阿玲,谢谢,谢谢啊,丰收果里,有你的一份咯 (2013-08-24 10:39) 
客气客气,丰收了请我吃糖
回复

使用道具 举报

您需要登录后才可以回帖 登录 | 立即注册

本版积分规则