QQ登录    

08我家网

2023兔年大吉

[装修交流]刚入手的新房想装修,希望大家多给建议,谢谢!~

[复制链接]

11

帖子

0

原创值

24

金币

大一_装修新生

Rank: 1

积分
15

社区居民

发表于 2013-08-28 09:56:23 | 显示全部楼层 |阅读模式
                                  新房想好好设计一下,二房二厅带一个入户花园,这样的小户型,要如何设计装修,才会感觉空间不那么狭小 呢。至于风格嘛,现代简约风格吧。 目前未作预算,不过,据朋友讲,七八万应该就能全部搞定。。。   装修一般的就行,简单实用一点,本人菜鸟一名,望大家多给建议!~  下面附上户型图。。。

请输入描述

请输入描述

6682

帖子

0

原创值

1万

金币

荣誉版主

积分
5451

终身成就奖优秀斑竹奖宣传大使奖特殊贡献奖金点子奖原创先锋奖灌水天才奖认证团长社区居民忠实会员最爱沙发社区劳模社区明星

发表于 2013-08-28 10:09:31 | 显示全部楼层
小户型选择适合的家具,有效利用空间,当然设计也很重要!
回复

使用道具 举报

909

帖子

0

原创值

2420

金币

装修大学_研究生

Rank: 5Rank: 5

积分
879

民间厨神社区居民忠实会员最爱沙发社区明星

发表于 2013-08-28 11:39:16 | 显示全部楼层
跟着08,想好自己要什么要的效果。利用好有限的空间位置。
回复

使用道具 举报

7878

帖子

0

原创值

3159

金币

荣誉版主

积分
7785

社区居民社区明星终身成就奖宣传大使奖优秀斑竹奖原创先锋奖忠实会员最爱沙发社区劳模原创达人

发表于 2013-08-28 12:44:11 | 显示全部楼层
两房的房子应该是90平的吧
七八万搞定应该是指硬装
不含家具家电
这个预算的话材料才能保证不会太差
我觉得你应该先找个设计师给你确定好装修设计方案
这样子才好一个个的公司或者施工队比较下价格

PS:头像是本人不?经nick鉴定是美女啊!
回复

使用道具 举报

709

帖子

0

原创值

976

金币

大四_装修达人

Rank: 4

积分
463

社区居民忠实会员最爱沙发

发表于 2013-08-28 13:19:43 | 显示全部楼层

回 nick 的帖子

nick:两房的房子应该是90平的吧
七八万搞定应该是指硬装
不含家具家电
这个预算的话材料才能保证不会太差
我觉得你应该先找个设计师给你确定好装修设计方案
....... (2013-08-28 12:44) 
回复

使用道具 举报

11

帖子

0

原创值

24

金币

大一_装修新生

Rank: 1

积分
15

社区居民

 楼主| 发表于 2013-08-28 15:00:11 | 显示全部楼层
没有啦,建筑面积,84.7平方。。  七八万的预算是包括了家具这些一起的哦。   

不过,肯定是要请个设计师,毕竟我都不懂,如何更好的利用空间,控制在预算内,必需专家才搞得定呀。呵呵。   

  说到风格,现代简约风吧。。实用一点,就OK了。。
回复

使用道具 举报

7878

帖子

0

原创值

3159

金币

荣誉版主

积分
7785

社区居民社区明星终身成就奖宣传大使奖优秀斑竹奖原创先锋奖忠实会员最爱沙发社区劳模原创达人

发表于 2013-08-28 15:03:41 | 显示全部楼层

回 宝贝姣 的帖子

宝贝姣:没有啦,建筑面积,84.7平方。。  七八万的预算是包括了家具这些一起的哦。  

不过,肯定是要请个设计师,毕竟我都不懂,如何更好的利用空间,控制在预算内,必需专家才搞得定呀。呵呵。    

  说到风格,现代简约风吧。。 .. (2013-08-28 15:00) 
85平的房子
包含家具8w搞定有点危险
散包还差不多
如果找装修公司的话不一定拿得下来
据nick了解,现在对于85平的房子
装修公司半包的价格至少都是4w以上了
你还要买主材之类的
如果要控制这个预算
估计只能找施工队做了
但是如果找施工队做或者散包的话
你另外还要找一个设计师的话
设计师的费用估计都是四五千以上了
回复

使用道具 举报

3738

帖子

0

原创值

100

金币

装修大学_教授

Rank: 7Rank: 7Rank: 7

积分
3000

吃货民间厨神社区居民忠实会员最爱沙发社区劳模新人进步奖社区明星

发表于 2013-08-28 15:13:16 | 显示全部楼层

回 宝贝姣 的帖子

宝贝姣:没有啦,建筑面积,84.7平方。。  七八万的预算是包括了家具这些一起的哦。  

不过,肯定是要请个设计师,毕竟我都不懂,如何更好的利用空间,控制在预算内,必需专家才搞得定呀。呵呵。    

  说到风格,现代简约风吧。。 .. (2013-08-28 15:00) 
请设计师和控制预算是冲突的。控制预算最好的办法就是散包
回复

使用道具 举报

905

帖子

0

原创值

1534

金币

设计师

Rank: 8Rank: 8

积分
937

社区居民忠实会员社区劳模最爱沙发

发表于 2013-08-30 15:57:22 | 显示全部楼层
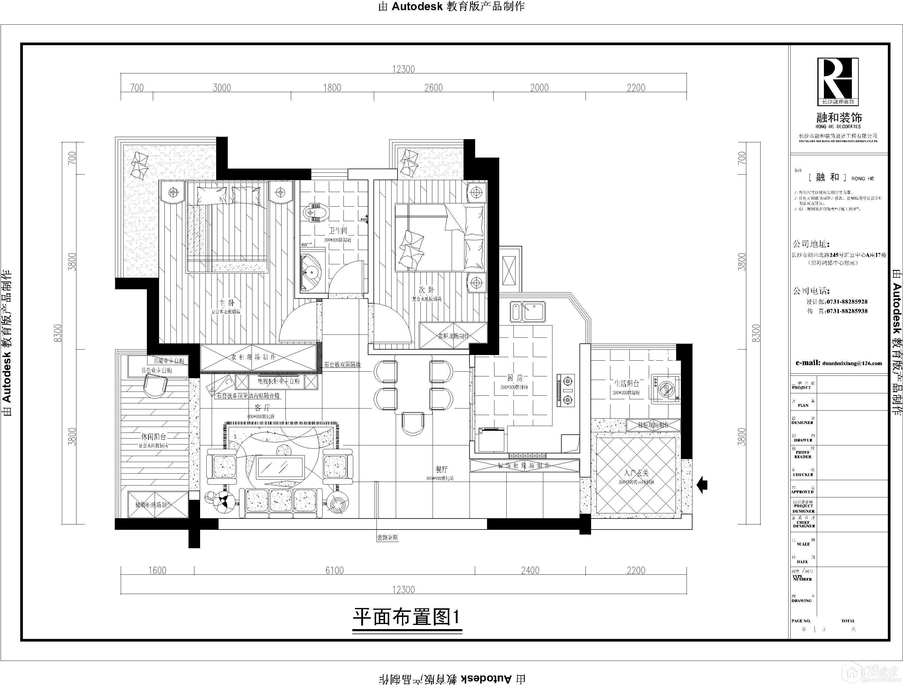
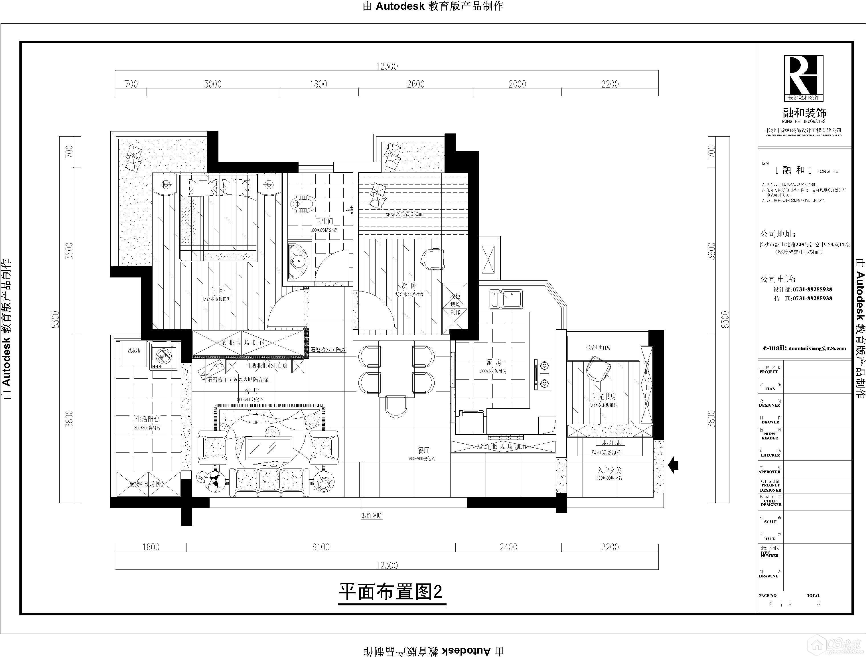
0828-111Model.jpg
0828-222Model.jpg
0828-333Model.jpg

楼主;这两个方案的唯一区别就是在入户花样和你的观景阳台的设计,在其他的地方改动,一个是厨房,连接厨房的阳台敲掉,把厨房扩大,把原来的厨房门封掉,那边做一个到顶的装饰储物柜,然后厨房朝餐厅开一扇大的推拉门,冰箱放在厨房里面,客厅处做了一个隔断,避免入户就可以一直看到阳台,既美观又改善了风水(不知道楼主信不信这个 ),另外一个地方就是卧室,因为主卧面积不大,我就把做衣柜的这面墙敲掉,往客厅方向移了一个衣柜位置(放心哦,客厅完全足够),然后卫生间的墙往过移20公分(就目前尺寸),因为目前的尺寸卧室是不足够放下一个1.8米的床带两个床头柜的,移了之后刚刚好放下1.8米的床和两个床头柜,(当然,卫生间是足够使用的 ),卫生间做了干湿分离,不知道楼主有没有小朋友哦,考虑到这个问题,所以建议用防水帘做隔断,同样的效果,但是会显得卫生间的空间大一些,还可以放下小朋友的浴盆。

不知道楼主还有什么生活习惯或者其他要求,有的话可以提,目前就是这样的方案,不知楼主满意不
回复

使用道具 举报

155

帖子

0

原创值

224

金币

大三_装修里手

Rank: 3Rank: 3

积分
139

社区居民忠实会员

发表于 2013-08-30 16:03:43 | 显示全部楼层
美女楼主,跟我们的紫铃MM沟通好平面方案就能帮你做估算了哦~
回复

使用道具 举报

您需要登录后才可以回帖 登录 | 立即注册

本版积分规则