QQ登录    

08我家网

2023兔年大吉

十月底交房,装修小白来记录一路的历程

[复制链接]
  • 所在城市:长沙
  • 所在小区:花样年华小区
  •  
  • 装修类型:新房装修
  • 装修户型:二房
  •  
  • 装修方式:清包
  • 装修风格:现代简约
  •  
  • 装修预算:10万—20万
  • 开工时间:2013-11-03
  • 前期设计
  • 主体拆装
  • 水电
  • 泥工
  • 木工
  • 油漆
  • 成品安装
  • 软装配饰
  • 毕业
已装修历时4420

175

帖子

0

原创值

417

金币

大三_装修里手

Rank: 3Rank: 3

积分
142

社区居民忠实会员社区劳模

发表于 2013-09-14 20:07:52 | 显示全部楼层 |阅读模式
2013年6月30日
我得好好地记下这个日子
在这一天我也属于有房一族了
虽说是个房奴
可依然内心激动着
终于
我也成为长沙的一员了
虽说是长沙县而已

175

帖子

0

原创值

417

金币

大三_装修里手

Rank: 3Rank: 3

积分
142

社区居民忠实会员社区劳模

 楼主| 发表于 2013-09-14 20:08:36 | 显示全部楼层
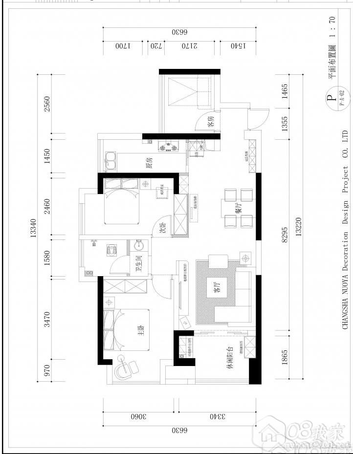
建筑面积:80.36
户型图
4_64899_a7f30e20cf6505b_meitu_1.jpg
下面电梯:
回复

使用道具 举报

175

帖子

0

原创值

417

金币

大三_装修里手

Rank: 3Rank: 3

积分
142

社区居民忠实会员社区劳模

 楼主| 发表于 2013-09-14 20:09:03 | 显示全部楼层
心路历程:
     07年从东莞回来后就来了长沙,开始适应星城的生活。对于星城我最大的一个感触就是工资低,消费高,不知道童鞋们有没有同感。自结婚以来,一直想拥有一个真正属于自己的家,10年11年的时候也去了解过房价,无耐一直积畜不多,只好做罢。我跟我先生都出生在农村,父母把我们养大,送我们上学已经非常不易,所以我们当不了啃老族,只能靠自己。
    08年的时候崽崽出生了,今年已经5岁多了。四五月份的时候看新闻,看到家长为了孩子抢个入学的学位,昼夜地排队,心里也渐渐地着急起来,我们在长沙也是没房的人,也没人脉关系,明年小孩能顺利入学吗??心中的不安越来越多。长沙的房价也看着看着就已经涨上去了不少,身边的朋友也是一直提醒我们工资永远涨不过房价!狠狠心,咬咬牙做了一个决定,看房!看中合适的了就买。
看房历程:
      我们的位置首选了星沙,一来星沙到市区也还比较快捷,二来觉得环境也还些,其实还有一个因素就是对河西、暮云什么的不熟。6月20日左右开始打探楼盘,恒基凯旋门、方略城市广场、盛地尊域我都看了,不是户型不对眼,就是交房期太遥远。我们的理想房是:1、面积80平方左右,能做小三房(现在已经是一家三口,二个房间必不可少,孩子的爷爷奶奶外婆等肯定也会偶尔来长沙小住,所以三个房间是必须的)。2、能在14年9月前入住(小孩明年要上小学,9月前入住一则避免了小孩转学问题,二则避免了再搬一次家,搬家实在是麻烦)。3、房价在预想值5500元以下。
和花样年华的偶遇:
     选择了花样其实真的是个缘份,还记得那天从盛地尊域看房出来,一个学生模样的男孩走了过来,递给我一张户型图,姐姐姐姐亲热地叫着,跟我说他是出来打暑假工的,拉个人去看房有一点点的提成。看着男孩一脸的真诚,我不忍拒绝他的邀请。反正是出来看房的,何不帮他一个忙呢。来到售楼部,售楼部的MM给我介绍了他们的户型,哇!可做小三房、10月底交房,这不就是我的梦中情人么!心中暗暗惊喜!问过价格后第二天再次带着朋友上门探盘,朋友觉得也不错,于是乎房子就这样敲定了。真的是没想到会决定得这么快,从真正看房到下定金,最多是十来天的时间。花样,你要给力哦,不要让我希望哦!
回复

使用道具 举报

144

帖子

0

原创值

183

金币

大三_装修里手

Rank: 3Rank: 3

积分
117

社区居民忠实会员

发表于 2013-09-14 20:22:25 | 显示全部楼层
哈哈,和我状况一样 我也是长沙县的  你是那个楼盘?
回复

使用道具 举报

2707

帖子

0

原创值

2656

金币

装修大学_博士生

Rank: 6Rank: 6

积分
2577

社区居民忠实会员社区劳模最爱沙发社区明星

发表于 2013-09-14 20:28:55 | 显示全部楼层
搜了一下,也在星沙区呢。
恭喜开贴!
回复

使用道具 举报

175

帖子

0

原创值

417

金币

大三_装修里手

Rank: 3Rank: 3

积分
142

社区居民忠实会员社区劳模

 楼主| 发表于 2013-09-14 20:56:05 | 显示全部楼层

回 赵赵 的帖子

赵赵:搜了一下,也在星沙区呢。
恭喜开贴! (2013-09-14 20:28)
赵赵的房子也是在星沙么?我要去参观,赵赵可是我们08的明星呢
回复

使用道具 举报

175

帖子

0

原创值

417

金币

大三_装修里手

Rank: 3Rank: 3

积分
142

社区居民忠实会员社区劳模

 楼主| 发表于 2013-09-14 20:57:13 | 显示全部楼层

回 602717896 的帖子

602717896:哈哈,和我状况一样 我也是长沙县的  你是那个楼盘? (2013-09-14 20:22)
花样年华小区
回复

使用道具 举报

2707

帖子

0

原创值

2656

金币

装修大学_博士生

Rank: 6Rank: 6

积分
2577

社区居民忠实会员社区劳模最爱沙发社区明星

发表于 2013-09-14 21:03:13 | 显示全部楼层

回 迷惘 的帖子

迷惘:赵赵的房子也是在星沙么?我要去参观,赵赵可是我们08的明星呢
 (2013-09-14 20:56) 
嗯,我在星沙汽配城路这里,紫晶城小区。
参观可以来啊,提前先联系一下我咯。
电话私你。
回复

使用道具 举报

2707

帖子

0

原创值

2656

金币

装修大学_博士生

Rank: 6Rank: 6

积分
2577

社区居民忠实会员社区劳模最爱沙发社区明星

发表于 2013-09-14 21:04:08 | 显示全部楼层

回 迷惘 的帖子

迷惘:赵赵的房子也是在星沙么?我要去参观,赵赵可是我们08的明星呢
 (2013-09-14 20:56) 
明星谈不上呢,比我牛的人海了去了。
回复

使用道具 举报

70

帖子

0

原创值

71

金币

大三_装修里手

Rank: 3Rank: 3

积分
54

社区居民

发表于 2013-09-14 21:13:39 | 显示全部楼层
恭喜开贴
回复

使用道具 举报

您需要登录后才可以回帖 登录 | 立即注册

本版积分规则