QQ登录    

08我家网

2023兔年大吉

大雁南飞---设计师自己的家

[复制链接]
  • 所在城市:长沙
  • 所在小区:格兰小镇
  •  
  • 装修类型:新房装修
  • 装修户型:二房
  •  
  • 装修方式:清包
  • 装修风格:现代简约
  •  
  • 装修预算:20万—30万
  • 开工时间:2013-04-25
  • 前期设计
  • 主体拆装
  • 水电
  • 泥工
  • 木工
  • 油漆
  • 成品安装
  • 软装配饰
  • 毕业
已装修历时4409

40

帖子

0

原创值

68

金币

大二_装修学长

Rank: 2

积分
44

社区居民忠实会员

发表于 2013-09-26 12:23:04 | 显示全部楼层 |阅读模式
毕业后一直从事设计这行,一直给别人做嫁衣。这次轮到给自己做了,开心之余是担心,因为囊中羞涩。有言道-巧妇难为无米之炊!2011看房买房,2012年底收房, 2013年开始装修 。几个月下来总算完工了。                  

1万

帖子

628

原创值

1万

金币

荣誉版主

积分
8155

社区居民忠实会员社区劳模最爱沙发社区明星

发表于 2013-09-26 15:43:13 | 显示全部楼层
都发点装修图给我们看看哈。    分享点经验给大家
回复

使用道具 举报

40

帖子

0

原创值

68

金币

大二_装修学长

Rank: 2

积分
44

社区居民忠实会员

 楼主| 发表于 2013-09-26 20:41:33 | 显示全部楼层

请坐电梯

回复

使用道具 举报

1373

帖子

0

原创值

1633

金币

装修大学_研究生

做人,品为先,才为次。

Rank: 5Rank: 5

积分
1226

社区居民社区明星新人进步奖忠实会员社区劳模最爱沙发

发表于 2013-09-26 20:42:10 | 显示全部楼层
   恭喜开贴
回复

使用道具 举报

40

帖子

0

原创值

68

金币

大二_装修学长

Rank: 2

积分
44

社区居民忠实会员

 楼主| 发表于 2013-09-26 20:42:36 | 显示全部楼层
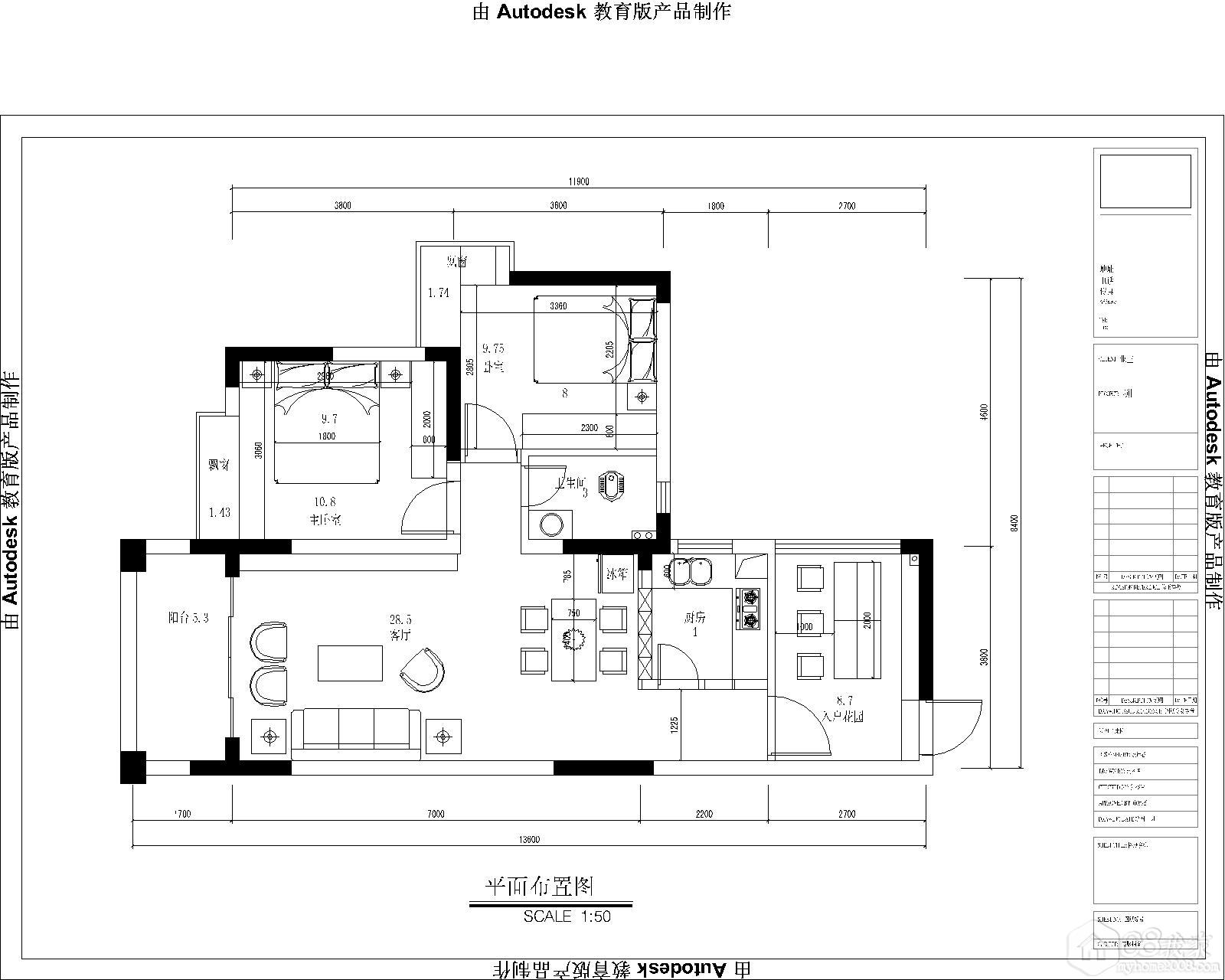
建筑面积85 使用面积72
回复

使用道具 举报

40

帖子

0

原创值

68

金币

大二_装修学长

Rank: 2

积分
44

社区居民忠实会员

 楼主| 发表于 2013-09-26 20:56:09 | 显示全部楼层
由于是2房  未做过多墙体改动 1原始洗手间正对着主卧风水不好,洗手间做了敲墙移位。2 厨房面积过小缺少储藏空间,做了敲墙利用空间做储藏柜3 次卧进门也敲了墙 把门移进去了。
回复

使用道具 举报

40

帖子

0

原创值

68

金币

大二_装修学长

Rank: 2

积分
44

社区居民忠实会员

 楼主| 发表于 2013-09-26 20:58:54 | 显示全部楼层
不知道装友看得清楚不
新家尺寸图22-布局1.jpg
回复

使用道具 举报

40

帖子

0

原创值

68

金币

大二_装修学长

Rank: 2

积分
44

社区居民忠实会员

 楼主| 发表于 2013-09-26 21:10:05 | 显示全部楼层
阿吉:   恭喜开贴 (2013-09-26 20:42)
谢谢 以前雅虎邮箱出了问题 未能注册,拖到现在才开贴。
回复

使用道具 举报

1344

帖子

0

原创值

1622

金币

装修大学_研究生

通用时代-董妞

Rank: 5Rank: 5

积分
1194

社区居民忠实会员社区劳模社区明星最爱沙发

发表于 2013-09-26 21:28:54 | 显示全部楼层
看清楚了,基本没什么改动。
回复

使用道具 举报

40

帖子

0

原创值

68

金币

大二_装修学长

Rank: 2

积分
44

社区居民忠实会员

 楼主| 发表于 2013-09-26 22:00:01 | 显示全部楼层

敲墙布水电

和师傅约好开工日期 我提前买好水电材料 花费1674元。材料品牌为金杯电线、日丰水管、秋叶原网线、联塑线管及2桶大禹KII防水涂料。
QQ图片20090926215618.jpg
QQ图片20090926215639.jpg
QQ图片20090926215652.jpg
QQ图片20090926215703.jpg
回复

使用道具 举报

您需要登录后才可以回帖 登录 | 立即注册

本版积分规则