QQ登录    

08我家网

2023兔年大吉

PK石头:不要命的豪华装修——9月17日更新:上图片装修公司乌龙事件续集

[复制链接]

112

帖子

0

原创值

0

金币

大三_装修里手

Rank: 3Rank: 3

积分
101
发表于 2010-07-27 22:11:33 | 显示全部楼层
顶一下 新开张的贴
回复

使用道具 举报

2401

帖子

0

原创值

120

金币

装修大学_博士生

忍得住倦忍得住累忍不住囊中羞涩

Rank: 6Rank: 6

积分
2328

社区明星

发表于 2010-07-27 22:12:46 | 显示全部楼层
支持楼主。。。 踩石头  
回复

使用道具 举报

248

帖子

0

原创值

7

金币

大四_装修达人

Rank: 4

积分
229
 楼主| 发表于 2010-07-27 22:30:36 | 显示全部楼层
引用第21楼忍不住倦于2010-07-27 22:12发表的  :
支持楼主。。。 踩石头  
算不上踩,我们家那位私底下跟石头也是很好的朋友。只是看见他写日记了,我这颗懒惰的心忍不住也写写。当是互相鼓励互相支持吧
回复

使用道具 举报

248

帖子

0

原创值

7

金币

大四_装修达人

Rank: 4

积分
229
 楼主| 发表于 2010-07-27 22:32:27 | 显示全部楼层

占楼:预算

在DYRS填的客户反馈表里面,我的初步预算是这样的
计划装修总金额:  20  万元
其中基础装修:  7  万元
      主材部分:  4  万元
      家具部分:  3  万元
      电器部分: 3 万元
      软装饰部分: 1 万元
      取暖设备:2 万元

结果立马被批主材费用太少,要我把电器部分的预算加到主材里面去,无形中我就多了3W的预算
回复

使用道具 举报

248

帖子

0

原创值

7

金币

大四_装修达人

Rank: 4

积分
229
 楼主| 发表于 2010-07-27 22:37:05 | 显示全部楼层

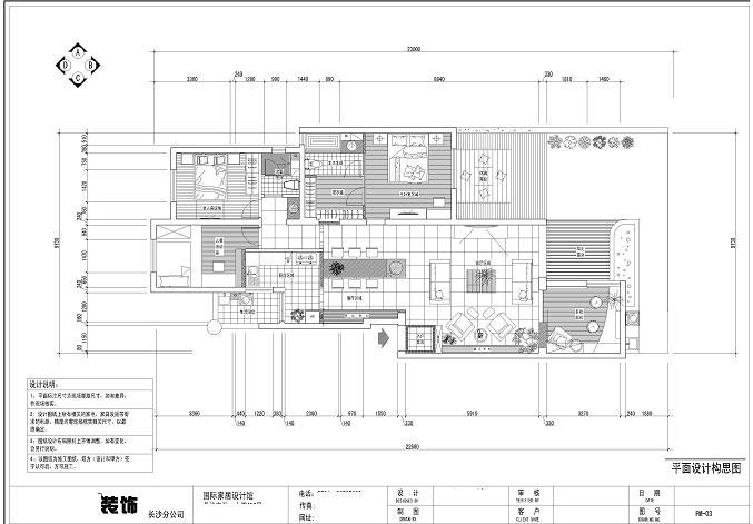
继续占楼:平面设计图

先上个W工的设计图吧。给石头做参考

       话说这个设计原本客厅中间做了一个圆形的设计,沙发、电视背景墙、地面、天花……包括鞋柜玄关都是弧形的。我很喜欢,老公也喜欢。但自从老公去家具店躺了芝华士的头等舱沙发之后,立马改变了想法,还美其名曰说是弧形做着没底。

       这没想到一张沙发改变一个设计啊~~好舍不得我的圆形客厅

      如果08里面有想做成圆形客厅的,可以找我免费提供图纸和DYRS的报价,参考完成Dream House
平面设计图.JPG
回复

使用道具 举报

248

帖子

0

原创值

7

金币

大四_装修达人

Rank: 4

积分
229
 楼主| 发表于 2010-07-27 22:44:42 | 显示全部楼层

无良的KFS

遥想买房当年,房子砌好了。我天晴下雨、白天晚上都去看了一圈。发现我的阳光房也就是楼上的露台不漏水,下雨的时候排水还不错,有阳光又没有东晒西晒的,房屋尺寸也没什么问题,加上我那个搞建筑的father说这种房子一般不会有什么大的质量问题,想着交房前KFS总要粉饰一下,在资金到位的情况下,我就买了。

    装修的时候我才发现一堆问题。首先是验房,居然每间房都有空鼓;其次是量房,KFS为什么要把净层高做得不一样高?客厅2米82,餐厅2米91,阳光房却只有2米65?净层高做得不一样高也就罢了,反正要吊顶,问题是梁也不一样高,如果全部就底不就高,我那房子就只剩下2米5多,加上地暖+贴砖,不要活了~~

    整改更是“高效”,从5月1号提出整改意见到现在,除了空鼓,其它地方根本没改动。哪怕是接根下水管道这样的小问题都整改到现在还不见有动静。估计以后也不用改了,因为我的园林想办法帮我处理了这根恼人的下水管。 没接好的下水管.JPG
现在做园林的人已经砌了个水槽,让排水都汇聚到一起,管子也就不用接了。当初物管信誓旦旦的跟我说,整改超期的物管费他们出,是不是意味着我们家一辈子都不用出物管费啊?

    再来装修时发现的问题:
    问题一:先来看郁闷的厨房地漏 厨房地漏.JPG
厨房地漏2.JPG
  看懂这两张图了吗?地漏的管子居然没接到下水管上。要不是装修师傅发现了这个问题,我家厨房以后岂不是要水漫金山了?控诉一下物业管理的处理,我打了电话过去,人马上派来,叫我自己拍照到物管也就罢了,叫我自己传到杨佳的QQ上也就罢了,居然我过了两三天去现场发现装修师傅自己在接地漏管子?!

    问题二:应该拍照的,无良!有些电线根本没穿管!要是别人家不花这3W全房改造,岂不是以后根本换不了线?

    问题三:墙是歪的,而且歪得泥工师傅抹了灰都抹不成90度角!明天找张图片来看看

  问题四:看图说话,请忽略那双晒得乌黑的脚 花园裂缝2.JPG
花园裂缝.JPG
回复

使用道具 举报

248

帖子

0

原创值

7

金币

大四_装修达人

Rank: 4

积分
229
 楼主| 发表于 2010-07-27 22:45:02 | 显示全部楼层

水电完工

终于开始写占楼的帖子了。相片早就照了,就是懒得传到相机里面。传完之后又懒得编辑把图片弄小一点,于是乎拖到现在。

    不废话了,超多图片,都是水电完工的图。黄色是DYRS的提供的水管,好像是德国百丽的管子,价格不便宜,九十几一米,好像只要加了“进口”二字,价格起码贵50%;灰色的是DYRS提供的电管,国产的,开槽40,不开槽28。光家里的水电全房改造就是3W多,我的银子啊,都在这看不见的地方了。

    先是电视背景,N多插座 水电完工.JPG
那个塑料袋子里面是我在淘宝买的秋叶原HDMI线和色差线,,加上音响线一起,一共1K多大洋,准备装投影用。我老公梦想的家庭影院~~~HDMI线太粗,普通电管穿不下,电工陈工特地用了白色的粗管。

        再是客厅地面 水电完工2.JPG
   水电完工3.JPG


        接下来是天花 水电完工4.JPG


       看看“进口”水管是什么样子的 水电完工5.JPG


       打压试验 水电完工6.JPG


       厨房 水电完工7.JPG
  

      最后传一张:弱电箱 水电完工8.JPG
花了我220买的西蒙弱电箱啊,里面什么配件都没有,也不知道配件要多少钱
回复

使用道具 举报

248

帖子

0

原创值

7

金币

大四_装修达人

Rank: 4

积分
229
 楼主| 发表于 2010-07-27 22:45:33 | 显示全部楼层

让人又爱又恨的地暖啊

这个地暖工程一共差不多2W。.清单如下:
意大利依玛锅炉24KW带烟管冷热水接口
德国曼瑞德分水器7回路带6个液晶温控
瑞士+GF+PE-RT采暖99.43平米
瑞士乔治费歇尔地暖管道、采暖管、主机接头、弯头;
国产本板、铝箔反射膜、塑料卡钉、弯管卡、保温材料

其实对于这个价格我还是挺能接受的,前前后后跟做地暖的谈了不下10次,才把价格压下来,在我的预算以内。

先来看看密密麻麻的地暖管道吧   地暖管道.JPG


再来,看看多花了好几千的分水器   分水器.JPG


话说这分水器啊,本来不需要这么贵的,但我非要温控,做地暖的说那就必须换成德国曼瑞德的分水器, 因为曼瑞德精确一些,才能做成温控,就这样,我又多花了3K。不过因为有间房做了榻榻米,我就没做地暖,再加上有个地方从厨房改成过道,就加铺了水管。最后面积95平米。


下面是让我痛恨的部分了:
温控要我自己找电工走线,300
全房电线改造因为做地暖全部要走墙角,所以多了100多米线,多花了四五千
全房在做完地暖之后要按照鹅卵石:沙:水泥=3:2:1找平。厨房、阳光房和阳台虽然没做,但为了整体地面的一致性也要找平,跟项目经理一顿砍价,最后4500.我觉得有点贵,估计在外面找泥瓦工3000足够了,但我实在懒得麻烦了,只好认了

这么算起来,地暖其实给我增加了3W的成本。打算做得TX一定要想清楚啊
回复

使用道具 举报

1156

帖子

0

原创值

450

金币

荣誉版主

积分
1101

社区居民忠实会员

发表于 2010-07-27 23:02:12 | 显示全部楼层
芝华士的沙发。。。。。。
回复

使用道具 举报

629

帖子

0

原创值

3

金币

装修大学_研究生

半生漂泊,思安营扎寨

Rank: 5Rank: 5

积分
534

社区居民

发表于 2010-07-27 23:20:28 | 显示全部楼层
好象我的印象中,石头买的不是蔚蓝海岸的房子,怎么这个帖子里,写的是你们是邻居
回复

使用道具 举报

您需要登录后才可以回帖 登录 | 立即注册

本版积分规则