QQ登录    

08我家网

2023兔年大吉

看图说话,将标准化装修坚持到底,美貌和质量两手抓!

[复制链接]
  • 所在城市:长沙
  • 所在小区:富兴嘉城
  •  
  • 装修类型:新房装修
  • 装修户型:四房
  •  
  • 装修方式:半包
  • 装修风格:其它
  •  
  • 装修预算:30万以上
  • 开工时间:2013-10-30
  • 前期设计
  • 主体拆装
  • 水电
  • 泥工
  • 木工
  • 油漆
  • 成品安装
  • 软装配饰
  • 毕业
已装修历时4374

84

帖子

0

原创值

114

金币

大三_装修里手

Rank: 3Rank: 3

积分
72

社区居民

发表于 2013-10-30 21:46:44 | 显示全部楼层 |阅读模式
格局:四室两厅 南北通透板式结构  两梯两户
建筑面积:160m

装修团队:
设计师:阿鲁
施工队:随和
水电:***
地暖、新风:享家
当然还有一个自封为总监的帅锅:表哥
貌似阵容还比较华丽~~~~都是群里的牛人们,期盼出来的效果也是杠杠的~~~欢迎大家随时来工地参观!我们有技术专家~~随和现场上课讲解装修工艺和程序~~~

        当初房子买的匆忙,对户型无任何研究,看中了那个近9平米的花园阳台就匆忙下手,后事实证明,欠缺深思熟虑的后果就是选了一套不知所云的房子。唯一自我安慰的地方就是房子是南北通透,两梯两户。当然,要享受私密是要付出代价的,公摊也大得吓人。
一直对自己的户型不满意,但是自从进了一品堂,看过N套房子以后,发现好像房子布局也不是那么差劲,除了厨房小点,儿童房不够周正,似乎还过得去,不过在群里各位牛人的熏陶下,我对户型的鉴赏水平略有提高,发现了一个致命伤。。。。。
这个户型图最奇葩的地方不知大家能找到不~~~让我差点吐血~~~导致之后的布局成了一个伤脑筋的问题。
原始户型图:

原始户型图

原始户型图

84

帖子

0

原创值

114

金币

大三_装修里手

Rank: 3Rank: 3

积分
72

社区居民

 楼主| 发表于 2013-10-30 21:51:32 | 显示全部楼层
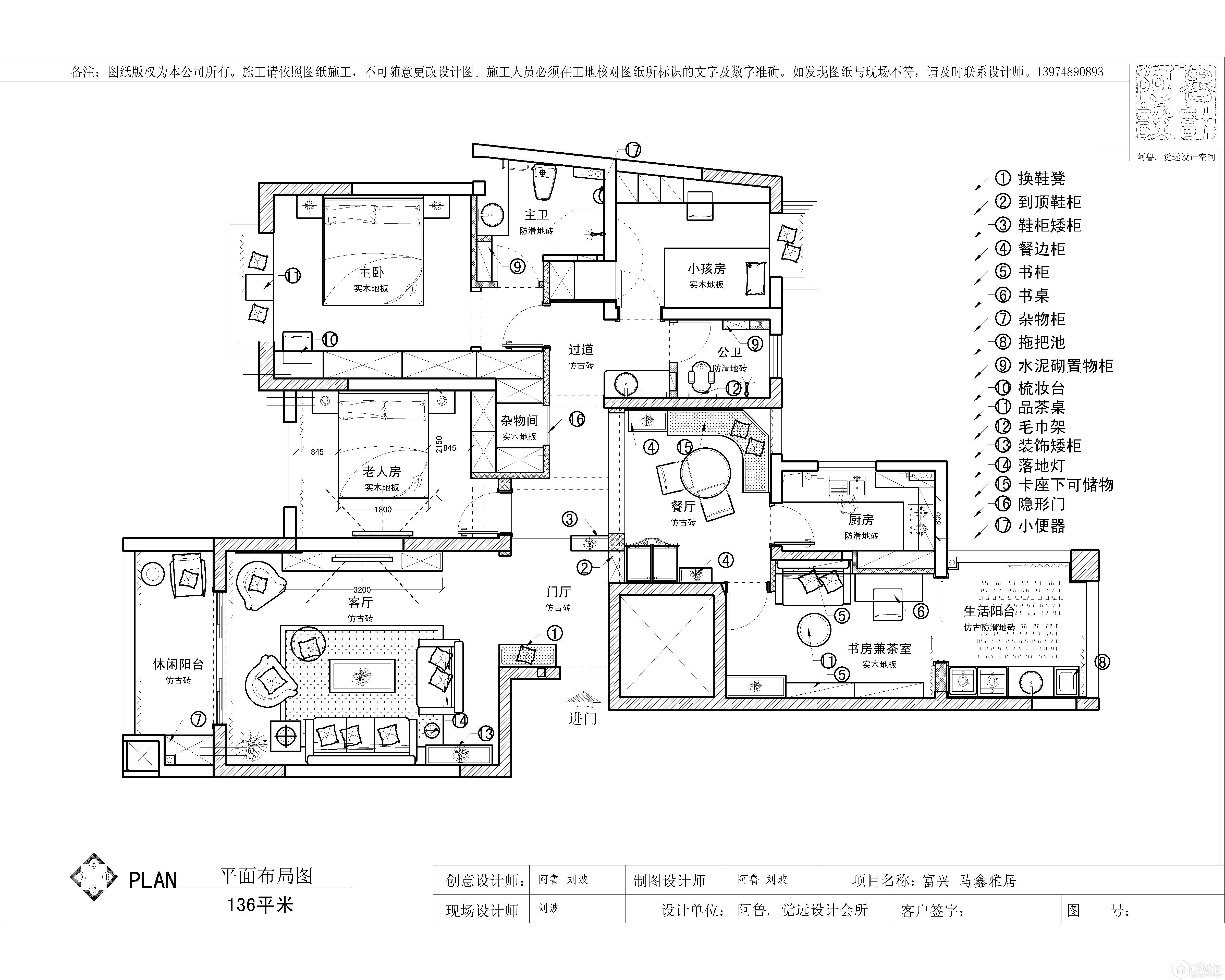
在阿鲁给我设计之前,我的思绪是混乱的,总想把各种各样我喜欢的元素全部堆进去,现代美式、中式、东南亚、乡村风、韩式、日式都堆砌进去,美其名曰:姐走的是传统混搭路线,要的就是与众不同。
    然后,被阿鲁一瓢冷水泼醒,告诉我:只能钟情一种,否则免谈!
    选哪一种啦,我又开始纠结。。。。
    鉴于本人是受过中式文化熏陶的传统中国女性,我第一选择是中式。
    阿鲁说:我建议你放弃 ,你预算不够~~~!
    太直接了 ,有没有考虑过我的感受~~~!!!
    不过,偶就喜欢这种快刀斩乱麻的感觉。
    在金钱与中意之间,我好不犹豫的选择了~~~~放弃!!!!
    于是,稀里糊涂的第二选择,现代美式登场~~~至今为止,属于越来越喜欢的风格,有家的温暖,又自由随意~~·即使很乱很乱,我也有借口说:就是这个范啊~~~~表要鄙视我~~!因为我说出的是大多数人的心声~~
     阿鲁的设计给我的第一感觉就是空间感很强!每个空间都有自己完整的功能,但是又和整体密不可分,即独立又合群,这是我对设计最看重的一个方面。再就是非常的实用,空间利用率较高,基本没有太多的浪费。对于用血汗钱买房的我们来说,是最大的欣慰!
整体没有华而不实的刻意,只有低调的温婉、大气~~~与本人气质基本吻合。
阿鲁很有想法,也很坚持原则,但并不代表你就什么都不要想,他其实很乐意和你沟通,也需要你的想法去完成一个双方都满意的作品,所以,你要请他,首先也必须有自己的想法。
但是,我也要提一个小小的意见:阿鲁,你的设计能够再大胆一点吗,破旧立新需要勇气,也需要实践,期待你更加震撼人心的作品。
里面有个地方的设计是我的想法,得到了阿鲁大师的认可,不知道亲们能看的出不~~~
最后,欢迎大家拍砖~~~
香香平面-02.JPG
回复

使用道具 举报

1万

帖子

628

原创值

1万

金币

荣誉版主

积分
8155

社区居民忠实会员社区劳模最爱沙发社区明星

发表于 2013-10-31 09:53:11 | 显示全部楼层
恭喜开贴!欢迎成员08日记的一员!
回复

使用道具 举报

1万

帖子

628

原创值

1万

金币

荣誉版主

积分
8155

社区居民忠实会员社区劳模最爱沙发社区明星

发表于 2013-10-31 09:54:22 | 显示全部楼层
现代美式,期待效果
回复

使用道具 举报

4694

帖子

0

原创值

2739

金币

装修大学_教授

Rank: 7Rank: 7Rank: 7

积分
4130

吃货民间厨神社区居民忠实会员社区劳模最爱沙发原创达人社区明星购物达人

发表于 2013-10-31 12:34:04 | 显示全部楼层
恭喜开贴哦
回复

使用道具 举报

1263

帖子

0

原创值

2040

金币

装修大学_研究生

Rank: 5Rank: 5

积分
696

社区居民忠实会员社区劳模

发表于 2013-10-31 14:00:22 | 显示全部楼层
恭喜开工,期待ing
回复

使用道具 举报

577

帖子

0

原创值

521

金币

装修大学_研究生

Rank: 5Rank: 5

积分
521

社区居民忠实会员社区劳模最爱沙发

发表于 2013-10-31 16:18:02 | 显示全部楼层
现代美式,期待效果
回复

使用道具 举报

1万

帖子

628

原创值

1万

金币

荣誉版主

积分
8155

社区居民忠实会员社区劳模最爱沙发社区明星

发表于 2013-11-01 17:13:39 | 显示全部楼层
max香香,芹菜来邀请你参加日记下半年入围赛   看好你哦!加油!冲出预赛,冲进决赛!赶快去跟帖报名参加吧。
入围赛报名链接:http://www.08wojia.com/thread-71519-1-1.html
回复

使用道具 举报

545

帖子

0

原创值

1098

金币

大四_装修达人

Rank: 4

积分
324

社区居民忠实会员

发表于 2013-11-02 10:53:24 | 显示全部楼层
恭喜开帖,阿鲁的设计不错!!
回复

使用道具 举报

1万

帖子

628

原创值

1万

金币

荣誉版主

积分
8155

社区居民忠实会员社区劳模最爱沙发社区明星

发表于 2013-11-05 22:22:32 | 显示全部楼层
max香香 发表于 2013-10-30 21:51
在阿鲁给我设计之前,我的思绪是混乱的,总想把各种各样我喜欢的元素全部堆进去,现代美式、中式、东南亚、 ...

又是阿鲁的设计啊,期待再次看到貌美的手绘图
回复

使用道具 举报

您需要登录后才可以回帖 登录 | 立即注册

本版积分规则