QQ登录    

08我家网

2023兔年大吉

跨年装修进行中,年前计划水电完工

[复制链接]

84

帖子

0

原创值

222

金币

大二_装修学长

Rank: 2

积分
43
 楼主| 发表于 2014-01-03 19:58:17 | 显示全部楼层
阿吉 发表于 2014-1-3 19:09
第一家就是样板啊。。
哈哈。
那以后第二家呢?

是呀!装修是苦海无边,回头是岸
回复 回复(1)条

使用道具 举报

1373

帖子

0

原创值

1633

金币

装修大学_研究生

做人,品为先,才为次。

Rank: 5Rank: 5

积分
1226

社区居民社区明星新人进步奖忠实会员社区劳模最爱沙发

发表于 2014-01-03 20:13:56 | 显示全部楼层
sdsy 发表于 2014-1-3 19:58
是呀!装修是苦海无边,回头是岸

嗯 阿吉在看你们进度啊 哈哈
回复

使用道具 举报

272

帖子

0

原创值

405

金币

大三_装修里手

Rank: 3Rank: 3

积分
137

社区居民

发表于 2014-01-04 11:24:43 | 显示全部楼层
装修小白弱弱的问一句,PR是哪家公司呀
回复 回复(1)条

使用道具 举报

84

帖子

0

原创值

222

金币

大二_装修学长

Rank: 2

积分
43
 楼主| 发表于 2014-01-04 11:49:28 | 显示全部楼层

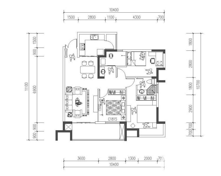
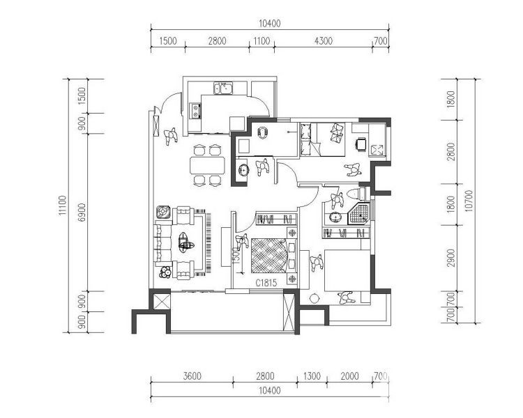
户型图,小三房比较紧凑

本帖最后由 芹菜 于 2014-1-22 16:51 编辑

户型图

户型图


回复

使用道具 举报

84

帖子

0

原创值

222

金币

大二_装修学长

Rank: 2

积分
43
 楼主| 发表于 2014-01-04 12:02:43 | 显示全部楼层
葳香香 发表于 2014-1-4 11:24
装修小白弱弱的问一句,PR是哪家公司呀

网络家装:品然
回复

使用道具 举报

84

帖子

0

原创值

222

金币

大二_装修学长

Rank: 2

积分
43
 楼主| 发表于 2014-01-04 12:09:33 | 显示全部楼层
户型图,小三房,比较紧凑

户型图

户型图
回复

使用道具 举报

84

帖子

0

原创值

222

金币

大二_装修学长

Rank: 2

积分
43
 楼主| 发表于 2014-01-04 14:07:04 | 显示全部楼层
阿舍空间构造 发表于 2014-1-4 13:16
期待楼主进度照曝光!  怎么都会把跟装饰公司之间的交易说得那么难哦 斗智斗勇斗用上了 !

呵呵,夸张了,不过好多人都有装修恐惧症,是不是又危言耸听了
回复

使用道具 举报

217

帖子

0

原创值

482

金币

设计师

Rank: 8Rank: 8

积分
260

社区居民

发表于 2014-01-04 16:56:56 | 显示全部楼层
感觉有点噢  其实把我心态  货比三家就好!如果是初门生 就难说了!
回复

使用道具 举报

6682

帖子

0

原创值

1万

金币

荣誉版主

积分
5451

终身成就奖优秀斑竹奖宣传大使奖特殊贡献奖金点子奖原创先锋奖灌水天才奖认证团长社区居民忠实会员最爱沙发社区劳模社区明星

发表于 2014-01-04 20:40:07 | 显示全部楼层
恭喜开贴,户型不错,没有浪费的,祝装修顺利!
回复

使用道具 举报

2802

帖子

0

原创值

1270

金币

装修大学_研究生

Rank: 5Rank: 5

积分
1474

社区居民

发表于 2014-01-04 22:29:37 | 显示全部楼层
又是邻居 又是“同班同学”必须支持一下  哈哈  恭喜开贴
回复 回复(1)条

使用道具 举报

您需要登录后才可以回帖 登录 | 立即注册

本版积分规则