QQ登录    

08我家网

2023兔年大吉

【2014日记亚军】2014再见,奋斗不止!我们在路上!蓝队39号风风吹落☞屌丝美式风,18w搞定129平!超强全部网购清单大放送!云南夫妻长沙娃,无熟人无亲戚,一切有08

  [复制链接]

3950

帖子

0

原创值

3945

金币

装修大学_博士生

Rank: 6Rank: 6

积分
2305

社区居民忠实会员社区劳模最爱沙发

 楼主| 发表于 2014-03-11 12:18:02 | 显示全部楼层
乌托邦-女汉纸 发表于 2014-3-11 10:28
女人呀 看上好的东西 其他差点的就看不上眼了 不过装修这个事情想想还是得装好点,不然十年二十年后那装 ...

是的~~~装修这个事情真是要提前预计好多东西
回复

使用道具 举报

3950

帖子

0

原创值

3945

金币

装修大学_博士生

Rank: 6Rank: 6

积分
2305

社区居民忠实会员社区劳模最爱沙发

 楼主| 发表于 2014-03-11 12:54:53 | 显示全部楼层

【梦洁家居杯2014日记大赛】12月23日更新《入住后大吐槽,那些坑爹的玩意们》,蓝队39号风风吹落☞屌丝美式风,18w搞定129平!超强全部网购清

本帖最后由 风风吹落 于 2015-1-7 12:47 编辑

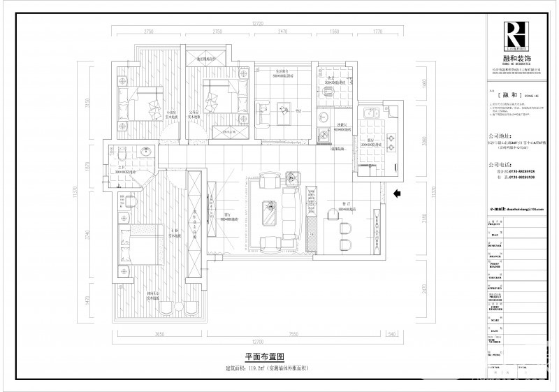
精算表、施工图出炉




    落落是个大懒虫,周六就去RH拿了精算表,表扬一个设计师超男,他很用心,给我设计了一个貌美的卫生间~~~超级期待成品!


    精算最终半包价格是5.7w,包括了水电、泥工、墙漆还有一个鞋柜、一个吧台、一个造型卡座、一个飘窗柜。落落觉得静算还是超了我的预算,没办法只能一项一项的慢慢琢磨着精简了!我的目标是5W!
    1、可以在外面定制的,就尽量在外面定制了,飘窗柜找定制衣柜的地方搞定,还可以避免卧室的色差,减除1593.8的费用,石膏线在RH做是24一米,在外面做最多15一米包安装,这里算下来总共可以省620.6元。
    2、落落家打算用实木踢脚线算了,因为听不少人说如果用瓷质踢脚线最好入墙,但是入墙要多加20一米的人工费用,总共就要30.5一米的人工费用,再加上砖,还不如直接用白色实木的踢脚线,更上档次,也漂亮哈,我问了部分木地板的地方,踢脚线大概是25一米左右,加上安装大概也就是30左右,这里省了230元
    3、计算多了几个风管机吊顶费用,共计1945.2元。我家的卫生间不用回填,只需要地面垫高就可以了,这里省去272元。
    4、客厅的背景墙打算不做造型了,到时候直接买个HH风格的柜子放上去,做了造型就是好看,没有柜子实用哈,这里省去1538.2元。
    5、由于落落家有通窗,开发商整改的时候需要先把飘窗敲出再整改,所以索性自己找人把飘窗敲掉,不过融和敲飘窗真是贵呀,这里省掉1020元。
    综合以上各项,总共省去7219.8,但是鞋柜落落临时决定还是做到顶,这项可能又要增加1500左右,好伤心的费用啊。周末再去和超男商量下,有个造型看看能不能用个省钱的办法来做,做一个造型要900块又没啥实际用途感觉还是有点伤心了。
     还有那个让人伤心的上楼费,我家27楼,总共1620的材料上楼费,是不是贵的太离谱了,而且我家电梯可以进大芯板,这个费用就有点太伤心了!
     另外我严重想学EB,自己找点瓷砖保护材料,能省则省。  


    这是落落家的平面图。基本上半包要做的已经在里面了,现在还在持续修改中,对这个设计我还是基本满意的。卧室里定制衣柜落落也去初步探了一下市场,初步意向是爱家全定制,没办法我已经EB中毒了!到时候打算儿童房书桌衣柜也全定制了!免得还要逛家具市场。除了客厅的木作,其他全定制


    潇湘名城量房施工图-Model.jpg

   
回复 收藏 回复(5)条

使用道具 举报

3950

帖子

0

原创值

3945

金币

装修大学_博士生

Rank: 6Rank: 6

积分
2305

社区居民忠实会员社区劳模最爱沙发

 楼主| 发表于 2014-03-11 13:15:06 | 显示全部楼层
     淘宝最近搞了家装节,说实话淘宝控的我一定要好好珍惜这次机会。先整理我看上的几样东西
    799欧琳水槽,求大神看看这个水槽值不值得入手,含龙头和沥水篮。@ebscncs T28_qIXzNaXXXXXXXX-365776431.jpg






欧普照明的筒灯29.9,感觉还比较靠谱,去年双十一也差不多就这个价
T2DzlgXuXXXXXXXXXX_!!138006397.jpg




顾家的沙发,3599三包到家,这个价格真心便宜,可惜我一直想买那种偏美式风的沙发,这次家装节没有,不过家装节部分商品的确够便宜了,堪比双十一的价格。
T2bvlXXylXXXXXXXXX_!!661916707.jpg


回复 回复(1)条

使用道具 举报

993

帖子

0

原创值

1031

金币

装修大学_研究生

Rank: 5Rank: 5

积分
519

忠实会员社区居民最爱沙发原创先锋奖新人进步奖贴图大师奖

发表于 2014-03-11 15:42:53 | 显示全部楼层
东西真心不错的感觉,可是,我错过了家装节么。。。
回复

使用道具 举报

15

帖子

0

原创值

20

金币

大一_装修新生

Rank: 1

积分
8
发表于 2014-03-11 19:10:22 | 显示全部楼层
学习中了,好东西啊,
回复 回复(1)条

使用道具 举报

3950

帖子

0

原创值

3945

金币

装修大学_博士生

Rank: 6Rank: 6

积分
2305

社区居民忠实会员社区劳模最爱沙发

 楼主| 发表于 2014-03-12 09:35:06 | 显示全部楼层
jiaqing0067 发表于 2014-3-11 19:10
学习中了,好东西啊,

我家还没开工呢
回复

使用道具 举报

1万

帖子

0

原创值

9607

金币

论坛元老

掰子姐

Rank: 15Rank: 15Rank: 15Rank: 15Rank: 15

积分
11275

吃货社区居民社区明星忠实会员最爱沙发新人进步奖幽默大师奖贴图大师奖原创先锋奖金点子奖特殊贡献奖宣传大使奖优秀斑竹奖终身成就奖灌水天才奖社区劳模原创达人

发表于 2014-03-12 14:16:58 | 显示全部楼层
风风吹落 发表于 2014-3-11 12:54
精算表、施工图出炉
    落落是个大懒虫,周六就去RH拿了精算表,表扬一个设计师超男,他很用心,给我设 ...

算得很仔细啊~
不过只是在装修公司做的部分减少的,看着有些东西还是要装的,这些费用还是得另外出,这减减增增还是要算笔总账。
回复 回复(1)条

使用道具 举报

3950

帖子

0

原创值

3945

金币

装修大学_博士生

Rank: 6Rank: 6

积分
2305

社区居民忠实会员社区劳模最爱沙发

 楼主| 发表于 2014-03-12 14:38:10 | 显示全部楼层
叽歪 发表于 2014-3-12 14:16
算得很仔细啊~
不过只是在装修公司做的部分减少的,看着有些东西还是要装的,这些费用还是得另外出,这 ...

是的啊,不过多出的项我在预算表里写了的。。。权衡下来还是自己做划算些
回复

使用道具 举报

652

帖子

0

原创值

1724

金币

装修大学_研究生

Rank: 5Rank: 5

积分
591

民间厨神社区居民忠实会员社区劳模最爱沙发

发表于 2014-03-17 10:46:48 | 显示全部楼层
我周末的时候也是去的融合 然后说墙自己敲 但是他说如果那个墙自己敲了 他们要收一处墙大概收200左右的修补费 一处就200呢!!!
回复 回复(1)条

使用道具 举报

3950

帖子

0

原创值

3945

金币

装修大学_博士生

Rank: 6Rank: 6

积分
2305

社区居民忠实会员社区劳模最爱沙发

 楼主| 发表于 2014-03-17 12:27:14 | 显示全部楼层
思思思 发表于 2014-3-17 10:46
我周末的时候也是去的融合 然后说墙自己敲 但是他说如果那个墙自己敲了 他们要收一处墙大概收200左右的修补 ...

修补是要的,我也是要的,一样的,我周末去看最终精算价格是5.18w
回复 回复(2)条

使用道具 举报

您需要登录后才可以回帖 登录 | 立即注册

本版积分规则