QQ登录    

08我家网

2023兔年大吉

老田家的环保简装(瓷砖橱柜洗漱台安装完毕)

[复制链接]

30

帖子

0

原创值

0

金币

大二_装修学长

Rank: 2

积分
30
发表于 2010-08-28 15:17:05 | 显示全部楼层

回 4楼(田舍翁) 的帖子

老田说的都挺实在的,喜欢看这种贴子。
回复

使用道具 举报

728

帖子

0

原创值

63

金币

装修大学_研究生

Rank: 5Rank: 5

积分
664

社区居民

 楼主| 发表于 2010-08-28 21:01:10 | 显示全部楼层
今天说说,我为什么选择RH?
    同RH的联系始于去年底,后来因为,物业整改时把我家的推拉门的玻璃打烂了,迟迟不能交房,也就没有联系过了。再后来,家博会上,老婆还在MD交了装修订金。但我最后还是选择了RH。
   选择RH并不是因为他们便宜,其实报价比他们便宜的公司,长沙市还有不少,有的特别小的公司的价格低得你不敢要他装修,就是大的公司如MD的价格也比RH高不了多少,就是百分之几而已;选择RH也不是因为他们比其它公司做得特别好,到现在,我还没有去过他们的工地看过,仅仅是在网上看过些图片而已。选择RH的原因主要是:
    第一,他们没有打过搔扰电话。不象有的公司,经常不断地打电话,发短信。
    第二,他们的报价还算透明,估算书是可以拿走的。在长沙,这样的公司不多,也就几家而已,如九千九公司。
    第三,他们用的材料比较环保。
    第四,他们没有什么升级之类的东西。
    所以,我就退了老婆在MD的单,选择了RH,但愿RH不要让我失望,不要让我在家里被老婆指责!!!!!
回复

使用道具 举报

728

帖子

0

原创值

63

金币

装修大学_研究生

Rank: 5Rank: 5

积分
664

社区居民

 楼主| 发表于 2010-08-28 21:14:12 | 显示全部楼层
今天去订了立升的净水,价格还算实惠,感谢团长。
就是他的赠品---------小推车,不敢恭维,我刚出他们的门还不到200米,正悠闲地拖着走时,发现越来越重了,回头一看轮子不见了。
回复

使用道具 举报

4584

帖子

0

原创值

6637

金币

管理员

Rank: 20Rank: 20Rank: 20Rank: 20Rank: 20

积分
4185

社区居民社区明星忠实会员最爱沙发社区劳模

发表于 2010-08-28 21:16:01 | 显示全部楼层
我刚出他们的门还不到200米,正悠闲地拖着走时,发现越来越重了,回头一看轮子不见了。............
老田的笑话。。笑死人哈。。。。。。
回复

使用道具 举报

728

帖子

0

原创值

63

金币

装修大学_研究生

Rank: 5Rank: 5

积分
664

社区居民

 楼主| 发表于 2010-08-28 21:52:17 | 显示全部楼层
是真的,不是笑话。找了好久才找到的。
回复

使用道具 举报

269

帖子

0

原创值

23

金币

大四_装修达人

Rank: 4

积分
244

社区居民

发表于 2010-08-29 23:03:37 | 显示全部楼层
老田原来在这里啊,看看
回复

使用道具 举报

330

帖子

0

原创值

96

金币

大四_装修达人

Rank: 4

积分
280

社区居民

发表于 2010-08-30 01:51:58 | 显示全部楼层
老田的冷笑话,真逗!
咱们同一家公司,期待大作!
回复

使用道具 举报

728

帖子

0

原创值

63

金币

装修大学_研究生

Rank: 5Rank: 5

积分
664

社区居民

 楼主| 发表于 2010-08-30 08:22:36 | 显示全部楼层
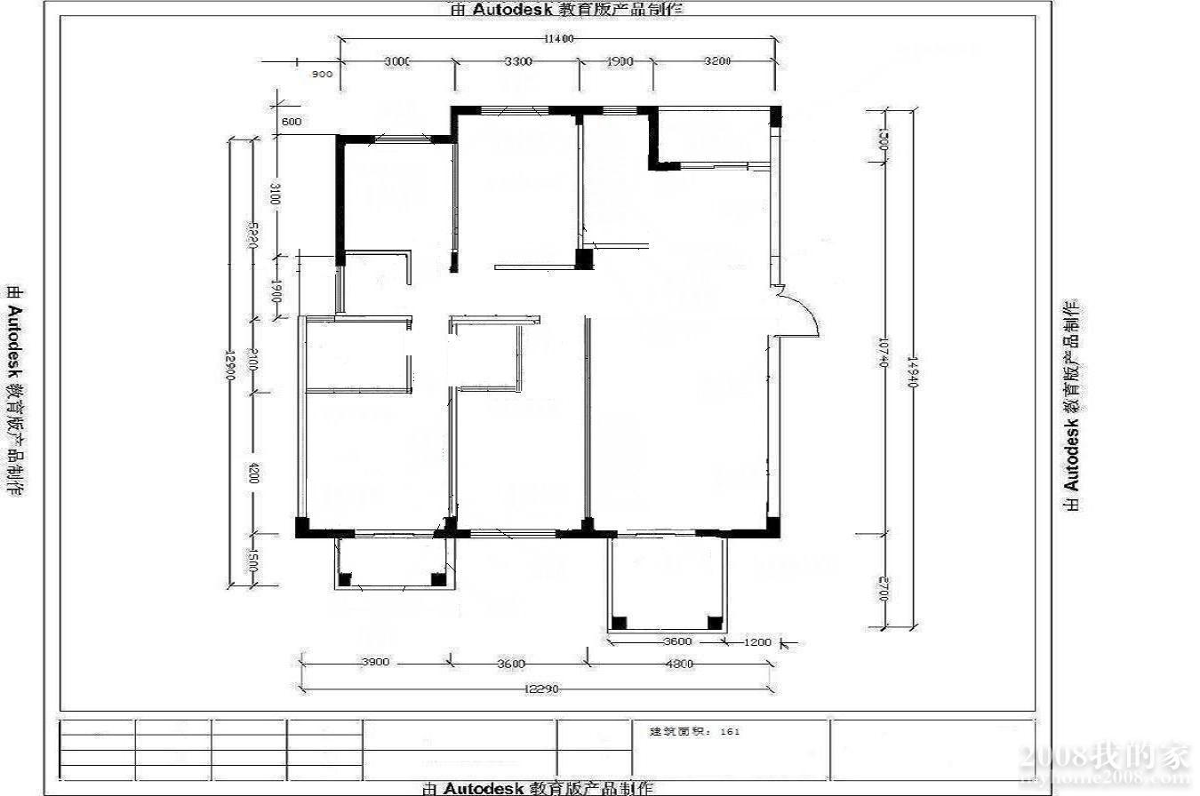
这是户型图。
原始平面图download0.jpg
原始平面图download0.jpg
回复

使用道具 举报

728

帖子

0

原创值

63

金币

装修大学_研究生

Rank: 5Rank: 5

积分
664

社区居民

 楼主| 发表于 2010-09-06 20:17:34 | 显示全部楼层
上面是户型图,正南北向的房子,通风还不错的。公摊也不大,就是价格有点高。
回复

使用道具 举报

728

帖子

0

原创值

63

金币

装修大学_研究生

Rank: 5Rank: 5

积分
664

社区居民

 楼主| 发表于 2010-09-06 20:32:06 | 显示全部楼层
好久没有写了,今天有点时间就写几句吧
   说说我的装修四项基本原则。
    第一,墙基本不敲。现在,好象敲墙是装修的一个基本的必不可少的环节,有的人家甚至于大部分墙都敲了,再重新砌。这样既浪费资源,又浪费钱财。敲一平方的墙后,必然要砌一个平方的,就是一百多米米,再加上什么建门洞,钱就更多了。一家敲个20平左右,至少要3千左右。所以,我就基本不敲。
    第二,顶基本不吊。吊顶不仅要花钱,而且使本来就不高的层高显得更低了。
    第三,造型基本不做。既可节约,又免得以后不好搞卫生。
    第四,纯装饰性的基本不要。象我家的灯,将基本以吸顶灯为主。
回复

使用道具 举报

您需要登录后才可以回帖 登录 | 立即注册

本版积分规则