QQ登录    

08我家网

2023兔年大吉
12
返回列表 发新帖

我爱我家Echo&Jolly

[复制链接]

2802

帖子

0

原创值

1270

金币

装修大学_研究生

Rank: 5Rank: 5

积分
1474

社区居民

发表于 2014-02-26 22:59:30 | 显示全部楼层
恭喜开贴,我也是新人哈,一起努力!!!
回复 回复(1)条

使用道具 举报

13

帖子

0

原创值

29

金币

大一_装修新生

Rank: 1

积分
8
 楼主| 发表于 2014-02-27 17:03:39 | 显示全部楼层
镜子镜子镜 发表于 2014-2-26 22:59
恭喜开贴,我也是新人哈,一起努力!!!

谢谢,一起努力!
回复

使用道具 举报

13

帖子

0

原创值

29

金币

大一_装修新生

Rank: 1

积分
8
 楼主| 发表于 2014-02-27 17:16:09 | 显示全部楼层
本帖最后由 echo2906 于 2014-2-27 17:25 编辑

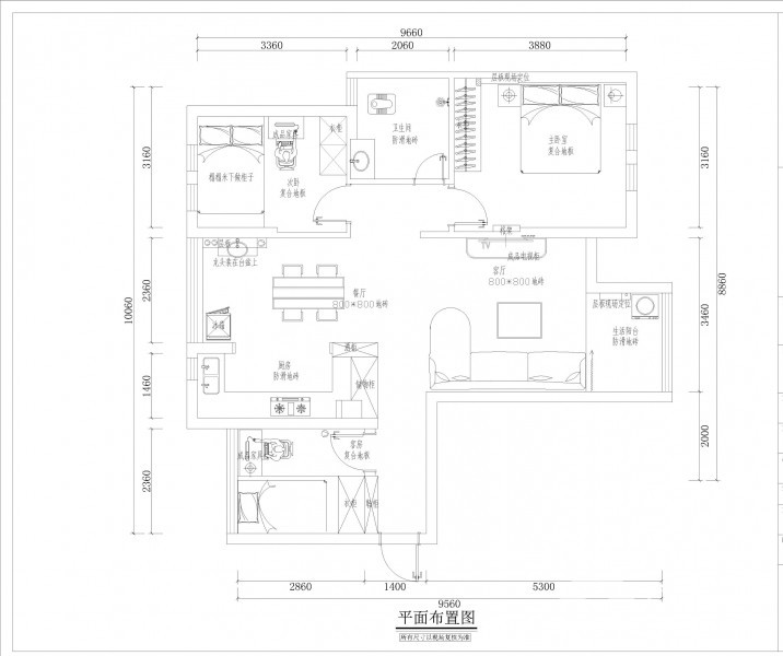
昨天北欧熊总传了几张效果图小图给我,我看了不是很满意,他说还没渲染的。期待过高,有点失望。还是等到周末再去看看他渲染的效果和实际预算再说吧。有点担心北欧这边过不了关的话再找设计公司又耽误时间,所以在装修123网上又发布了免费量房做方案的招标。昨天发布的,刚发布管理员就打电话过来确认消息。今天一上班就有2个装修公司打来电话预约量房。我只说周末才有时间,具体什么时候到时候再看。等看了北欧的再确定要不要继续找装修公司了。今天在业主群找邻居要了户型图,先传上来咯!网上找我们那个户型的图纸要么没尺寸,要么就是户型一样局部尺寸不一样。这是楼上邻居装修完的设计图纸截下来的,尺寸应该差不了。预备着另外找设计公司用的。 欧莱雅郡04户型.jpg
回复

使用道具 举报

648

帖子

0

原创值

558

金币

大四_装修达人

Rank: 4

积分
374

社区居民

发表于 2014-03-12 10:55:11 | 显示全部楼层
楼主是准备全包的节奏?
回复

使用道具 举报

119

帖子

0

原创值

85

金币

大三_装修里手

Rank: 3Rank: 3

积分
60
发表于 2014-03-16 17:27:52 | 显示全部楼层
看来楼主是对设计有一定要求啊..肯定是个对生活品质有追求的人..
设计很重要.施工更重要.楼主现在就要多了解一点施工方面的知识了.以免被忽悠噢..!
回复

使用道具 举报

273

帖子

0

原创值

243

金币

大四_装修达人

Rank: 4

积分
203
发表于 2014-03-16 23:04:51 | 显示全部楼层
楼主,我也是准备在名匠做全包,就是那个588套餐,已经交了设计费,初步预算在7万多,现在等精算价格。现在心里很忐忑,不知道最后会有多少要价钱的地方
回复

使用道具 举报

119

帖子

0

原创值

85

金币

大三_装修里手

Rank: 3Rank: 3

积分
60
发表于 2014-03-17 10:53:28 | 显示全部楼层
个人觉得.找小公司做.还不如找大公司的项目经理做.钱也省了.工程质量也有保障.80平的房子要十万多.再要换材料你只有这么大面积.这个报价确实有点高了.
回复

使用道具 举报

13

帖子

0

原创值

6

金币

大一_装修新生

Rank: 1

积分
8
发表于 2014-03-17 13:18:51 | 显示全部楼层
多给自己一些时间再做决定啊
回复

使用道具 举报

您需要登录后才可以回帖 登录 | 立即注册

本版积分规则