QQ登录    

08我家网

2023兔年大吉

[装修求助]这户型,要我把鞋柜放哪

[复制链接]

101

帖子

0

原创值

195

金币

大三_装修里手

Rank: 3Rank: 3

积分
60

社区居民

发表于 2014-03-02 20:20:59 | 显示全部楼层 |阅读模式
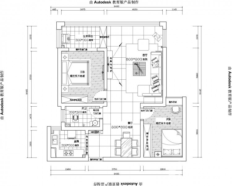
求各路大侠指示
家.jpg

101

帖子

0

原创值

195

金币

大三_装修里手

Rank: 3Rank: 3

积分
60

社区居民

 楼主| 发表于 2014-03-02 20:23:09 | 显示全部楼层
房子太小了,冰箱也没地方塞,555,最郁闷的是为毛卫生间门要对着次卧呢!
回复

使用道具 举报

7878

帖子

0

原创值

3159

金币

荣誉版主

积分
7785

社区居民社区明星终身成就奖宣传大使奖优秀斑竹奖原创先锋奖忠实会员最爱沙发社区劳模原创达人

发表于 2014-03-02 22:29:06 | 显示全部楼层
要解决冰箱问题,就只能考虑开放式厨房

要解决鞋柜问题,可以考虑将餐桌位改成靠墙卡座

进门右侧就可以腾出30cm的鞋柜空间了
回复 回复(1)条

使用道具 举报

1877

帖子

0

原创值

1524

金币

荣誉版主

积分
1371

社区居民社区明星忠实会员

发表于 2014-03-02 23:59:52 | 显示全部楼层
将鞋柜放在进门右手边,上面放装饰板等,起到玄关的作用。我觉得厨房做成开放式厨房挺好的,能解决冰箱问题。从风水角度来说,卫生间直接对着卧室门也不太好,是否考虑将卫生间门移位,这样能和卧室门错位。
回复 回复(1)条

使用道具 举报

101

帖子

0

原创值

195

金币

大三_装修里手

Rank: 3Rank: 3

积分
60

社区居民

 楼主| 发表于 2014-03-03 18:40:43 | 显示全部楼层
nick 发表于 2014-3-2 22:29
要解决冰箱问题,就只能考虑开放式厨房

要解决鞋柜问题,可以考虑将餐桌位改成靠墙卡座

将餐桌位改成靠墙卡座,nice,谢谢
回复

使用道具 举报

101

帖子

0

原创值

195

金币

大三_装修里手

Rank: 3Rank: 3

积分
60

社区居民

 楼主| 发表于 2014-03-03 18:45:15 | 显示全部楼层
咕噜猫 发表于 2014-3-2 23:59
将鞋柜放在进门右手边,上面放装饰板等,起到玄关的作用。我觉得厨房做成开放式厨房挺好的,能解决冰箱问题 ...

嗯咯,我也听说卫生间直接对着卧室门也好!不晓得猫猫说的放装饰板是什么概念?刚考虑装修,好多不懂的,呵呵
回复 回复(1)条

使用道具 举报

1万

帖子

0

原创值

9607

金币

论坛元老

掰子姐

Rank: 15Rank: 15Rank: 15Rank: 15Rank: 15

积分
11275

吃货社区居民社区明星忠实会员最爱沙发新人进步奖幽默大师奖贴图大师奖原创先锋奖金点子奖特殊贡献奖宣传大使奖优秀斑竹奖终身成就奖灌水天才奖社区劳模原创达人

发表于 2014-03-03 19:23:43 | 显示全部楼层
小丑鱼 发表于 2014-3-3 18:45
嗯咯,我也听说卫生间直接对着卧室门也好!不晓得猫猫说的放装饰板是什么概念?刚考虑装修,好多不懂的, ...

鞋柜上方做个起装饰作用的隔断。
回复 回复(1)条

使用道具 举报

157

帖子

0

原创值

593

金币

大三_装修里手

Rank: 3Rank: 3

积分
115

社区居民忠实会员

发表于 2014-03-04 12:24:31 | 显示全部楼层
进门右侧作鞋柜,进门对面放冰箱。是个伤脑筋的问题
回复 回复(1)条

使用道具 举报

535

帖子

0

原创值

557

金币

大四_装修达人

Rank: 4

积分
430

社区居民忠实会员社区劳模

发表于 2014-03-05 17:26:29 | 显示全部楼层
要解决卫生间的门的问题,如果不是承重墙的话,直接改到厨房这边就可以了。
回复 回复(1)条

使用道具 举报

101

帖子

0

原创值

195

金币

大三_装修里手

Rank: 3Rank: 3

积分
60

社区居民

 楼主| 发表于 2014-03-06 19:36:52 | 显示全部楼层
叽歪 发表于 2014-3-3 19:23
鞋柜上方做个起装饰作用的隔断。

哦,了解了,多谢
回复

使用道具 举报

您需要登录后才可以回帖 登录 | 立即注册

本版积分规则