QQ登录    

08我家网

2023兔年大吉

【油漆工进场(全程无隐藏,回帖是美德)原来墙漆的完工,是悲凉返工的前奏,曙光啊,你在哪】单亲妈妈一个人挑起的家----五万能搞定89平的房子硬装吗?

  [复制链接]

5070

帖子

0

原创值

533

金币

装修大学_教授

Rank: 7Rank: 7Rank: 7

积分
3865

社区居民忠实会员社区劳模最爱沙发社区明星原创达人原创先锋奖新人进步奖贴图大师奖宣传大使奖终身成就奖金点子奖特殊贡献奖

发表于 2014-05-13 09:06:56 | 显示全部楼层
rosie13 发表于 2014-5-12 22:16
第十六回  泥工贴砖坡度稍平  现场勘察师傅救场
    前几日到工地上,油漆师傅不知道为毛回老家了,工地上 ...

1、那个有窝窝的地方安装挡水条以后积水的问题是解决了,可是你这个挡水条没事先预埋,加上卫生间有放破,所以挡水条和地面之间肯定有缝隙,这个要找到合适的处理办法。
2、没看见你沐浴区的地漏,是否排水通畅。
3、地和面对缝隙问题,不影响使用,影响美观。对缝费工费材料。
回复 回复(1)条

使用道具 举报

1653

帖子

0

原创值

403

金币

装修大学_研究生

Rank: 5Rank: 5

积分
847

社区居民新人进步奖社区劳模

 楼主| 发表于 2014-05-13 09:24:31 | 显示全部楼层
ebscncs 发表于 2014-5-13 09:06
1、那个有窝窝的地方安装挡水条以后积水的问题是解决了,可是你这个挡水条没事先预埋,加上卫生间有放破 ...

谢谢金主,还是你权威的答复我才能放心。金主万福金安~~~~~~~~~~~~~~~~~~~~
回复

使用道具 举报

1045

帖子

0

原创值

1579

金币

装修大学_研究生

Rank: 5Rank: 5

积分
557

社区居民

发表于 2014-05-13 09:56:05 | 显示全部楼层
rosie13 发表于 2014-3-8 23:15
怎样做家居装修才省钱
第四回 巧装修方能节约  巧经验与君分享
      现在大多数家庭做装修都想要达到既 ...

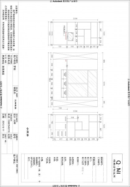
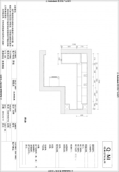
楼主,那个衣柜有没有安装图看呀?
回复 回复(1)条

使用道具 举报

1653

帖子

0

原创值

403

金币

装修大学_研究生

Rank: 5Rank: 5

积分
847

社区居民新人进步奖社区劳模

 楼主| 发表于 2014-05-13 11:51:10 | 显示全部楼层
北方的芒果树 发表于 2014-5-13 09:56
楼主,那个衣柜有没有安装图看呀?

额,我还没装呢。柜子最后进场
回复

使用道具 举报

1653

帖子

0

原创值

403

金币

装修大学_研究生

Rank: 5Rank: 5

积分
847

社区居民新人进步奖社区劳模

 楼主| 发表于 2014-05-13 15:13:47 | 显示全部楼层
应楼上一个亲的答复,把柜子设计图发上来。说实话,我米看懂,望大家一起讨论下。谢谢~~~~~~~~~~~~~




03.jpg
0001.jpg
001.jpg
01.jpg
1.jpg
0002.jpg
002.jpg
02.jpg
2.jpg
0003.jpg
回复

使用道具 举报

160

帖子

0

原创值

251

金币

大三_装修里手

Rank: 3Rank: 3

积分
80
发表于 2014-05-13 16:44:21 | 显示全部楼层
是呀我也想知道他的电话
回复 回复(1)条

使用道具 举报

1653

帖子

0

原创值

403

金币

装修大学_研究生

Rank: 5Rank: 5

积分
847

社区居民新人进步奖社区劳模

 楼主| 发表于 2014-05-13 16:50:46 | 显示全部楼层
珍珠zzz 发表于 2014-5-13 16:44
是呀我也想知道他的电话

看到电话没有?亲会万福的~~~~~~~~~~~~
回复 回复(1)条

使用道具 举报

160

帖子

0

原创值

251

金币

大三_装修里手

Rank: 3Rank: 3

积分
80
发表于 2014-05-13 17:03:36 | 显示全部楼层
本帖最后由 珍珠zzz 于 2014-5-13 17:04 编辑
rosie13 发表于 2014-5-13 16:50
看到电话没有?亲会万福的~~~~~~~~~~~~

看到了电话,不过周老板自己就是项目经理吧,很多材料都是和周老板一起去采购的吗
回复 回复(1)条

使用道具 举报

1653

帖子

0

原创值

403

金币

装修大学_研究生

Rank: 5Rank: 5

积分
847

社区居民新人进步奖社区劳模

 楼主| 发表于 2014-05-13 17:06:25 | 显示全部楼层
珍珠zzz 发表于 2014-5-13 17:03
看到了电话,不过周老板自己就是项目经理吧,很多材料都是和周老板一起去采购的吗


亲,我到现在都不知道他是啥。材料是他帮我定,除非是我要选花色的。他会提前告诉我他买什么材料。全包模式,如果我自己还要亲自去市场,那还叫啥全包哦。这种模式需要高度的信任感,亲可以和他接触一下。慎重提示,网友推荐有风险,亲一定要慎重。
回复

使用道具 举报

1653

帖子

0

原创值

403

金币

装修大学_研究生

Rank: 5Rank: 5

积分
847

社区居民新人进步奖社区劳模

 楼主| 发表于 2014-05-13 19:05:14 | 显示全部楼层
欧耶,又再首页发现了我的身影,容我小小骄傲一下下

QQ图片20140513190341.jpg
QQ图片20140513190200.jpg

回复

使用道具 举报

您需要登录后才可以回帖 登录 | 立即注册

本版积分规则