QQ登录    

08我家网

2023兔年大吉

城南之南--【嘉华城】家具篇。梦洁、乔治及喜梦宝等

[复制链接]
  • 所在城市:长沙
  • 所在小区:嘉华城
  •  
  • 装修类型:新房装修
  • 装修户型:四房
  •  
  • 装修方式:半包
  • 装修风格:混搭
  •  
  • 装修预算:10万—20万
  • 开工时间:2013-10-22
  • 前期设计
  • 主体拆装
  • 水电
  • 泥工
  • 木工
  • 油漆
  • 成品安装
  • 软装配饰
  • 毕业
已装修历时4206

323

帖子

0

原创值

1211

金币

大四_装修达人

Rank: 4

积分
201

社区居民忠实会员社区劳模

发表于 2014-04-17 14:50:47 | 显示全部楼层 |阅读模式
本帖最后由 afanty 于 2015-1-23 10:03 编辑

    我的房子是11年在长沙购买的,楼盘在环保工业园嘉华城,由于没有在长沙上班,房子一直闲置。13年5月份的时候,刚好我同一楼盘且同一栋的同事有意向要装修,就合计搭伴一起找装修公司装修。因为是朋友的关系,就找了论坛里的原树设计师负责房子的装修,采取的是半包,13年10月份开工。  
    房子装修过程中拍了很多照片,但一直没时间写日记,今天刚好有空,发发照片补写下。因自己平时不在长沙,好多装修上的事都拜托我的同事谢总和原树代为处理了,在此表示感谢。

原户型图

原户型图
开发商设计图

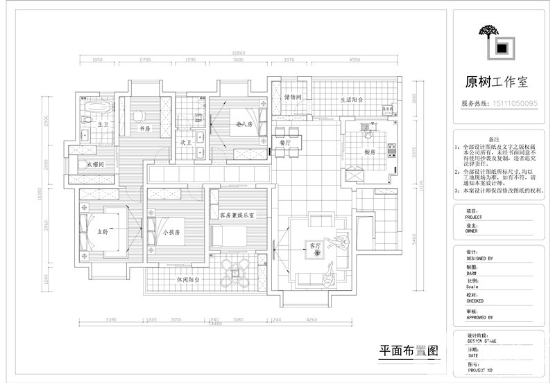
装修公司设计图

装修公司设计图
装修设计图

装修公司效果图

装修公司效果图
装修效果图


323

帖子

0

原创值

1211

金币

大四_装修达人

Rank: 4

积分
201

社区居民忠实会员社区劳模

 楼主| 发表于 2014-04-17 14:55:33 | 显示全部楼层
本帖最后由 afanty 于 2014-4-18 13:10 编辑

开工.jpg

开工当天,放鞭炮,预祝开工大吉


回复

使用道具 举报

323

帖子

0

原创值

1211

金币

大四_装修达人

Rank: 4

积分
201

社区居民忠实会员社区劳模

 楼主| 发表于 2014-04-17 15:01:35 | 显示全部楼层
选的楼兰的瓷砖
IMG_0167_副本.jpg

角花
IMG_0169_副本.jpg

J&H家的橱柜
IMG_0203_副本.jpg

回复

使用道具 举报

1万

帖子

628

原创值

1万

金币

荣誉版主

积分
8155

社区居民忠实会员社区劳模最爱沙发社区明星

发表于 2014-04-17 15:07:47 | 显示全部楼层
恭喜开贴。LZ家的效果图很漂亮。
回复 回复(1)条

使用道具 举报

323

帖子

0

原创值

1211

金币

大四_装修达人

Rank: 4

积分
201

社区居民忠实会员社区劳模

 楼主| 发表于 2014-04-17 15:10:47 | 显示全部楼层
本帖最后由 afanty 于 2014-4-17 16:48 编辑

水电(多图)水电师傅挺专业的,推荐
IMG_0339.jpg
IMG_0338.jpg
IMG_0337.jpg
IMG_0336.jpg
IMG_0335.jpg
IMG_0334.jpg
IMG_0333.jpg
IMG_0332.jpg
IMG_0331.jpg
IMG_0330.jpg
IMG_0329_副本.jpg
IMG_0340.jpg

回复 收藏

使用道具 举报

323

帖子

0

原创值

1211

金币

大四_装修达人

Rank: 4

积分
201

社区居民忠实会员社区劳模

 楼主| 发表于 2014-04-17 15:25:36 | 显示全部楼层
瓷砖铺贴:地板砖选的是楼兰的仿古砖;卧室砖选的是木纹砖

IMG_0389.jpg
IMG_0390.jpg
IMG_0391.jpg
IMG_0392.jpg
IMG_0486.jpg
IMG_0487.jpg
IMG_0488.jpg
IMG_0491.jpg
IMG_0492.jpg
IMG_0628.jpg
IMG_0632.jpg
IMG_0637.jpg
IMG_0638.jpg
IMG_0639.jpg

回复 收藏

使用道具 举报

5232

帖子

0

原创值

4139

金币

装修大学_教授

Rank: 7Rank: 7Rank: 7

积分
3884

社区居民灌水天才奖终身成就奖社区明星忠实会员社区劳模宣传大使奖特殊贡献奖原创先锋奖贴图大师奖最爱沙发金点子奖幽默大师奖新人进步奖

发表于 2014-04-17 15:34:39 | 显示全部楼层
房子这么大,太韵味了!
回复 回复(1)条

使用道具 举报

323

帖子

0

原创值

1211

金币

大四_装修达人

Rank: 4

积分
201

社区居民忠实会员社区劳模

 楼主| 发表于 2014-04-17 15:46:45 | 显示全部楼层
本帖最后由 afanty 于 2014-4-17 16:43 编辑

木工(板材选的是大芯板免漆板)
IMG_0025.jpg
IMG_0011.jpg
IMG_0005.jpg
IMG_0004.jpg
IMG_0003.jpg
IMG_0009.jpg
IMG_0032.jpg

IMG_0002.jpg
回复 收藏

使用道具 举报

323

帖子

0

原创值

1211

金币

大四_装修达人

Rank: 4

积分
201

社区居民忠实会员社区劳模

 楼主| 发表于 2014-04-17 16:00:56 | 显示全部楼层
转眼间就到了2014年,刮了腻子粉和吊顶后的效果
IMG_0122.jpg
IMG_0121.jpg
IMG_0124.jpg
IMG_0123.jpg


回复

使用道具 举报

323

帖子

0

原创值

1211

金币

大四_装修达人

Rank: 4

积分
201

社区居民忠实会员社区劳模

 楼主| 发表于 2014-04-17 16:13:43 | 显示全部楼层
本帖最后由 afanty 于 2014-4-17 16:19 编辑

J&H橱柜的安装,出了点小插曲(详见我的投诉贴),虽已圆满解决,但让我现在对打孔留下了后遗症
IMG_0187.jpg
IMG_0188.jpg
IMG_0189.jpg
IMG_0192.jpg
IMG_0230.jpg
IMG_0229.jpg
IMG_0190.jpg
回复 收藏

使用道具 举报

您需要登录后才可以回帖 登录 | 立即注册

本版积分规则