QQ登录    

08我家网

2023兔年大吉

给宝贝的温馨小屋,还未交房,已经跟团10样以上

[复制链接]
  • 所在城市:长沙
  • 所在小区:凤凰城
  •  
  • 装修类型:新房装修
  • 装修户型:三房
  •  
  • 装修方式:
  • 装修风格:
  •  
  • 装修预算:10万—20万
  • 开工时间:2014-06-30
  • 前期设计
  • 主体拆装
  • 水电
  • 泥工
  • 木工
  • 油漆
  • 成品安装
  • 软装配饰
  • 毕业
已装修历时4169

202

帖子

0

原创值

303

金币

大三_装修里手

Rank: 3Rank: 3

积分
106
发表于 2014-05-25 23:38:57 | 显示全部楼层 |阅读模式
我能说我很积极么?还没交房已经跟了很多团。买房的过程一点也不纠结,因为很多朋友买在凤凰城,老公希望宝贝以后有伴玩,看了样板间很爽快的下了定金。无奈的我一直想买在市区的想法落了空。
                             房子2012年付的首付,售楼MM说4月能交房,无奈的我从3.15开始跟团到现在房都没有交,急啊。想尽快给宝贝一个家,所以准备一交房马上装修。不管怎么样,可以肯定会在6月30之前交。
                              其实之前有想法找装修公司,无奈资金不够,原谅我和老公从买房,结婚,生崽,装修都只能靠自己的小白,在下水之前一直很担心, 但是还好有08,还有之前朋友的一直经验。
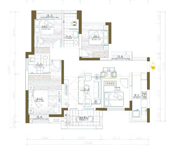
                              对于自己的户型,买房的时候觉得三房很周正,无奈因为宝贝出生,一直渴望变成四房,基于此,无耻的我找了无数装修公司看其方案(本来准备订的,无奈价格太高,半包去掉油漆以及油漆工钱都要6.5W)最后还是很纠结不知道怎么变更。


户型图

户型图

202

帖子

0

原创值

303

金币

大三_装修里手

Rank: 3Rank: 3

积分
106
 楼主| 发表于 2014-05-25 23:42:24 | 显示全部楼层
细数我跟过的08团,处于小白的我,对一切迷迷糊糊,不会策价,所以跟着08走。跟了老板,能率,j@q,芬琳,艾肯,法师龙,地康,喜梦宝,芝华仕,法恩莎,还有很多连我自己都忘记了,老公总之一句话,随便,喜欢就好
回复

使用道具 举报

202

帖子

0

原创值

303

金币

大三_装修里手

Rank: 3Rank: 3

积分
106
 楼主| 发表于 2014-05-25 23:46:46 | 显示全部楼层
本帖最后由 Feiziyu 于 2014-5-25 23:56 编辑

谁能给我看下,四房的变更哪个方案更合理一些?
image.jpg
image.jpg
回复

使用道具 举报

1万

帖子

10

原创值

1万

金币

装修大学_教授

Rank: 7Rank: 7Rank: 7

积分
5360

社区居民最爱沙发社区明星

发表于 2014-05-26 08:34:43 | 显示全部楼层
这算抢到了沙发不
回复

使用道具 举报

1万

帖子

10

原创值

1万

金币

装修大学_教授

Rank: 7Rank: 7Rank: 7

积分
5360

社区居民最爱沙发社区明星

发表于 2014-05-26 08:38:09 | 显示全部楼层
个人喜欢第一个
回复

使用道具 举报

824

帖子

0

原创值

1444

金币

大四_装修达人

Rank: 4

积分
444

社区居民

发表于 2014-05-26 09:32:07 来自手机 | 显示全部楼层
纪风是要当顶帖狂魔吗?楼主加油…
回复

使用道具 举报

824

帖子

0

原创值

1444

金币

大四_装修达人

Rank: 4

积分
444

社区居民

发表于 2014-05-26 09:34:18 来自手机 | 显示全部楼层
第二个不错,凤凰城离我家好近
回复

使用道具 举报

824

帖子

0

原创值

1444

金币

大四_装修达人

Rank: 4

积分
444

社区居民

发表于 2014-05-26 09:34:21 来自手机 | 显示全部楼层
第二个不错,凤凰城离我家好近
回复

使用道具 举报

1万

帖子

628

原创值

1万

金币

荣誉版主

积分
8155

社区居民忠实会员社区劳模最爱沙发社区明星

发表于 2014-05-26 09:45:08 | 显示全部楼层
我喜欢第一个哈,感觉餐厅在过道,总是有些不太方便的。
回复

使用道具 举报

1万

帖子

0

原创值

9607

金币

论坛元老

掰子姐

Rank: 15Rank: 15Rank: 15Rank: 15Rank: 15

积分
11275

吃货社区居民社区明星忠实会员最爱沙发新人进步奖幽默大师奖贴图大师奖原创先锋奖金点子奖特殊贡献奖宣传大使奖优秀斑竹奖终身成就奖灌水天才奖社区劳模原创达人

发表于 2014-05-26 15:34:13 | 显示全部楼层
欢迎来到装修日记版记录自己的装修经历哦~~
回复

使用道具 举报

您需要登录后才可以回帖 登录 | 立即注册

本版积分规则