QQ登录    

08我家网

2023兔年大吉

12.06更新:红橡华园工地探访帖---纪风装修实验录

  [复制链接]

1万

帖子

10

原创值

1万

金币

装修大学_教授

Rank: 7Rank: 7Rank: 7

积分
5360

社区居民最爱沙发社区明星

 楼主| 发表于 2014-11-05 15:29:48 | 显示全部楼层
北辰猫记 发表于 2014-11-5 15:23
霍尼韦尔前置多少钱,买的啊

320 自提,你也可以淘宝搜索 江河净水
回复 回复(1)条

使用道具 举报

283

帖子

0

原创值

337

金币

大三_装修里手

Rank: 3Rank: 3

积分
153
发表于 2014-11-05 15:45:49 | 显示全部楼层
纪风 发表于 2014-11-5 15:29
320 自提,你也可以淘宝搜索 江河净水

太感谢啦,以后还有不懂的,莫嫌弃俺啊
回复 回复(1)条

使用道具 举报

1万

帖子

10

原创值

1万

金币

装修大学_教授

Rank: 7Rank: 7Rank: 7

积分
5360

社区居民最爱沙发社区明星

 楼主| 发表于 2014-11-05 18:41:08 | 显示全部楼层
北辰猫记 发表于 2014-11-5 15:45
太感谢啦,以后还有不懂的,莫嫌弃俺啊

不会,互相学习
回复

使用道具 举报

1万

帖子

10

原创值

1万

金币

装修大学_教授

Rank: 7Rank: 7Rank: 7

积分
5360

社区居民最爱沙发社区明星

 楼主| 发表于 2014-11-06 16:25:02 | 显示全部楼层
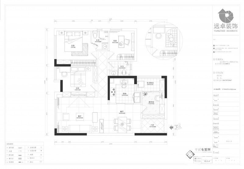
     已经忘了这是第几稿设计了,此稿不同于前面几稿,又回到了四房的模式。说一下几个不同的地方,书房暂时可以做书房,以后做小孩房。那以后的书房放哪里呢?没错,就是娱乐室了。娱乐室现在可以空着,现在在想娱乐室是否铺瓷砖会好一点,毕竟离生活阳台很近。另外次卧扩大了,两个衣柜占到了客厅背景墙的空间,这样背景墙的成本额减少了,不错的构思。厨房好像还是以前那么大,但是充分利用了一个冰箱的空间,冰箱并没有占到厨房的位置,很好很强大。总之,这一款设计我很满意。




枫华府第-平面布置图.jpg


回复

使用道具 举报

1722

帖子

0

原创值

4623

金币

装修大学_研究生

Rank: 5Rank: 5

积分
899
发表于 2014-11-06 23:12:26 | 显示全部楼层
终于回四房模式了
还是觉得玄关要靠近入户门……
回复

使用道具 举报

280

帖子

0

原创值

1061

金币

大三_装修里手

Rank: 3Rank: 3

积分
140
发表于 2014-11-07 10:03:31 | 显示全部楼层
郎中难得更新,赞一个。
回复

使用道具 举报

1万

帖子

628

原创值

1万

金币

荣誉版主

积分
8155

社区居民忠实会员社区劳模最爱沙发社区明星

发表于 2014-11-07 11:33:19 | 显示全部楼层
郎中,这是为未来的添丁做准备吗?
回复 回复(1)条

使用道具 举报

1万

帖子

10

原创值

1万

金币

装修大学_教授

Rank: 7Rank: 7Rank: 7

积分
5360

社区居民最爱沙发社区明星

 楼主| 发表于 2014-11-07 11:35:38 | 显示全部楼层
芹菜 发表于 2014-11-7 11:33
郎中,这是为未来的添丁做准备吗?

只是想设计得不留遗憾
回复

使用道具 举报

19

帖子

0

原创值

80

金币

大一_装修新生

Rank: 1

积分
10
发表于 2014-11-08 05:54:06 | 显示全部楼层
餐桌位置有待商权
回复

使用道具 举报

292

帖子

0

原创值

1060

金币

大三_装修里手

Rank: 3Rank: 3

积分
159
发表于 2014-11-08 23:29:30 来自手机 | 显示全部楼层
郎中哥,我觉得你的娱乐室可以搞个新型床,搓麻将搓累了有地方睡。
回复

使用道具 举报

您需要登录后才可以回帖 登录 | 立即注册

本版积分规则