QQ登录    

08我家网

2023兔年大吉

12.06更新:红橡华园工地探访帖---纪风装修实验录

  [复制链接]

1万

帖子

10

原创值

1万

金币

装修大学_教授

Rank: 7Rank: 7Rank: 7

积分
5360

社区居民最爱沙发社区明星

 楼主| 发表于 2014-07-08 10:50:55 | 显示全部楼层
筱幽 发表于 2014-7-8 08:32
暂时保密,不然没有悬念了!

给点提示塞 呵呵
回复

使用道具 举报

1万

帖子

10

原创值

1万

金币

装修大学_教授

Rank: 7Rank: 7Rank: 7

积分
5360

社区居民最爱沙发社区明星

 楼主| 发表于 2014-07-08 15:45:45 | 显示全部楼层

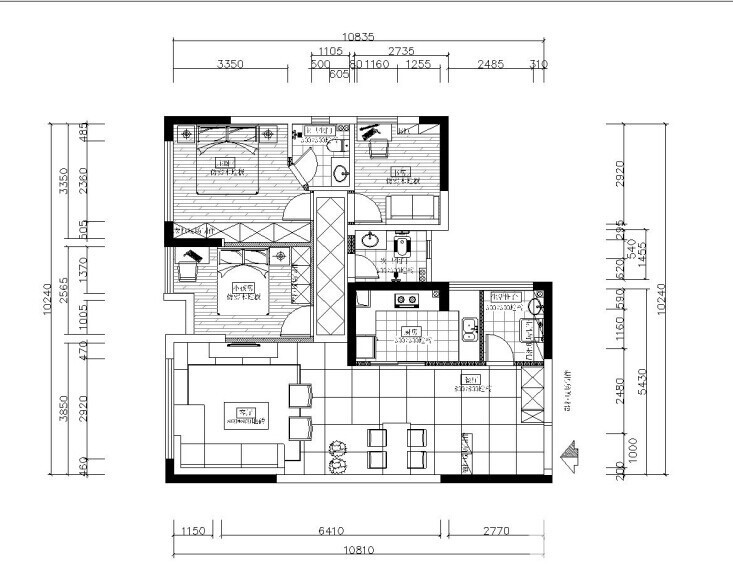
第廿二集:望闻问切辨工艺(729更新)

本帖最后由 纪风 于 2014-8-1 21:28 编辑

     

第七款设计终于出炉(第六款没有上图),原谅我是个纠结的人。从三房改两房,再到两房改回三房。一直举棋不定感谢设计@刘武 @超男 @榕海 ,感谢你们一直让我纠结,感谢那些被我纠结过的客服 @橙子721 @小婷 @装修大李-   暂时初定此方案,我还有可能继续纠结 请大家做好心理准备。原谅有选择障碍的人。最后上图,请大家提意见,最好是说好话,不然我又要纠结了。



设计.jpg

回复 回复(1)条

使用道具 举报

2127

帖子

0

原创值

2390

金币

装修大学_研究生

Rank: 5Rank: 5

积分
1109
发表于 2014-07-08 22:31:50 | 显示全部楼层
这个表真的很好很实用哦
回复 回复(1)条

使用道具 举报

1万

帖子

10

原创值

1万

金币

装修大学_教授

Rank: 7Rank: 7Rank: 7

积分
5360

社区居民最爱沙发社区明星

 楼主| 发表于 2014-07-08 22:35:13 | 显示全部楼层
lucia09 发表于 2014-7-8 22:31
这个表真的很好很实用哦

方便比价格吧 哈哈
回复

使用道具 举报

940

帖子

0

原创值

1019

金币

大四_装修达人

Rank: 4

积分
484
发表于 2014-07-09 08:56:40 | 显示全部楼层
纪风 发表于 2014-7-7 00:00
看过我帖子的同学就知道,自4月下旬开始本人就陆续考察了10家装修公司,一直和4家装修公司保持联系,设 ...

骗金币的狼中
回复 回复(1)条

使用道具 举报

940

帖子

0

原创值

1019

金币

大四_装修达人

Rank: 4

积分
484
发表于 2014-07-09 08:57:04 | 显示全部楼层
ye919 发表于 2014-7-7 09:31
郎中哥开始走技术路线了…我看好你哟

中国好基友 的节奏
回复

使用道具 举报

1万

帖子

10

原创值

1万

金币

装修大学_教授

Rank: 7Rank: 7Rank: 7

积分
5360

社区居民最爱沙发社区明星

 楼主| 发表于 2014-07-09 09:01:17 | 显示全部楼层

好东西 当然需要金币了 你下载一个看看
回复 回复(1)条

使用道具 举报

940

帖子

0

原创值

1019

金币

大四_装修达人

Rank: 4

积分
484
发表于 2014-07-09 09:04:11 | 显示全部楼层
纪风 发表于 2014-7-9 09:01
好东西 当然需要金币了 你下载一个看看

我才不上你的当
活该赌球输球 哈哈
回复 回复(1)条

使用道具 举报

1万

帖子

10

原创值

1万

金币

装修大学_教授

Rank: 7Rank: 7Rank: 7

积分
5360

社区居民最爱沙发社区明星

 楼主| 发表于 2014-07-09 09:18:10 | 显示全部楼层
小粟粟 发表于 2014-7-9 09:04
我才不上你的当
活该赌球输球 哈哈

我赢了 好不 亲,我的金币比你多
回复

使用道具 举报

984

帖子

0

原创值

1391

金币

装修大学_研究生

Rank: 5Rank: 5

积分
500

社区居民

发表于 2014-07-09 10:05:28 | 显示全部楼层
拿那个表格骗了多少金币了?
说出来一起快乐快乐。
回复 回复(1)条

使用道具 举报

您需要登录后才可以回帖 登录 | 立即注册

本版积分规则