QQ登录    

08我家网

2023兔年大吉

衡阳愉景湾现代简约风,11.15格力变频空调安装!

[复制链接]

899

帖子

0

原创值

2149

金币

大四_装修达人

Rank: 4

积分
465

社区居民最爱沙发

 楼主| 发表于 2014-06-06 11:37:36 | 显示全部楼层
nick 发表于 2014-6-6 11:24
你的监理同项目经理其实是一回事
要说靠不靠谱
这个人人品好就靠谱

说的极是,我就是跟监理明说了要把他当项目经理搞!希望我能运气好。

电梯2楼的问题回答一下呗!
回复

使用道具 举报

223

帖子

0

原创值

538

金币

大三_装修里手

Rank: 3Rank: 3

积分
115
发表于 2014-06-06 12:32:34 | 显示全部楼层
lz1600 发表于 2014-6-6 10:54
空间太小,只能次卧阳台放书桌,还能享受空调

现在问题是洗衣机放哪里?求指点?

个人建议下:
  这个洗衣机放哪里其实都可以的,不过都有自己的利弊。
看你自己的取舍而已

A点是小孩书房  这个取决于小孩多大了。
   如果小孩是在6-15岁之间  建议不考虑放洗衣机
这个阶段的孩子最需要的就是自己的一个私密空间 多留给孩子空间
如果孩子大了 读高中寄宿学校 只有周末回家 那就肯定放这里最合适了




B点 是休闲阳台 放这里唯一最大的 就是 影响美观
如果家里客人 朋友来的多 喜欢热闹的 那种性格
这个地方也别考虑了
如果正好相反,那这个地方还真可以考虑放洗衣机 可以做一个好的漂亮的造型来处理如图 :




C点 唯一缺点就是怕有油烟 因为厨房唯一窗户就直通这阳台
但是这个阳台不来利用放洗衣机 也没有别的很好的用途
  这个地方放洗衣机 是我个人觉得最OK 的地方   避开在做饭的时间 外面有衣服就行。
1111.jpg
回复 回复(1)条

使用道具 举报

899

帖子

0

原创值

2149

金币

大四_装修达人

Rank: 4

积分
465

社区居民最爱沙发

 楼主| 发表于 2014-06-06 14:00:12 | 显示全部楼层
阿狼 发表于 2014-6-6 12:32
个人建议下:
  这个洗衣机放哪里其实都可以的,不过都有自己的利弊。
看你自己的取舍而已

解答的很漂亮 谢谢AL
回复 回复(1)条

使用道具 举报

469

帖子

0

原创值

751

金币

大四_装修达人

Rank: 4

积分
238
发表于 2014-06-06 16:00:30 | 显示全部楼层
一定要给衡阳老乡顶个贴  清包不易额
回复

使用道具 举报

899

帖子

0

原创值

2149

金币

大四_装修达人

Rank: 4

积分
465

社区居民最爱沙发

 楼主| 发表于 2014-06-07 00:27:21 | 显示全部楼层
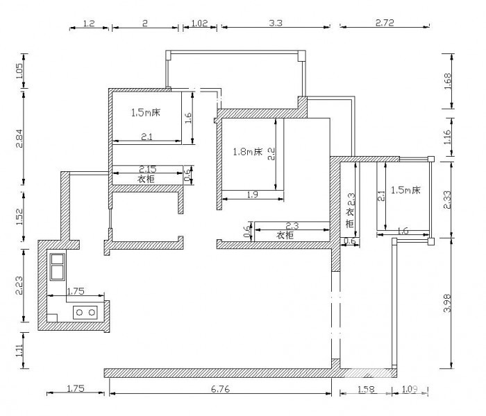
下午去房子那里自己动手全测了一次,不量不知道,一量吓一跳。装修公司的设计图部分尺寸出入很大!

还是自己量的实在些!

99.jpg
回复 收藏

使用道具 举报

223

帖子

0

原创值

538

金币

大三_装修里手

Rank: 3Rank: 3

积分
115
发表于 2014-06-07 12:34:08 | 显示全部楼层
lz1600 发表于 2014-6-6 14:00
解答的很漂亮 谢谢AL

这个是纯粹的个人观点而已,
只能帮你分析下利弊问题,
家 的细节还是要根据自身的情况而定,
多和你设计师沟通沟通,
一定会给你打造一个完美的家。
回复

使用道具 举报

899

帖子

0

原创值

2149

金币

大四_装修达人

Rank: 4

积分
465

社区居民最爱沙发

 楼主| 发表于 2014-06-07 15:06:20 | 显示全部楼层
炫耀一下自己2013的准备的材料:

11.jpg


真正装修了怕是没什么时间让我网上慢慢淘了~
现在最好先买些什么呢?油烟机套装已有目标!

难道要先去网上订浴室柜,这个收货工程太庞大了吧?
回复 收藏

使用道具 举报

899

帖子

0

原创值

2149

金币

大四_装修达人

Rank: 4

积分
465

社区居民最爱沙发

 楼主| 发表于 2014-06-07 15:11:36 | 显示全部楼层
人还是不能懒啊,早点自己画好CAD 好规划多了
作为路桥施工专业人士,这个A3图框我放哪去了。。。找不到了。。。

22.jpg

回复 收藏

使用道具 举报

57

帖子

0

原创值

127

金币

大二_装修学长

Rank: 2

积分
30
发表于 2014-06-08 23:12:45 | 显示全部楼层
敬仰做清包的朋友!呵呵
回复

使用道具 举报

899

帖子

0

原创值

2149

金币

大四_装修达人

Rank: 4

积分
465

社区居民最爱沙发

 楼主| 发表于 2014-06-09 18:11:07 | 显示全部楼层
本帖最后由 lz1600 于 2014-6-9 18:57 编辑

周末和监理跑了一下建材市场,汇报一下:
橱柜:有印象的就是嘉宝,3.3m地柜+2m吊柜 颗粒板+双饰面板 大约6600吧
      监理带我去了本地的家具厂(据说为小品牌代工的) 多层实木+模压板+石英石 1600*3.3=5280 所有全包
家具:家具厂,用颗粒板
      衣柜柜体(2.26+2.3+2.3)*2.7=18.5*450=8325,用多层实木则单价由450变为580,按洞口面积算!
      衣柜上柜门6.86*0.6=4.1*190=782 平开门
      下柜推拉门14.4*120=1728(这个另外在市面买,估计差点。。。)
      合计10835
监理说在家具厂一起买估计能少零头,大概1000左右,都没交订金,一个初步意向。

瓷砖:我先一个人跑到马可波罗,全房大概11000元 800的69元1块,600的38.8元1块
      后来监理(叶工)赶过来,去了他推荐的樵东,谈了些价格800的也是69左右,600的用特价28元1块
      300*600的8~9元左右吧,反正一起7600~8000
      除了厨卫,全是仿古砖,客餐厅可用马可波罗的仿古砖 价格一样,樵东选玻化砖好些。
瓷砖这块基本8000左右能搞定!

11.jpg

回复 收藏

使用道具 举报

您需要登录后才可以回帖 登录 | 立即注册

本版积分规则