|
本帖最后由 小颖好孩子 于 2014-6-10 21:40 编辑
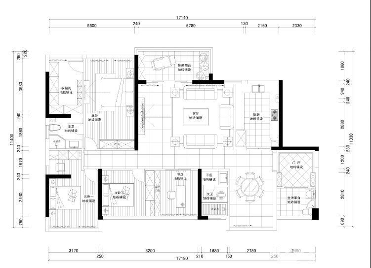
如图所示,是我家纠结的主卧,也许您看到我的设计方案,就会有以下疑惑:1.为什么衣帽间的门不靠窗呢,因为再往窗边的方向靠,那里要矮很多(上面是空调机位,所以矮了),只能做1.9m高的门了
2.为什么床不摆正中间呢,因为我们家主卧有一根很长的梁,就是卫生间和衣帽间中间那一条,贯穿整个房间
现在本人想做隐形门,最好是衣帽间和卫生间都做隐形门,但是设计师说卫生间的门最好不用木门,但是隐形门只能做木门;设计师还建议我,如果衣帽间做隐形门,就可以把衣帽间的门移到最靠窗的位置,这样衣帽间可以更加充分利用起来
现在我好纠结的,请问各位好心的大神,有没有什么好的方案和设计,还有吊顶方案,谢谢谢谢,感激不尽
|
|