本帖最后由 学会转身 于 2014-6-23 17:36 编辑
上图啦。。上图啦。。。研究了好久才知道怎么发图片。嘿嘿。
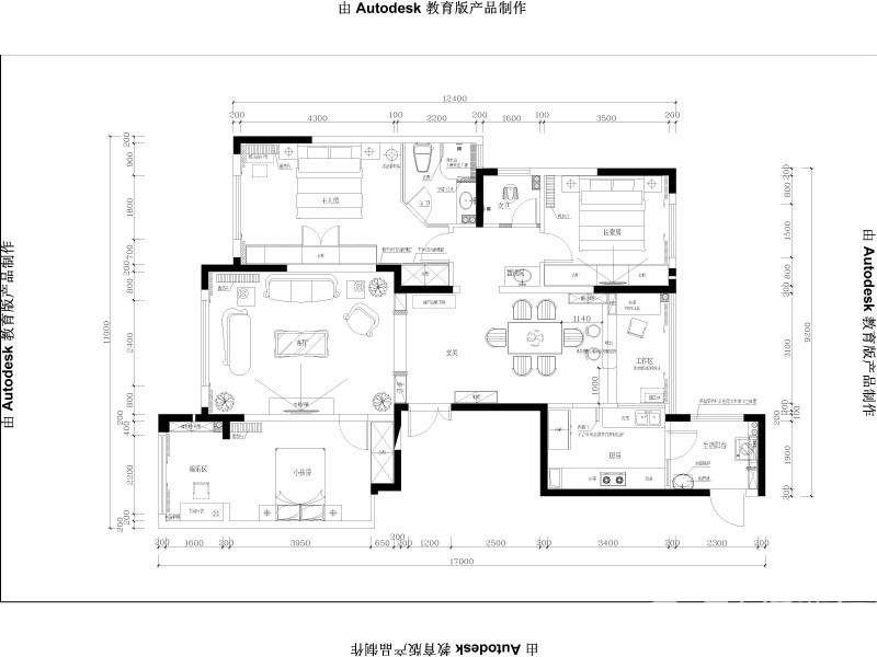
楼主平时也是用CAD软件的人,勉强算是半个行家。 房子签了合同第一件事就是找设计院要到了我们这个户型的原始施工图,按照家人的习惯和要求做了个简单的平面布局图,第二张图是楼主思量良久才出的成果 。第三张为专业设内设计师在偶原方案上的优化。到底是术业有专攻,比我之前的感觉好得多。在这里谢谢周新宇设计师的用心。 罗嗦了半天忘记交待我的施工班组啦!罪过罪过。希望老邹不要介意! 接下来隆重出场的是我的项目总监邹队。。。鞭炮、洒花。。。。  和邹队认识缘于08网,2013年6月签了购房合同后售楼小姐告诉我9月底就能收房了,(实际收房时间为2014年5月,公积金中间种种折腾说了都是泪 )于是开始潜水在各个装修网站。08网、篱笆网等等。膜拜了08网各大高人的装修日记后大致有点了解,知道了网络红人阿鲁大师、原树大师。。。了解了头牌装修队邹队、涂队、随和兄。。。 2013年9月同事女汉子家准备装修,在各大装修网站潜水几个月的她选择了08网上口碑比较好的老邹做为新家的项目经理,那时候的老邹还是一个长沙“包工头”,以质量和口碑在网上赢得了不少追随着。做为一个装修小白来说有这样的小伙伴无疑是天赐良机,于是与女汉子同进同出开始折腾材料。在*****装修群里追随着大咖们的步伐团购了比利时快步地板、家具团、老板电器、派格橱柜、大理石、衣柜移门等等。。。。一直在工作中都是乙方,做为一个房都没有收的甲方来说我是不是太积极了点哈。。 平时都海淘奶粉的偶第一次鼓起勇气淘建材,经历下单前的各种纠结与折腾,历时35天德淘的高仪终于完美收货,25公斤的包裹居然没有被税,哈哈,完美。我和女汉子期待已久的龙头和花洒终于现身哒!
上图: 考虑到家有小宝宝,和柳老爷商定全房地暖,在比较了享家、怡生之后选了小妹介绍的酷威采暖,与女汉子同时去策的价,威能进口锅炉、曼瑞德的分集水器、绿羽聚苯板折完后约2.48W。 转眼时间到了年底还没有收房的希望,陆续在*****团购了小厨宝、地漏门吸等小件。。亲,不要说偶二,哈哈,只因装修心太急。一直计划的是半包,全房主材只剩厨卫瓷砖未定。 过完年后女汉子家基本完工,俺做为潜在客户代表去参观老邹家的工地。因为风格定义为现代美式,对木工的工艺要求比较高,着重看了女汉子家的木工工艺,确实如网上评价般好,内心的天平已经开始向老邹倾斜了。接下来开始约老邹参观他家的其他工地,看了2-3个正在施工的工地后,心里默默的已经决定把我家的新房交给老邹来管了。 接下来就是比较顺利的谈合同、拿出自己定的平面给老邹报价,偶和柳老爷都是不会策价的人,经不住老邹这个老狐狸的忽悠,最后成交价在老邹报价基础上只少了1K。交完定金后立马觉得不爽了,想想还是算了谁让你平时不练嘴皮子咧;哪能说得过狐狸哦。老邹的材料用得确实还是不错,这点网上的评价是杠杠的,健康比什么都重要,偶就是这么会安慰自己的人。哈哈。。。。
|