QQ登录    

08我家网

2023兔年大吉

现代简约200平米平层,一人管三套!——爬到岸边了!装修开工一周年!

[复制链接]

478

帖子

0

原创值

7

金币

大四_装修达人

Rank: 4

积分
429

社区居民

发表于 2011-02-25 10:50:39 | 显示全部楼层
学习中……
回复

使用道具 举报

123

帖子

0

原创值

9

金币

大三_装修里手

Rank: 3Rank: 3

积分
130
发表于 2011-02-25 14:46:02 | 显示全部楼层
看看,学习
回复

使用道具 举报

19

帖子

0

原创值

0

金币

大一_装修新生

Rank: 1

积分
18
发表于 2011-02-25 22:30:08 | 显示全部楼层

回 82楼(予子) 的帖子

小气,我看看
回复

使用道具 举报

1012

帖子

0

原创值

155

金币

装修大学_研究生

Rank: 5Rank: 5

积分
963

社区居民社区明星

发表于 2011-02-26 00:02:43 | 显示全部楼层
你去的那个马王堆买拉手的店子,确实是各大品牌的提货点,门面那个硕,生意那个好。温州老板也有意思的。我就在那里弄到了拉手。
回复

使用道具 举报

439

帖子

0

原创值

38

金币

大四_装修达人

Rank: 4

积分
405

社区居民

发表于 2011-02-26 16:39:17 | 显示全部楼层
看看看隐藏撒
回复

使用道具 举报

539

帖子

0

原创值

70

金币

装修大学_研究生

Rank: 5Rank: 5

积分
506
 楼主| 发表于 2011-02-28 10:15:03 | 显示全部楼层

马赛克贴好了

年前买的马赛克,终于上墙了,贴出来感觉很漂亮。设计师的眼光确实不错,幸亏按照他说的买的。特别是厨房的门套,太漂亮了,可惜手机没拍出效果。
现在家里全刮白了,师傅在做油漆,越来越有家的感觉了!

崽崽最喜欢的鱼池

崽崽最喜欢的鱼池

厨房门套

厨房门套

走廊端景

走廊端景
回复

使用道具 举报

539

帖子

0

原创值

70

金币

装修大学_研究生

Rank: 5Rank: 5

积分
506
 楼主| 发表于 2011-02-28 11:03:46 | 显示全部楼层

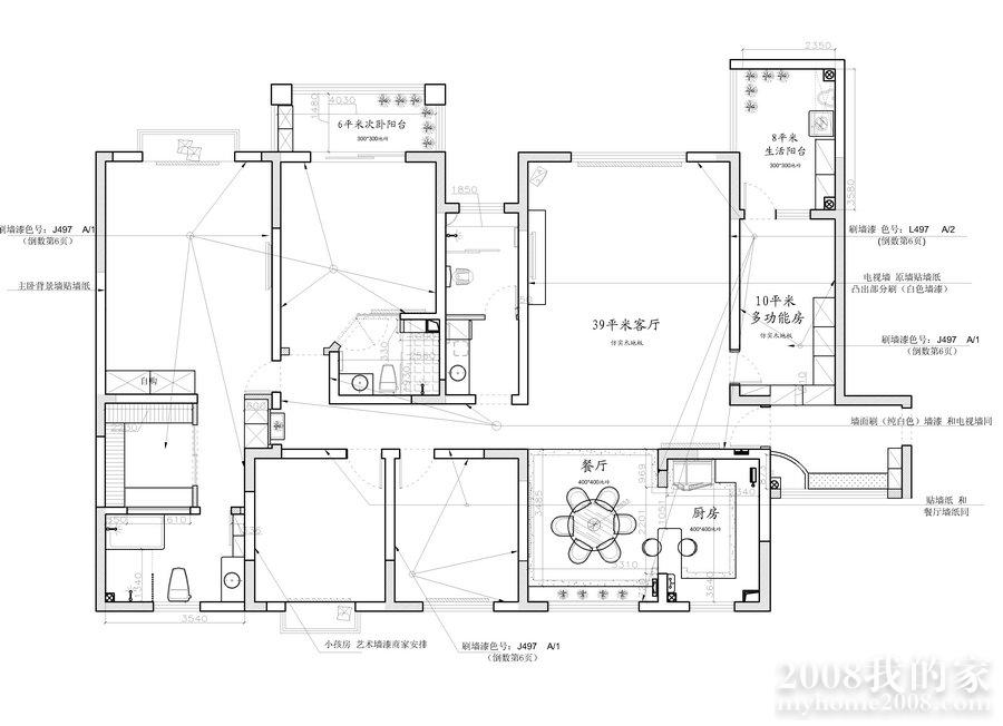
阿 鲁选的墙纸和墙漆颜色

以下是转自AL的论坛,关于我的墙纸和墙漆颜色。(11年9月19日更新)
关于墙漆颜色 涂刷相关问题:

第一:墙纸


电视背景墙 墙纸  (12平米)----  品牌布鲁斯特

此款墙纸贴于——电视背景墙的凹陷位置、餐厅背景墙的凹陷位置
01.jpg

02.jpg





主卧室背景墙纸参考----- (14。3平米)
03.jpg

04.jpg
----- 品牌 布鲁斯特




第二墙漆:

芬琳墙漆纯白色涂刷于——电视背景墙及餐厅背景墙的突出位置、全房顶面、吊顶

详见 墙漆涂刷示意图:
05.jpg

  

第三墙贴:


http://item.taobao.com/item.htm?id=4511903710

墙贴款式参考  颜色墙漆墙纸贴后 待定

06.jpg
回复

使用道具 举报

539

帖子

0

原创值

70

金币

装修大学_研究生

Rank: 5Rank: 5

积分
506
 楼主| 发表于 2011-03-03 21:28:42 | 显示全部楼层

网购汇泰龙吊轮吊轨

    衣帽间的是推拉吊门,要自己买吊轮和吊轨,听木工师傅说汇泰龙的最好,群里的tx也这么说,但是这个就是贵。五金方面,我一直觉得要用好的,所以就认定了这个牌子。到WJL看了下,真是蛮贵,一副要290,只打9折,轨道也要80多一米,买的话就要按整数米买。SO,淘宝是肯定的了,网上只要175一副,轨道63一米,而且是按照你要求的长度来算钱。下手、付款、搞定,短短2天,从上海到长沙,汇泰龙就到手了,比在长沙买要便宜差不多3百!
看了下包装和东西,觉得应该是真货。
网址分享:http://item.taobao.com/item.htm?id=3256051314
淘宝真是好啊!
回复

使用道具 举报

539

帖子

0

原创值

70

金币

装修大学_研究生

Rank: 5Rank: 5

积分
506
 楼主| 发表于 2011-03-07 20:48:28 | 显示全部楼层

忙碌的周末

这周末,消磨于南湖灯饰城和新房,陪姨买了全屋的灯,到凯达买了吊轨,到一线天买了角阀软管等,安装了那2套房子浴室柜,安装了马桶,安装了一套房子的衣柜门。姨的2套房子基本完工了,只有安装工作了。

今天至后天星星门安装我的和姨的房门,团购的***的,质量不错,白色的和油漆的白很配,没有出现我之前担心的白色色差。

因为要等待天气晴朗掀开屋顶重新做防水,家里的油漆只有停工了,等漏水问题解决后再刷漆。白色木漆已经完成了,看上去很不错。目前就只能进行安装工作了,慢慢地把厨房、卫生间的所有东西都安排安装。估计要5月份才能完成装修了,漫长的装修啊,真是要经历7个月?
回复

使用道具 举报

539

帖子

0

原创值

70

金币

装修大学_研究生

Rank: 5Rank: 5

积分
506
 楼主| 发表于 2011-03-07 22:28:48 | 显示全部楼层

代理装修房柜门装好了

姨家的衣柜门

姨家的衣柜门

20110220 008.jpg

20110220 009.jpg

20110220 010.jpg

姨家安装马桶

姨家安装马桶

我房子还在漏水

我房子还在漏水

20110220 014.jpg

20110220 015.jpg
回复

使用道具 举报

您需要登录后才可以回帖 登录 | 立即注册

本版积分规则