|
本帖最后由 cy爱爱cy 于 2014-7-12 12:58 编辑
背景:2013年在河西沁园春御园购入毛坯二手房一套,主要看重小区环境优美、岳麓区一小学区房,虽然价格也不秀气,还是决定出手。我和老公普通上班族两枚,既想住得舒服,又囊中羞涩,几个装修问题,请教08团的装修大神们。
一、户型改造分享
沁园春御园的户型大多不咋地,我买的140平方的房子,三房,户型图如下:
为了户型改造的问题,我和老公跑了N家装修公司,讨论N多回,可能最后跟传奇装饰的设计师谈得来,定下方案,修改后图如下:
修改1:原餐厅更改为书房,暂做开放式,方便以后有老二修改为老二的卧室。同时,厨房开门改为朝向走廊。
修改2:次卧改为两间,靠走廊的部分改为餐厅,打掉靠走廊的墙,和客厅的部分墙面,餐厅与客厅走廊相连。
做这样的格局改造,花了大功夫,我、老公、设计师讨论过无数遍,改造后基本满足我们的要求,隔出4间房间,每个房间都有窗户。而且,客厅、餐厅、书房连接,看上去家里还是比较大气的。效果图如下,(我和老公还是很满意的)
二、关于暖气片求助
长沙的冬天太湿冷,加上我家在二楼,采光有限,势必要装暖气才好过冬。
我个人觉得暖气片能在冬天烤个衣服神马的,很心水,但设计师很珍惜设计成果,觉得客厅装暖气片影响装修效果,希望我们能客厅做地暖,房间做暖气片。但是我老公又觉得做组合的暖气造价高而且不节能。
考虑再三,我们想装全房暖气片,我觉得在沙发两端装稍小一点的暖气片是否可行。(综合考虑暖气效果和装修效果)
由于荷包紧张,价格还望走经济实惠路线,装修公司带我们去过AO史密斯的店子,估价2w3,介个。。。我们表示还要更低更低。。。
在装修的朋友们,有木有好推荐呢?
三、关于风管机求助
由于我家改造后的户型不规则,餐厅装不了挂机,客厅装柜机的话风也很难吹到餐厅。因此想到风管机。
多联机价格太高,pass!
我们去过格力团购,店主还是很好,给我们推荐了最经济实惠的参考,方案如下:
1、卧室装挂机。(反正每个卧室外都有空调机位)
2、客厅、书房、餐厅装风管机,书房一个出风口、餐厅一个出风口、客厅一个出风口。
细算一下,价格也不秀气,仅风管机部分就要1w3以上。我和老公表示。。。
提问:
完全出于省钱考虑,反正客厅空调用得也少,不如装美的的,质量怎样?然后有木有装过美的风管机的朋友,价格上到底能便宜多少啊!!!!
再然后,餐厅不装出风口,怎样?空调效果到底能不能到餐厅啊!!!
好纠结。。。坐等答复。
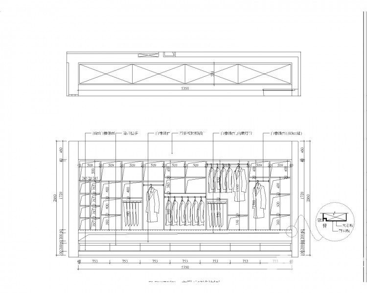
四、关于衣柜求助
介个衣柜也是个非常纠结的事情,下图是我理想中的衣柜,虽然图中是个书柜,而且只有柜子一部分,但是我真的非常心水中间的镂空设计,加上灯光效果,绝对的卧室里一等一的特色美景。
纠结点:我家衣柜长4米,上面还要做到顶,上半部分的吊柜到底能不能挂得住啊?时间长了会不会变形,中间部分如果垂下来的话。。。那就得不偿失了。
有木有装修大神能出谋划策,既能保证效果,又能保证这个衣柜质量?
谢谢大家的回复,我们已经决定做全房地暖,取消做木地板,全房地砖。客厅和餐厅采用风管机,其他房挂机。衣柜还是按现在效果图施工,设计花了1个月的时间,反复修改,今天已经签了施工合同了。 另外,我想多说一句的是,从4月份到今天考察了很多家装修公司,我老公是搞建筑设计的,有很多业内的同行朋友,装修预算的价格比他找的一个装修公司老总朋友给的价格还便宜了一万多。对于最后我们选定的CQ装修公司和Li设计师,我只说一个字,赞! 后期的施工过程,我会随时跟进上传进度,欢迎大家捧场。谢谢大家!
|
-
原始户型图
-
|