QQ登录    

08我家网

2023兔年大吉

[装修求助]装修啦,麻烦各位帮忙瞧瞧,给点建议,谢谢

[复制链接]

1

帖子

0

原创值

8

金币

大一_装修新生

Rank: 1

积分
2
发表于 2014-07-23 16:03:39 | 显示全部楼层 |阅读模式
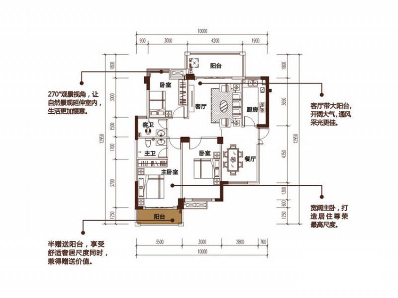
火辣辣的夏天也阻挡不了我装修的心情,首套房,不知道从何下手,从朋友那里听说08网的神奇,请各位大师指点指点。
90后,表示鸭梨山大。118平,使用面积估计也就八九十平米。预算十万内。风格现代简约,黑白色为主。
上传户型图一张,麻烦大家帮忙设计设计,提点装修建议,小女子在此谢过啦!
160015e3xa3ckaafyqkz5y.jpg

5201

帖子

0

原创值

6560

金币

管理员

Rank: 20Rank: 20Rank: 20Rank: 20Rank: 20

积分
4270

社区居民新人进步奖原创达人

发表于 2014-07-23 20:02:15 | 显示全部楼层
打算选择怎样的装修方式呢?认真看几篇装修日记吧,相信你会有收获的!
08我家网设计师板块欢迎你看看哦,会有专业设计师给你建议:http://www.08wojia.com/xl_ss-list_shejishi.html
回复

使用道具 举报

38

帖子

0

原创值

341

金币

设计师

Rank: 8Rank: 8

积分
30
发表于 2014-07-24 14:19:10 | 显示全部楼层
首先请个专业、责任心强点的设计师出个前期的设计和预算规划方案,第一次装修少经验,这一步是要迈出来的。再一步一步的沟通,直到自己明明白白的做装修、得到自己想要的效果就OK了。
回复

使用道具 举报

1万

帖子

10

原创值

1万

金币

装修大学_教授

Rank: 7Rank: 7Rank: 7

积分
5360

社区居民最爱沙发社区明星

发表于 2014-07-26 11:59:03 | 显示全部楼层
很周正的户型啊,想象一下哪些东西是你新居需要的,然后多和设计师沟通,相信会有一个好的方案
回复

使用道具 举报

1877

帖子

0

原创值

1524

金币

荣誉版主

积分
1371

社区居民社区明星忠实会员

发表于 2014-07-29 17:28:57 | 显示全部楼层
可以找几家公司先询询价,做一个前期的预算方案,多看几套方案,心里就有底了,再找合意的设计师或施工队慢慢磨合吧!
回复

使用道具 举报

217

帖子

0

原创值

482

金币

设计师

Rank: 8Rank: 8

积分
260

社区居民

发表于 2014-07-29 18:50:35 | 显示全部楼层
户型很方正,几乎没有太多的面积浪费,首先设计出完美的空间,需要结合楼主的实际要求来做,根据楼主的描叙10万以内,不是不太可能,需要完美的结合
回复

使用道具 举报

您需要登录后才可以回帖 登录 | 立即注册

本版积分规则