QQ登录    

08我家网

2023兔年大吉

一个天秤座女汉子的装修之路,先晒毕业照,再慢慢写日记。

[复制链接]

7346

帖子

0

原创值

2807

金币

荣誉版主

积分
6084

社区居民忠实会员最爱沙发社区明星社区劳模灌水天才奖

发表于 2014-08-27 14:52:41 | 显示全部楼层
wesilee 发表于 2014-8-27 14:46
新人发帖,还不太会用,我研究下

可以去问问日记版版主哦
回复 回复(1)条

使用道具 举报

1万

帖子

628

原创值

1万

金币

荣誉版主

积分
8155

社区居民忠实会员社区劳模最爱沙发社区明星

发表于 2014-08-27 16:00:32 | 显示全部楼层
从头到尾看了一遍,佩服啊。粗看一下,以为是那个杂志封面的时尚家居大片。可以入选了
回复 回复(1)条

使用道具 举报

118

帖子

0

原创值

198

金币

大三_装修里手

Rank: 3Rank: 3

积分
63

社区居民忠实会员

 楼主| 发表于 2014-08-27 16:08:28 | 显示全部楼层
般若 发表于 2014-8-27 14:52
可以去问问日记版版主哦

好,更完今天的内容,求学去~
回复

使用道具 举报

118

帖子

0

原创值

198

金币

大三_装修里手

Rank: 3Rank: 3

积分
63

社区居民忠实会员

 楼主| 发表于 2014-08-27 16:51:34 | 显示全部楼层
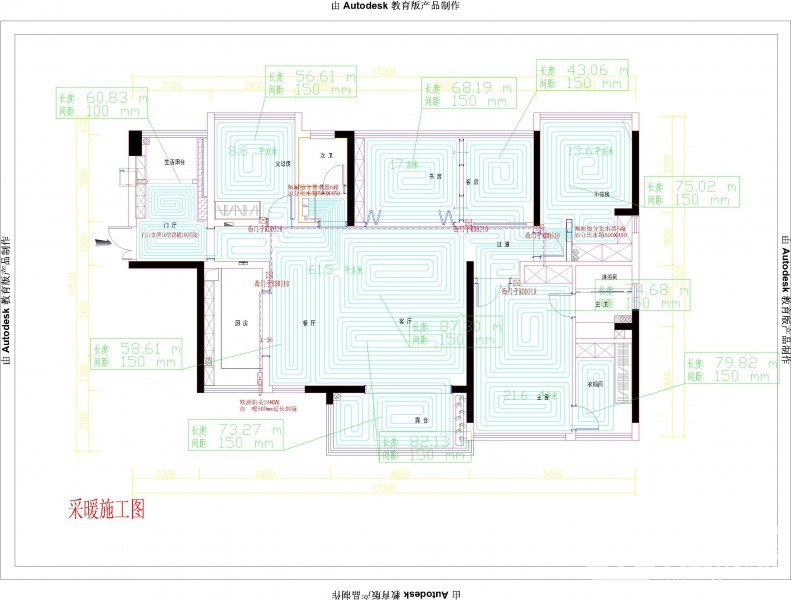
    选完装修公司,接下来就是定地暖、中央空调和背景音乐了。
    地暖公司圈定了最有实力的三家,怡生、健坤、华成。毫无例外,三家都被我调戏了个遍,后来也凑了个热闹赶了个华博的团购,几家评估下来,各有千秋。先说健坤的方案,118的采暖面积,进口威能主机,欧博诺16的管道,一个分集水器,8个回路,施耐德的温控;华成,120的采暖面积,进口菲斯曼主机,10个回路,温控恕我不记得了;怡生,125的采暖面积,进口博世主机,20的管道,两个分集水器,11个回路,西门子温控。各位看官应该看出门道了,120左右的采暖面积8个回路明显有点牵强,但再上几个回路的话,一个分集水器肯定不够用,健坤为了给我报出能接受的预算,是牺牲了使用性能了的。不得不说地暖最关键的不是主机不是温控不是电子件,而是施工工艺,怡生的施工工艺在业内应该是最规范合理的,主机、主材和电子件也够硬气,综合评价最高,唯一让我遗憾的是,他们采用的是20的管道,虽然区别并不大,但是完美控的我还是更倾向16的管道,毕竟体感更舒适,而且升温更快,于是成了一个鱼与熊掌不可兼得的悖论,如何抉择的确有些困难。
    最后为了满足一个苛刻的天秤座的要求,朋友动用了很多关系,找了最顶尖的施工团队接了个私单,沿用怡生给我的方案,进行了个性化定制,用了16的管道,西门子温控,全波纹管链接,整套系统无一个接头,重点是,整单做下来刚好2w,当然这条路是不能复制的,建议其他筒子要做,就选怡生吧,经过号称纠结户的我这么久的考察,怡生绝对是湖南市场上最规范的采暖公司,没有之一。
蔵珑示意图 -Model.jpg
回复 收藏 回复(1)条

使用道具 举报

7346

帖子

0

原创值

2807

金币

荣誉版主

积分
6084

社区居民忠实会员最爱沙发社区明星社区劳模灌水天才奖

发表于 2014-08-27 17:08:33 | 显示全部楼层
wesilee 发表于 2014-8-27 16:51
选完装修公司,接下来就是定地暖、中央空调和背景音乐了。
    地暖公司圈定了最有实力的三家,怡生、 ...

搞了个私单啊,哈哈
回复 回复(1)条

使用道具 举报

118

帖子

0

原创值

198

金币

大三_装修里手

Rank: 3Rank: 3

积分
63

社区居民忠实会员

 楼主| 发表于 2014-08-27 17:12:54 | 显示全部楼层
般若 发表于 2014-8-27 17:08
搞了个私单啊,哈哈

本套房子走了很多私货,嘘~~~
回复 回复(1)条

使用道具 举报

118

帖子

0

原创值

198

金币

大三_装修里手

Rank: 3Rank: 3

积分
63

社区居民忠实会员

 楼主| 发表于 2014-08-27 17:15:07 | 显示全部楼层
芹菜 发表于 2014-8-27 16:00
从头到尾看了一遍,佩服啊。粗看一下,以为是那个杂志封面的时尚家居大片。可以入选了

斑斑,抱住,教我怎么弄个电梯啊
回复

使用道具 举报

118

帖子

0

原创值

198

金币

大三_装修里手

Rank: 3Rank: 3

积分
63

社区居民忠实会员

 楼主| 发表于 2014-08-27 17:33:30 | 显示全部楼层
貌似我会用电梯了,先测试下
回复

使用道具 举报

7346

帖子

0

原创值

2807

金币

荣誉版主

积分
6084

社区居民忠实会员最爱沙发社区明星社区劳模灌水天才奖

发表于 2014-08-28 09:13:59 | 显示全部楼层
wesilee 发表于 2014-8-27 17:12
本套房子走了很多私货,嘘~~~

恩恩恩恩,不说不说
回复

使用道具 举报

2263

帖子

0

原创值

5934

金币

装修大学_研究生

Rank: 5Rank: 5

积分
1188
发表于 2014-08-28 20:09:42 | 显示全部楼层
怎么开了两个贴?好吧,这个帖子也支持一下。壕做友!~~~
回复 回复(1)条

使用道具 举报

您需要登录后才可以回帖 登录 | 立即注册

本版积分规则