QQ登录    

08我家网

2023兔年大吉

[主题活动]纪风最满意的空间设计——“留白”

[复制链接]

1万

帖子

10

原创值

1万

金币

装修大学_教授

Rank: 7Rank: 7Rank: 7

积分
5360

社区居民最爱沙发社区明星

发表于 2014-09-10 16:45:56 | 显示全部楼层 |阅读模式
本帖最后由 纪风 于 2014-9-10 18:47 编辑

   在装修交流区阿紫姐发起了一个主题活动,看到那么多高手发的空间设计征文,纪风也赖不住寂寞了。虽然咱家还没装修,可是也有设计是不。那我就从设计入手,谈谈我家的一些空间设计理念。


    也不知道大家是否注意过,在中国画里往往会有一大片的空白,为什么会有这种空白呢?因为在我们中国传统的人文艺术精神中,无中生有的联想,可以让其意境深远,更富有艺术感。你可以想象,不管是公共空间的设计还是私人空间的设计,在整个空间中,都充满了元素或者是装饰,或者说颜色的繁多,那么你会有什么感觉呢,肯定是压迫,烦躁的,因为人的感觉也是需要休息。所以在室内设计的留白是必须的而且是影响整个设计的艺术效果的重要因素。因此我对于全房的设计理念就是“留白”。


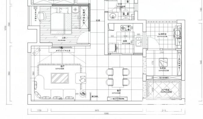
    首先按照惯例发一张户型图:

1.jpg


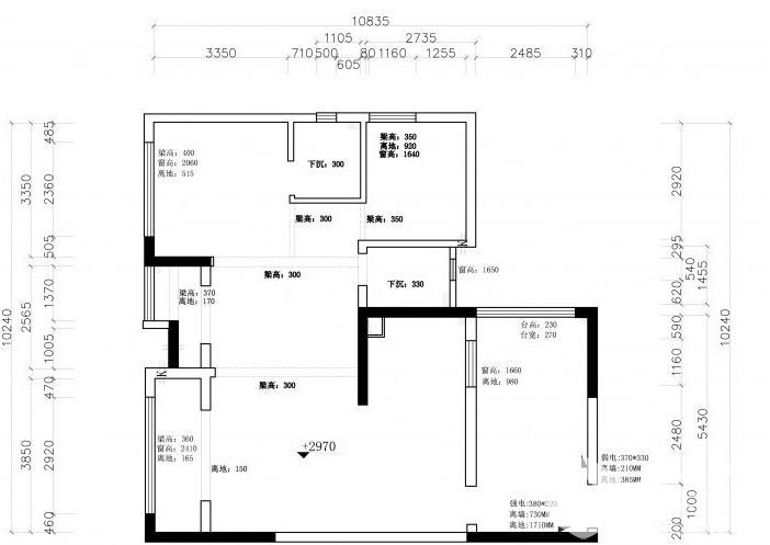
量房图如下:
1.jpg
   

     


    建筑面积103个平方,户型南北通透,利用率高,套内面积达到97个平方,3房可以改4房。于是一开始有了以下三个方案:

方案(一)

    1.jpg

方案(二)

       1.jpg

方案 (三)

       1.jpg

     

    以上三个设计可以看出厨房采光都是通过侧面的生活阳台并且隔着两层窗,以后嗮了衣服,怕是采光更加不足。并且这三个设计在鞋柜的后面区域是设计了一个茶室的,心想空间利用最大化。但是餐厅面积就会缩小,入户的采光也会弱很多,话说咱家兴许是要三代同堂一起吃饭的,餐厅怎么能小呢?顺溜溜的我就改变了设计想法。将原来厨房右边的墙敲掉推出去20公分左右,扩大了厨房的空间及采光面。就诞生了TX们看到的霸气的入户门及厨房,这下餐厅采光是莫有问题的啦!吃饭大动作好像也是莫有问题的啦!


1.jpg

   1.jpg

为了采光效果和活动空间而牺牲了一间房的“留白”

          1.jpg

扩大了的厨房,站两个人肯定没问题,采光更好

   直达电梯:
     书房设计




5090

帖子

0

原创值

6809

金币

荣誉版主

积分
3799

社区居民最爱沙发原创达人新人进步奖社区劳模

发表于 2014-09-10 16:47:30 | 显示全部楼层
纪风房子还没交,各种预算设计就已经准备好啦!典型的兵马未动粮草先行呀!
回复 回复(2)条

使用道具 举报

1万

帖子

10

原创值

1万

金币

装修大学_教授

Rank: 7Rank: 7Rank: 7

积分
5360

社区居民最爱沙发社区明星

 楼主| 发表于 2014-09-10 16:47:49 | 显示全部楼层
餐厅设计
    镂空格栅方式处理,划分客餐厅区域,光与影的融合,使空间更有朦胧感,视觉穿透之余,更有延伸空间感的效果。
   1.jpg
    1.jpg
  
(留白的隔断)



回复

使用道具 举报

1万

帖子

10

原创值

1万

金币

装修大学_教授

Rank: 7Rank: 7Rank: 7

积分
5360

社区居民最爱沙发社区明星

 楼主| 发表于 2014-09-10 16:48:10 | 显示全部楼层

纪风最满意的空间设计——“留白”

本帖最后由 纪风 于 2014-9-10 16:50 编辑

客厅空间设计
    从户型图不难发现如果保留阳台的话客厅电视背景墙无疑太短了,只能把阳台敲掉,把客厅推出去扩大,和入户处形成一个整体,这样客餐厅就达到了10米多,显得更加大气。客厅以灰色色调的沙发组作为空间主轴,迤洒而入的阳光,依循时间所产生的消长律动,成为空间留白部份最写实的动态魅力。
   1.jpg
    1.jpg
(从客厅往外看,空间显得很大气)
回复

使用道具 举报

1万

帖子

0

原创值

5436

金币

荣誉版主

积分
6484

社区居民最爱沙发原创达人新人进步奖社区劳模宣传大使奖

发表于 2014-09-10 16:49:03 | 显示全部楼层
几个图看下来果冻又晕了~~~郎中果然不一般!
回复

使用道具 举报

1万

帖子

10

原创值

1万

金币

装修大学_教授

Rank: 7Rank: 7Rank: 7

积分
5360

社区居民最爱沙发社区明星

 楼主| 发表于 2014-09-10 16:54:05 | 显示全部楼层
过道设计
    另外我的三间房都要通过一个狭长的过道,虽然动静分区比较好,但是这个区域有点浪费。为了让过道不至于狭长和局促,材质上以色彩方式的介面或纯度与明度的对比,来吸引人的眼球,使空间更丰富和精彩,以达到缩小狭长空间的效果。
         1.jpg
  4米多长的过道          
         1.jpg
    设计以后效果好很多





回复

使用道具 举报

1万

帖子

10

原创值

1万

金币

装修大学_教授

Rank: 7Rank: 7Rank: 7

积分
5360

社区居民最爱沙发社区明星

 楼主| 发表于 2014-09-10 16:55:59 | 显示全部楼层

纪风最满意的空间设计——“留白”

本帖最后由 纪风 于 2014-9-10 17:03 编辑

主卧空间设计
    利用梁下作为收纳区域,借由材质做层次上的变化,將柜体的重量光影的铺陈轻化,虚实之间,尤见设计师于角落规划与机能安排的用心与体贴。睡眠区域在设计上将主卫区域与主卧空间加以整合,铺设优雅而舒适的休憩范畴    1.jpg
    1.jpg
1.jpg


    设计师在衣柜内部空间上面的处理也一点不懈怠,我们家有一个4米长的衣柜,因为男女的身高比例的差异,划分了男装区和女装区,男装区是左边的一长溜,上面挂衣下面挂裤子,在加一长溜叠衣服的,和一些抽屉放内衣内裤什么的。女装区是在右边,呵呵,男左女右吗?而又因女性的衣服比较多,变化性大,可能有短裙、长裙、首饰、包包之类的等等,所以在设计的时候女装区的功能更细化,设计让生活更简单。所以花米米请设计师做设计还是很值得的,可以说是私人定制了。




回复

使用道具 举报

1万

帖子

10

原创值

1万

金币

装修大学_教授

Rank: 7Rank: 7Rank: 7

积分
5360

社区居民最爱沙发社区明星

 楼主| 发表于 2014-09-10 17:00:21 | 显示全部楼层
次卧空间设计
    原户型图书房比次卧大,因此将书房和次卧对调。纪风暂时和父母住,准备父母住主卧,自己暂住次卧,利用次卧阳台的一点空间推出去放个书桌,满足了工作和休息的需要。主要是晚上在卧室上网想上到什么时候就可以上到什么时候。          1.jpg
       1.jpg

        




回复

使用道具 举报

1万

帖子

10

原创值

1万

金币

装修大学_教授

Rank: 7Rank: 7Rank: 7

积分
5360

社区居民最爱沙发社区明星

 楼主| 发表于 2014-09-10 17:02:30 | 显示全部楼层
书房空间设计
    关于书房的设计是纪风最为纠结的,先后考虑过做套间或者放沙发床,最后本着简单的“留白”原则,放弃了沙发床,只要书桌和书柜加储物柜。我的书比较多于是打算用一整面墙来做书柜和储物柜,打算下面做地柜中间是书架上面做吊柜。于是就有了下面这个样子。    1.jpg
   这样书房就只是用了看书了,感觉很好。

   
    最后感谢我的设计师榕海童鞋,给你32个赞。




回复

使用道具 举报

7346

帖子

0

原创值

2807

金币

荣誉版主

积分
6084

社区居民忠实会员最爱沙发社区明星社区劳模灌水天才奖

发表于 2014-09-10 17:05:41 | 显示全部楼层
没看到设计师的名字
回复 回复(3)条

使用道具 举报

您需要登录后才可以回帖 登录 | 立即注册

本版积分规则