QQ登录    

08我家网

2023兔年大吉

繁忙上班族,漫漫装修路,打造地中海(5月14日更新)

[复制链接]
  • 所在城市:长沙
  • 所在小区:欧洲城
  •  
  • 装修类型:新房装修
  • 装修户型:三房
  •  
  • 装修方式:半包
  • 装修风格:地中海
  •  
  • 装修预算:20万—30万
  • 开工时间:2014-11-07
  • 前期设计
  • 主体拆装
  • 水电
  • 泥工
  • 木工
  • 油漆
  • 成品安装
  • 软装配饰
  • 毕业
已装修历时3999

167

帖子

0

原创值

204

金币

大三_装修里手

Rank: 3Rank: 3

积分
85
发表于 2014-11-10 21:49:34 | 显示全部楼层 |阅读模式
本帖最后由 bwfwen 于 2015-5-14 15:37 编辑

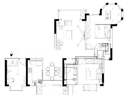
    我跟我们家笨妞是校友,之前她一直在深圳,去年才来长沙。今年年初准备买,说买就买了一套,买完之后发现买的太仓促了,长沙的房价整体又开始降价了,5555,真是好后悔了一阵,不过后来想有一个自己温暖的窝,能赶紧住进新房也就好了点。刚买完房,结婚,马上又是装修,真是一波接一波,让人有点透不过气来啊,谁叫我们都是大龄呢。好吧,多的不说,上户型图,开工照片,两个8,希望一切顺利。  

户型图

户型图

开工

开工


今天继续写,昨天又跑了一天,真是路漫漫其修远兮,吾将上下而求索。不搞装修不知道累,不看材料不知道黑,不谈价格不知道贵。而且夫妻间很多事情都会引起争吵,两个人之间做事情相互不知情,相互埋怨,想想以前一个老师说的等到装修的时候什么感情什么的都会被磨掉一层。现在发现这些都是真的,而且现实中正在发生。

1、今天首先是写的买东西,下定金。之前装修也是很突然,贷款放下来了,就准备装修,心里还是看轻了装修。没有做好前期工作。加上那时候我家小笨妞没有工作,正好可以跑跑工地,搞装修。谁曾想到,刚才谈好装修公司,这厮就要急着去上班,这真的是让我很纠结,很担心这个装修。        第一个:如果你打算装修,一定要提前一点预计要买的东西,看装修日记,才能不是那么小白,懂得一些东西,免得被人随便忽悠。而且准备开工了去买主材太仓促了,买不到性价比高的是一个方面,还没有太多的时间去看工地,两头都失误了得不偿失。
    第二个:定金一定不要随便交,除非真的很动心,或者看好了要买的东西活动很优惠,有些地方退定金真的是难啊,理由一大堆。
    第三个:有一点回扣特别注意,关于和装修公司合作的商家要特别注意,最好是不要公布自己的具体房号,有时候被宰都不知道。
2、看了几天家具,才发现好多地方放不下啊,突然发现,装修最先的不是选装修公,是选好装修风格后,看家具尺寸和各种电器需要插座的位置,这个是最迫切的。只有需求最先确定好,才能在后面的水电装修后不停下来改这改那,定好后能省很多力气。需求是第一位的,装修前一定要看好,问好,做好。需求一定要多,而且符合自己的要求。
3、来写个水电的,我自己是从事与电有关的工作,但是装修的电施工的工艺也不是很懂。家装还是方便舒适是第一要务,和我工作的安全第一相差太远了,所以还是得重新学习,这一点上我家小妞做的比我好,仔仔细细的看了这里的几位大神的日记,也学了很多东西,我则基本三天打鱼两天晒网,看了一些,主要是事情太多了,工作上的,加上还考驾照。言归正传,关于水电,还是以舒适,方便为主,但是要保证安全,两个要点:水要防漏,电要够用
    第一:水要防漏,名副其实,无论是地漏还是水管,都要做好防漏,水管验收是,一定要打压足够的时间,压力值也要仔细看,不能让项目经理忽悠。
    第二:电要够用,电线和插座一定要够用,线径起码要有2.5平方毫米,厨卫的插座线一定要4.0平方毫米,有其他即热型的电气一定要专用的4.0平方毫米的线。如果有其他大功率的电器6.0平方毫米的线一定不要吝惜。
    第三:前面两个方面都是基本的,最起码的要求,另外,横平竖直的布线我看着是觉得喜欢,斜的我看不习惯。
    第四:我觉得还是装修公司或者管理到位的装修室水电靠谱点,散装的就要自己劳心劳力了,一刻都不能松懈,随时可能出错。
来一点水电安装的图图,嘿嘿,项目经理拍的,我自己没来得及拍,囧。。。。



1 (3).jpg
1 (4).jpg
1 (7).jpg
1 (9).jpg
1 (14).jpg
1 (15).jpg
1 (18).jpg
1 (20).jpg

167

帖子

0

原创值

204

金币

大三_装修里手

Rank: 3Rank: 3

积分
85
 楼主| 发表于 2014-11-10 21:50:09 | 显示全部楼层
本帖最后由 bwfwen 于 2015-5-14 15:49 编辑

一拖三尺深,由于去年和今年上半年一直忙于工作生活,基本没有什么时间去更新帖子,好不容易闲下来一点,赶紧上来更新下。闲话不说,赶紧正事,话说水电过后就是泥工,厨房,卫生间了,照片拍的比较少了,后悔啊,那时候手机比较差也没有多拍几张照片,现在真是后悔。

厨房布置图

厨房布置图
这是厨房图纸
厨房中规中矩,没有什么出色的地方,不大不小,就是想要买个大冰箱比较占地方。在有一个就是进水管的地方装了一个过滤器,没有考虑安装橱柜,结果装好橱柜了,过滤器到最下面去了,开关很不方便,这个是当初没有考虑到的地方。


回复

使用道具 举报

167

帖子

0

原创值

204

金币

大三_装修里手

Rank: 3Rank: 3

积分
85
 楼主| 发表于 2014-11-10 21:50:32 | 显示全部楼层
占楼,留地方写经验
回复

使用道具 举报

1万

帖子

10

原创值

1万

金币

装修大学_教授

Rank: 7Rank: 7Rank: 7

积分
5360

社区居民最爱沙发社区明星

发表于 2014-11-10 22:13:08 | 显示全部楼层
快点占一个座位
回复

使用道具 举报

1万

帖子

0

原创值

9607

金币

论坛元老

掰子姐

Rank: 15Rank: 15Rank: 15Rank: 15Rank: 15

积分
11275

吃货社区居民社区明星忠实会员最爱沙发新人进步奖幽默大师奖贴图大师奖原创先锋奖金点子奖特殊贡献奖宣传大使奖优秀斑竹奖终身成就奖灌水天才奖社区劳模原创达人

发表于 2014-11-10 23:36:35 | 显示全部楼层
前排抢座,等楼主更新。
回复

使用道具 举报

5374

帖子

0

原创值

1446

金币

装修大学_博士生

淘宝购物狂 省钱小达人

Rank: 6Rank: 6

积分
2752

社区居民新人进步奖最爱沙发原创先锋奖贴图大师奖幽默大师奖原创达人金点子奖

发表于 2014-11-11 08:57:32 | 显示全部楼层
同是上班族啊 回想装修那几个月又要上班,又要装修,还要深夜写贴,真是太强大了
回复

使用道具 举报

1万

帖子

0

原创值

5436

金币

荣誉版主

积分
6484

社区居民最爱沙发原创达人新人进步奖社区劳模宣传大使奖

发表于 2014-11-11 09:56:18 | 显示全部楼层
前排围观楼主装修之路~~期待后续更新~~
回复

使用道具 举报

102

帖子

0

原创值

147

金币

大三_装修里手

Rank: 3Rank: 3

积分
51
发表于 2014-11-11 15:44:16 | 显示全部楼层
期待楼主的大作啊
回复

使用道具 举报

138

帖子

0

原创值

156

金币

大三_装修里手

Rank: 3Rank: 3

积分
69
发表于 2014-11-11 16:00:10 | 显示全部楼层
哈哈,占楼等着看好戏
回复

使用道具 举报

102

帖子

0

原创值

147

金币

大三_装修里手

Rank: 3Rank: 3

积分
51
发表于 2014-11-12 09:41:12 | 显示全部楼层
户型图还不错的呢
回复

使用道具 举报

您需要登录后才可以回帖 登录 | 立即注册

本版积分规则