QQ登录    

08我家网

2023兔年大吉

【海洋半岛】冬天装修慢慢走起,现代而实用的简约风和装修日记也开始啦,大家家支持啊。考察装修公司+水电验收+泥工完工+木工更新—待我慢慢来填坑

[复制链接]
  • 所在城市:长沙
  • 所在小区:海洋半岛
  •  
  • 装修类型:新房装修
  • 装修户型:三房
  •  
  • 装修方式:半包
  • 装修风格:现代简约
  •  
  • 装修预算:10万以内
  • 开工时间:2014-11-02
  • 前期设计
  • 主体拆装
  • 水电
  • 泥工
  • 木工
  • 油漆
  • 成品安装
  • 软装配饰
  • 毕业
已装修历时3995

34

帖子

0

原创值

52

金币

大一_装修新生

Rank: 1

积分
18
发表于 2014-11-14 19:37:00 | 显示全部楼层 |阅读模式
本帖最后由 ningc 于 2014-11-14 19:43 编辑

  买房篇:

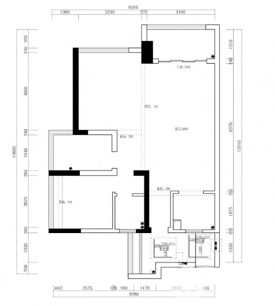
   其实买房的时候没有想太多,也没有看太多的楼盘,和老婆看了几个楼盘,感觉海洋半岛位置各方面也还可以,当时就比较心动了,就是感觉价格方面稍微有点贵哦,回家和家商量讨论了好几天,咬咬牙还是订下来了,好吧,买了就先不想那么多啦,努力挣钱装修先。我家的结构户型图:


11.jpg


34

帖子

0

原创值

52

金币

大一_装修新生

Rank: 1

积分
18
 楼主| 发表于 2014-11-14 19:37:46 | 显示全部楼层

【海洋半岛】冬天装修慢慢走起,现代而实用的简约风和装修日记也开始啦,大家家支持啊。考察装修公司+水电验收+泥工完工+木工更新—待我慢慢来填坑

本帖最后由 ningc 于 2014-11-14 19:39 编辑

察篇
   在还没有交房之前就开始学习考察装修的事情,那个时候只是在网上随便看看滴,等真正收了房才知道装修是件多么不容易的事情了,要学要看要考察的事情太多,好想去分身把这些事情用几天就搞定,可事实没有我们想的这么如意啊。。。事还得一件件办。最开始看是那些大公司,点石够气派吧,原先只是想想先去了解一下流程,看看大概需要多少钱,结果去了,我就下订了【哭的表情】,还没有搞清楚头和尾,我就云里雾里了交了钱。。。。。。。。。。。。。。。省下1000字。
回复 收藏

使用道具 举报

34

帖子

0

原创值

52

金币

大一_装修新生

Rank: 1

积分
18
 楼主| 发表于 2014-11-14 19:38:12 | 显示全部楼层

【海洋半岛】冬天装修慢慢走起,现代而实用的简约风和装修日记也开始啦,大家家支持啊。考察装修公司+水电验收+泥工完工+木工更新—待我慢慢来填坑

本帖最后由 ningc 于 2014-11-14 19:41 编辑


合作篇:缘分从相识诺雅开始


   相识诺雅,真的说是有缘分了,一次遇然的机会去朋友家吃饭,向他咨询装修的事议,因为朋友也是新房子,才装修两年,所以说向他来取经,来来回回把朋友家看了个遍,朋友就向我介绍了诺雅装饰,说要我有时间去看看,同时也让我也上08论坛学习一下,结果晚上一回家打开电话就开始看08 了,网上找诺雅合作还真不少啊,网碑也传的不错,再加上我的这个朋友装修两年了还向我推荐诺雅,想必有一定的过人之处,好吧,和家商量一下就在心里暗暗定下了。相约参观了正在施工的另一位业主家,和我是同一个楼盘,在我家的后面一栋,质量管理比起那些大公司没有差别,有的细节方面还要做的更好。我突然想到一个问题,我在点石交了设计费了这可怎么办呢,周末来到诺雅沟通,把我真实的想法说了一下,最后决定,做好设计直接找诺雅进行施工,这样我也就可以省了设计费了。诺雅,我滴新家就交给你啦,不要让我失望哦
回复 收藏

使用道具 举报

34

帖子

0

原创值

52

金币

大一_装修新生

Rank: 1

积分
18
 楼主| 发表于 2014-11-14 19:45:33 | 显示全部楼层


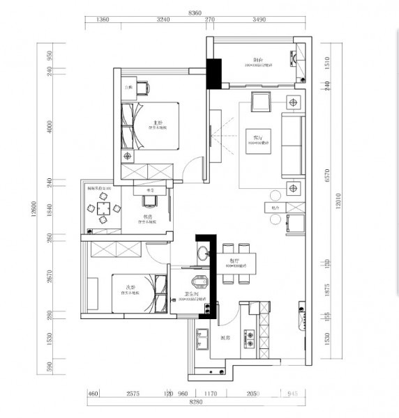
平面方案如下:

12.jpg


房子虽不大,但充分利用了空间啊,大家看看还没有更用的方案
回复 收藏

使用道具 举报

5232

帖子

0

原创值

4139

金币

装修大学_教授

Rank: 7Rank: 7Rank: 7

积分
3884

社区居民灌水天才奖终身成就奖社区明星忠实会员社区劳模宣传大使奖特殊贡献奖原创先锋奖贴图大师奖最爱沙发金点子奖幽默大师奖新人进步奖

发表于 2014-11-14 20:55:08 | 显示全部楼层
又来一个邻居啊,哈哈,支持支持!!!
回复 回复(1)条

使用道具 举报

34

帖子

0

原创值

52

金币

大一_装修新生

Rank: 1

积分
18
 楼主| 发表于 2014-11-14 21:03:35 | 显示全部楼层
灰太翔 发表于 2014-11-14 20:55
又来一个邻居啊,哈哈,支持支持!!!

多多指教啊
回复

使用道具 举报

1万

帖子

10

原创值

1万

金币

装修大学_教授

Rank: 7Rank: 7Rank: 7

积分
5360

社区居民最爱沙发社区明星

发表于 2014-11-14 21:42:08 | 显示全部楼层
祝装修顺利
回复

使用道具 举报

1万

帖子

0

原创值

9607

金币

论坛元老

掰子姐

Rank: 15Rank: 15Rank: 15Rank: 15Rank: 15

积分
11275

吃货社区居民社区明星忠实会员最爱沙发新人进步奖幽默大师奖贴图大师奖原创先锋奖金点子奖特殊贡献奖宣传大使奖优秀斑竹奖终身成就奖灌水天才奖社区劳模原创达人

发表于 2014-11-14 21:42:40 | 显示全部楼层
欢迎来到装修日记版记录自己的装修故事。
小区邻居写日记的队伍又壮大了呀!!
回复

使用道具 举报

4871

帖子

0

原创值

520

金币

管理员

Rank: 20Rank: 20Rank: 20Rank: 20Rank: 20

积分
2622
发表于 2014-11-20 14:02:51 | 显示全部楼层
祝装修顺利!争取年底前完工哟!
回复

使用道具 举报

5201

帖子

0

原创值

6560

金币

管理员

Rank: 20Rank: 20Rank: 20Rank: 20Rank: 20

积分
4270

社区居民新人进步奖原创达人

发表于 2014-11-25 10:26:46 | 显示全部楼层
祝装修顺利~好好记录装修过程吧~
回复

使用道具 举报

您需要登录后才可以回帖 登录 | 立即注册

本版积分规则