QQ登录    

08我家网

2023兔年大吉

小两房——磨磨蹭蹭写日记 拖拖拉拉搞装修

[复制链接]
  • 所在城市:长沙
  • 所在小区:河西
  •  
  • 装修类型:旧房改造
  • 装修户型:二房
  •  
  • 装修方式:清包
  • 装修风格:现代简约
  •  
  • 装修预算:10万—20万
  • 开工时间:2015-03-01
  • 前期设计
  • 主体拆装
  • 水电
  • 泥工
  • 木工
  • 油漆
  • 成品安装
  • 软装配饰
  • 毕业
已装修历时3951

361

帖子

0

原创值

410

金币

大三_装修里手

Rank: 3Rank: 3

积分
194

社区居民

发表于 2014-12-29 10:43:43 | 显示全部楼层 |阅读模式
搞装修这杂事情,绝对是磨磨蹭蹭拖拖拉拉。有太多的没想到了……
但是现在决定年后一定要搞装修了,不拖拉!

首先介绍一下我的房子的情况,09年买的房子,原来没住简单装修了一下租出去了。
拖拖拉拉到了2014年,到了河西上班就搬了过来。虽然之前有简单装修,想想自己住还是得舒服点,于是乎又要开始搞装修。
由于之前的简单装修是亲戚找人搞的,很便宜很简单的那种,所以之前的装修全部要拆旧,地面已经找平,可是那水泥那找平真不敢恭维……
还在纠结要不要花钱铲掉重新找平。因为现在的层高只有两米六了。关键是厨房和卫生间的瓷砖墙面还有水电要改造,蹲便池也要换位置……诸多乱七八糟的琐碎事,让人后悔不该装修租出去。

原本想找装修公司的,可是七七八八一算,超出去了预算,费用也不好控制,转念一想,这装修就这么几个大头,钱肯定是要花的,但不想花得冤枉,给装修公司赚的钱给装修师傅赚,可能人家更加尽心尽力。幸好这时候遇到了08我家,让我清包的念头又坚定了。

预计过完年就开搞,还要在附近租房子,搬家,以方便搞装修的时候有空监工。好吧,小两房,拖拖拉拉搞装修,零零碎碎写日记把。
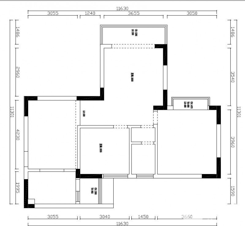
原始户型图.JPG

361

帖子

0

原创值

410

金币

大三_装修里手

Rank: 3Rank: 3

积分
194

社区居民

 楼主| 发表于 2014-12-29 10:44:59 | 显示全部楼层

小两房——磨磨蹭蹭写日记 拖拖拉拉搞装修

本帖最后由 hzy_cloud 于 2014-12-29 10:52 编辑

问题篇
1.装修顺序
看了08很多帖子,也做过笔记。由于太拖拉,做的笔记都不知道放到哪里去了…… 绝对的迷糊蛋。大致对装修的印象是这样子的:
拆旧砸墙砌墙包管打洞——水电(橱柜设计)——泥工——木工——油漆工

2.装修问题
由于现在还没有开始装修,所有问题都在考虑阶段。又因为是散包,所以还是过程想得越细越省事咯。后续考虑的过程中,遇到问题再慢慢更新,欢迎广大网友帮着出出主意。

首先,我需要一个拆旧的师傅。这个师傅要可以拆旧、砸墙、砌墙、包管、打洞。
实际上,我要砌的墙并不多,只有一面墙,也是就客厅和次卧的墙,这又是一面电视机背景墙,因此考虑到后期水电的工作还有泥工的工作,是不是先砌好比较好?
回复 回复(1)条

使用道具 举报

361

帖子

0

原创值

410

金币

大三_装修里手

Rank: 3Rank: 3

积分
194

社区居民

 楼主| 发表于 2014-12-29 10:45:42 | 显示全部楼层
是不是还要抢一层楼才够
回复

使用道具 举报

7346

帖子

0

原创值

2807

金币

荣誉版主

积分
6084

社区居民忠实会员最爱沙发社区明星社区劳模灌水天才奖

发表于 2014-12-29 10:49:05 | 显示全部楼层
清包女神,加油哟
回复

使用道具 举报

1万

帖子

0

原创值

5436

金币

荣誉版主

积分
6484

社区居民最爱沙发原创达人新人进步奖社区劳模宣传大使奖

发表于 2014-12-29 11:28:31 | 显示全部楼层
木事木事,清包慢慢搞,急不来的哈,祝装修顺利啦~~
回复

使用道具 举报

7346

帖子

0

原创值

2807

金币

荣誉版主

积分
6084

社区居民忠实会员最爱沙发社区明星社区劳模灌水天才奖

发表于 2014-12-29 11:57:21 | 显示全部楼层
hzy_cloud 发表于 2014-12-29 10:44
问题篇
1.装修顺序
看了08很多帖子,也做过笔记。由于太拖拉,做的笔记都不知道放到哪里去了…… 绝对的 ...

赶紧去日记看看,有没有合适的师傅早得到
回复

使用道具 举报

5232

帖子

0

原创值

4139

金币

装修大学_教授

Rank: 7Rank: 7Rank: 7

积分
3884

社区居民灌水天才奖终身成就奖社区明星忠实会员社区劳模宣传大使奖特殊贡献奖原创先锋奖贴图大师奖最爱沙发金点子奖幽默大师奖新人进步奖

发表于 2014-12-29 11:59:37 | 显示全部楼层
趁前排还有座位赶紧坐好
回复

使用道具 举报

46

帖子

0

原创值

73

金币

大二_装修学长

Rank: 2

积分
23
发表于 2014-12-29 12:39:45 | 显示全部楼层
户型要好好设计的那种
回复 回复(1)条

使用道具 举报

1万

帖子

0

原创值

9607

金币

论坛元老

掰子姐

Rank: 15Rank: 15Rank: 15Rank: 15Rank: 15

积分
11275

吃货社区居民社区明星忠实会员最爱沙发新人进步奖幽默大师奖贴图大师奖原创先锋奖金点子奖特殊贡献奖宣传大使奖优秀斑竹奖终身成就奖灌水天才奖社区劳模原创达人

发表于 2014-12-29 13:15:11 | 显示全部楼层
欢迎来到装修日记版记录自己的装修故事。
这也是旧房改造了,很期待哦~~
回复

使用道具 举报

361

帖子

0

原创值

410

金币

大三_装修里手

Rank: 3Rank: 3

积分
194

社区居民

 楼主| 发表于 2014-12-29 15:18:06 | 显示全部楼层
yuan19560710 发表于 2014-12-29 12:39
户型要好好设计的那种

户型也没什么改动了,就是把次卧和客厅换个位置,生活阳台和厨房打通,毕竟只有小两房,面积也不大。改动之后,空间利用率更高,但是客厅光线较之前不足。这也是没办法的事情,有舍才有得。毕竟光源可以补充,空间不行。
回复

使用道具 举报

您需要登录后才可以回帖 登录 | 立即注册

本版积分规则