QQ登录    

08我家网

2023兔年大吉

【2015日记大赛优秀日记】黑白灰大片——简墨上映

  [复制链接]

2263

帖子

0

原创值

5934

金币

装修大学_研究生

Rank: 5Rank: 5

积分
1188
发表于 2015-01-26 09:39:16 | 显示全部楼层
纪风 发表于 2015-1-23 23:34
那我就放心了 ,周四开工

开工大吉啊
回复

使用道具 举报

1万

帖子

0

原创值

5436

金币

荣誉版主

积分
6484

社区居民最爱沙发原创达人新人进步奖社区劳模宣传大使奖

发表于 2015-01-26 10:05:12 | 显示全部楼层
纪风 发表于 2015-1-22 20:51
新房装修第一件事是什么?    不是买装修材料    不是考察装修公司    更不是水电进场    而是——验房 ...

小区环境很不错的样子
层高很令人羡慕的样子
问题不是很多的样子
果冻对郎中真心的说一句抱歉,希望郎中理解,大人不记小人过,哈哈~~
回复 回复(2)条

使用道具 举报

171

帖子

0

原创值

688

金币

大三_装修里手

Rank: 3Rank: 3

积分
88
发表于 2015-01-26 10:32:21 | 显示全部楼层
相当不错的东西 谢谢啦
回复

使用道具 举报

1万

帖子

10

原创值

1万

金币

装修大学_教授

Rank: 7Rank: 7Rank: 7

积分
5360

社区居民最爱沙发社区明星

 楼主| 发表于 2015-01-26 14:36:51 | 显示全部楼层
果冻 发表于 2015-1-26 10:05
小区环境很不错的样子
层高很令人羡慕的样子
问题不是很多的样子

说了 没怪你啊
回复

使用道具 举报

3950

帖子

0

原创值

3945

金币

装修大学_博士生

Rank: 6Rank: 6

积分
2305

社区居民忠实会员社区劳模最爱沙发

发表于 2015-01-26 15:41:32 | 显示全部楼层
怪我了。。。几天自责中
回复

使用道具 举报

1万

帖子

10

原创值

1万

金币

装修大学_教授

Rank: 7Rank: 7Rank: 7

积分
5360

社区居民最爱沙发社区明星

 楼主| 发表于 2015-01-26 16:40:20 | 显示全部楼层

设计篇——我不愿意将就

本帖最后由 纪风 于 2015-8-8 17:26 编辑

    如果世界上曾经有那份设计出现过,其他设计都会变成将就。我不愿意将就。


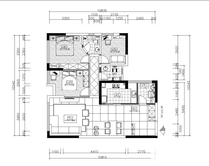
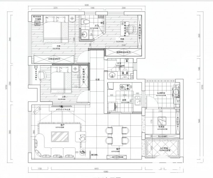
    定下装修公司以后,就要开始纠结设计了。纪风的设计图可是纠结了10多次,一开始想做套间,后来放弃套间,一开始想2间房,后来3间房,再后来4间房。几乎每周都要纠结一次,设计师快要被我逼疯,我也快要逼疯自己了。只到上周六才最终敲定了我的设计方案。先放几款 那些日子被我纠结过的设计稿吧。
    原始量房图:
152230jpihib6jf2umzm4j.jpg
  



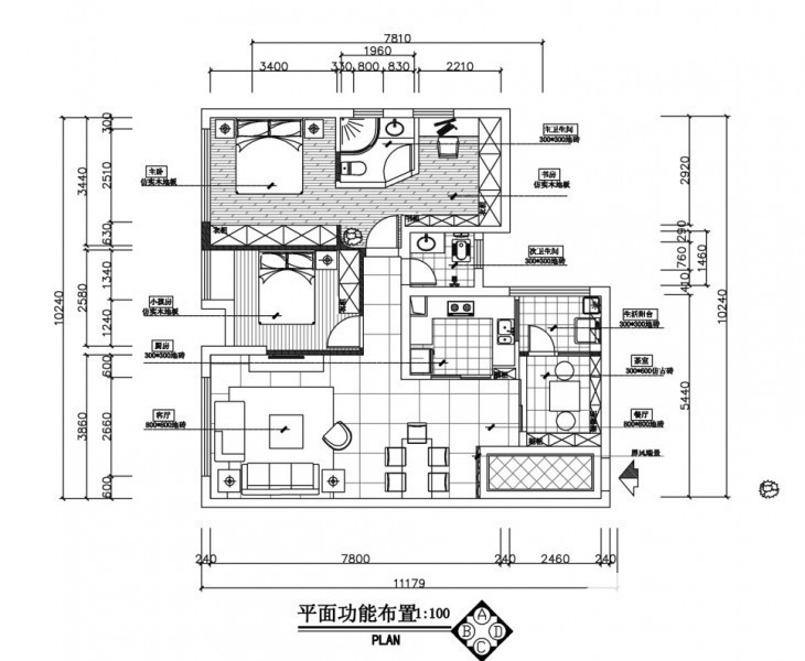
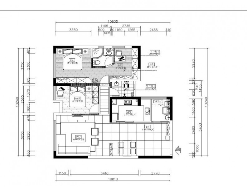
     那些日子里曾经被我纠结过的5款套间设计方案,最后考虑到空调效果,以及有可能出现来客人需要一间房居住的问题而放弃了套间方案。
1.jpg
2.jpg
3.jpg
4.jpg
   5.jpg

   
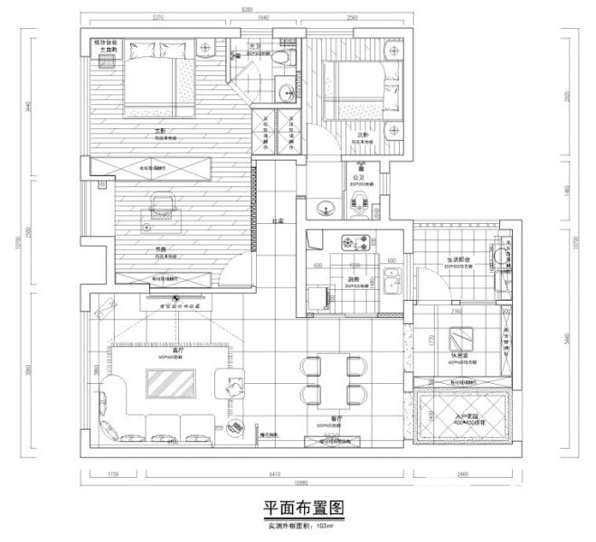
    在放弃套间方案以后,通过3次修改出了下面这个三房设计:
    66666.jpg

  
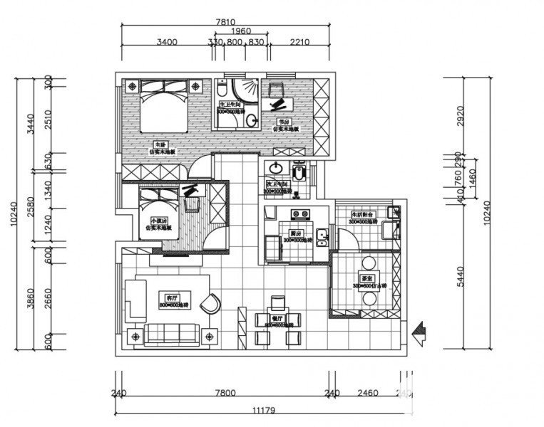
     我原以为这会是我的最后一搞设计,直到遇见了她:
       QQ图片20150126164623.jpg
  

      
      一见倾心,不愿再将就。
   


回复 收藏 回复(3)条

使用道具 举报

1722

帖子

0

原创值

4623

金币

装修大学_研究生

Rank: 5Rank: 5

积分
899
发表于 2015-01-26 20:43:01 | 显示全部楼层
直到遇见了她
回复

使用道具 举报

2127

帖子

0

原创值

2390

金币

装修大学_研究生

Rank: 5Rank: 5

积分
1109
发表于 2015-01-26 21:27:25 | 显示全部楼层
你这还将就 那我们真的就是太随意了
回复 回复(1)条

使用道具 举报

1万

帖子

10

原创值

1万

金币

装修大学_教授

Rank: 7Rank: 7Rank: 7

积分
5360

社区居民最爱沙发社区明星

 楼主| 发表于 2015-01-27 01:54:31 | 显示全部楼层
洋洋坨 发表于 2015-1-26 21:27
你这还将就 那我们真的就是太随意了

我不愿意将就
回复

使用道具 举报

1万

帖子

10

原创值

1万

金币

装修大学_教授

Rank: 7Rank: 7Rank: 7

积分
5360

社区居民最爱沙发社区明星

 楼主| 发表于 2015-01-27 02:14:45 | 显示全部楼层
本帖最后由 纪风 于 2015-12-24 00:35 编辑

在装修之前很多前辈都以过来人的口吻告之“你一定要装地暖不然会后悔的。”既然这么多人都说好,纪风也得学习和了解一下了(以下节选自度娘)。

    地暖的散热方式是以辐射采暖为主,热量由下而上均匀辐射散热,符合人体工学,房间同一层面的温度均匀,温差小,使人的感觉是足热头凉,既节能又舒适。暖气片采暖是以对流为主的采暖方式。这种采暖方式是暖气片周围的温度高,随着与暖气片距离的加大,温度递减,同一层面的温度温差较大,这一现象在大空间房间内尤其明显。由于这种采暖是对流方式,热空气自上而下对流,房间温度是上热下凉,给人的感觉是头热脚凉,舒适感相对差些,但与空调制热相比要好一些。
    地暖优点如下:
    1.舒适性好
      地暖是热从脚生,俗话说:“寒从脚下生”,这样可以很效的对人的风湿病等起到很好的效果;
    2.节约空间
      室内不需要散热器或风机盘管及管道,从而增加了建筑使用面积、提高了有效层高,室内美观整洁
    3.运行成本相对较低

  这个说法当然和你的使用时间有很大的关系,就象公路上开的汽车一样,地暖属于一个匀速行使,一直保持一个速度,而暖气片则属于一会是60M,一会是80M,一会又是10M,同样的行程来说,肯定匀速是最节能的;

    4.舒适卫生
      地面辐射采暖系统是最舒适的空气调节方式之一,室内地表温度均匀,室内空气温度场分布合理,人体感知的舒适度较高,同时室内干净、清洁,有利于人体健康;
    5.稳定性好
      由于地面及地暖铝箔层中蓄能量大,热稳定性好,因此即使在间歇运行的条件下也能保持室温的稳定;
    6.运行寿命长
      符合欧洲标准的地暖管材是可以连续使用50年以上的材料。
那地暖又有哪些缺点呢?
    1.对地面材料有要求
      地面材料适宜选择散热性良好、材料性能对温度变化不敏感的石材或复合地板,目前实木地板不适宜用于地面辐射采暖系统;
    2.要占用一定的层高。
    接下来说说暖气片的优缺点了:
    优点:
    1.制热快
      好的暖气片大约为10分钟开始散发热量,半个小时达到预设的温度(20度正负2)
    2.对地面材料没有要求
    缺点:
    1.占空间
    2.舒适性不如地暖

    地暖暖气片优劣分析:
  地暖符合人体采暖习惯十分舒适,但地暖升温较慢,这一点暖气片却做的很好,暖气片采暖效率非常高,但舒适度又逊于地暖采暖。从安装上来说,地暖的安装要比暖气片复杂很多,安装地暖要经过层层工序。而暖气片也是有劣势的,安装一组庞大的暖气片比较占地方,它减少了房内使用面积,给家具布置和装修装饰带来不少麻烦。

   
    看了这么多你一定有疑问,纪风到底选择的是什么方式?
    答案就是:其实我都没选择,压根就不想用这东西。没钱是一个方面,更重要的一个方面我是觉得一年四季应该要冷热分明,该热的时候热一点,该冷的时候冷一点。长沙话说得好“怄四冻九”,实在是担心地暖病变成另一种空调病。

回复 收藏

使用道具 举报

您需要登录后才可以回帖 登录 | 立即注册

本版积分规则