QQ登录    

08我家网

2023兔年大吉
12
返回列表 发新帖

[装修交流]0000000000

[复制链接]

448

帖子

0

原创值

373

金币

大四_装修达人

Rank: 4

积分
233
 楼主| 发表于 2015-01-26 17:11:00 | 显示全部楼层
zxq 发表于 2015-1-26 17:08
解决的办法到时有。晚点给你上个图吧。

好的,记得哦。不好忘了
回复

使用道具 举报

448

帖子

0

原创值

373

金币

大四_装修达人

Rank: 4

积分
233
 楼主| 发表于 2015-01-26 17:14:34 | 显示全部楼层

你房子面积多大?是半包还是清包咯?
回复

使用道具 举报

448

帖子

0

原创值

373

金币

大四_装修达人

Rank: 4

积分
233
 楼主| 发表于 2015-01-27 16:24:48 | 显示全部楼层
bmmm 发表于 2015-1-26 15:02
你的户型主卧跟我的很像,我基本布局如下图

亲。可以把你整个平面图设计好的,发我一份吗?
回复 回复(1)条

使用道具 举报

36

帖子

0

原创值

1003

金币

设计师

Rank: 8Rank: 8

积分
25

社区居民

发表于 2015-01-28 00:20:01 | 显示全部楼层
2015.1.jpg

A:还是保留主卫基本功能,只是压缩空间。
B:次卧门洞改位置,避免与次卫门在一起的尴尬。
C:原主卧门扩大一点,做造型门洞。
D:主卧隔出衣帽间与房门。
E:做出与C处一样造型的假门洞,得出电视背景墙。(背景材质自选)
回复 回复(1)条

使用道具 举报

113

帖子

0

原创值

190

金币

大三_装修里手

Rank: 3Rank: 3

积分
59
发表于 2015-01-28 10:12:25 | 显示全部楼层
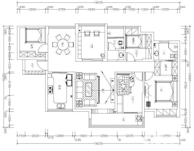
hh5201314 发表于 2015-1-27 16:24
亲。可以把你整个平面图设计好的,发我一份吗?

好的
以下是我家的平面布局图

204设计图.jpg
回复

使用道具 举报

448

帖子

0

原创值

373

金币

大四_装修达人

Rank: 4

积分
233
 楼主| 发表于 2015-01-28 16:11:12 | 显示全部楼层
zxq 发表于 2015-1-28 00:20
A:还是保留主卫基本功能,只是压缩空间。
B:次卧门洞改位置,避免与次卫门在一起的尴尬。
C:原主卧 ...

谢谢。请教 E:做出与C处一样造型的假门洞 这点为什么要这样设计呢??
回复 回复(1)条

使用道具 举报

36

帖子

0

原创值

1003

金币

设计师

Rank: 8Rank: 8

积分
25

社区居民

发表于 2015-01-28 22:27:50 | 显示全部楼层
hh5201314 发表于 2015-1-28 16:11
谢谢。请教 E:做出与C处一样造型的假门洞 这点为什么要这样设计呢??

C处既是门洞也是背景墙的一部分(造型根据整体风格来定),使整个背景饱满、整体。
回复

使用道具 举报

您需要登录后才可以回帖 登录 | 立即注册

本版积分规则