QQ登录    

08我家网

2023兔年大吉
12
返回列表 发新帖

为了崽崽,开始内外兼修的女汉子的装修之路!

[复制链接]

1万

帖子

628

原创值

1万

金币

荣誉版主

积分
8155

社区居民忠实会员社区劳模最爱沙发社区明星

发表于 2015-03-30 17:04:37 | 显示全部楼层
诺诺真的是个女汉纸,一定会收获一个温馨的小家
回复

使用道具 举报

152

帖子

0

原创值

448

金币

大三_装修里手

Rank: 3Rank: 3

积分
81

社区居民

 楼主| 发表于 2015-05-31 21:01:22 | 显示全部楼层
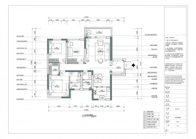
关于装修公司的最后决定
可能有时候也是缘分''在业主群里聊天遇到六米'玩的好的策找六米装修'一条和天下就可以啦'以为是玩笑就策着'五月二号去了NY'敲定方案那些'给我感觉就是什么都还不错'但是最后预算算出来'我心底没底啦'因为我手里只有那么多钱'还是万般不舍的犹豫了'回去后就策六米让他优惠点帮我搞装修'因为我实在是没有那么多精力去搞'后来接触中证明确实我的选择是多的'沟通了很多想法后'确定风格现代简约'就这样一条和天下玩笑引起的装修开始了''

效果图

效果图

平面图

平面图
回复 收藏

使用道具 举报

您需要登录后才可以回帖 登录 | 立即注册

本版积分规则