QQ登录    

08我家网

2023兔年大吉

80后钟爱美式风格

[复制链接]
  • 所在城市:株洲
  • 所在小区:美的城小区
  •  
  • 装修类型:新房装修
  • 装修户型:三房
  •  
  • 装修方式:清包
  • 装修风格:美式
  •  
  • 装修预算:10万—20万
  • 开工时间:
  • 前期设计
  • 主体拆装
  • 水电
  • 泥工
  • 木工
  • 油漆
  • 成品安装
  • 软装配饰
  • 毕业
已装修历时3836

7

帖子

0

原创值

49

金币

大一_装修新生

Rank: 1

积分
5
发表于 2015-04-23 10:43:07 | 显示全部楼层 |阅读模式
本帖最后由 熊二的内心世界 于 2015-6-1 09:27 编辑

     当你在平凡中持续一段时间后,就会觉得生活也就是柴米油盐酱醋茶,但是这样真的没什么意思,生活中总得需要那么几件让你心跳加速,眼开眉展的事情。
     嚯嚯嚯!先买个房让自己激动激动,买房到是挺顺的,先到网上找找楼盘,看上了几个就直奔目的地了。都说买房先看户型,再是位置和小区环境。我对户型没什么概念,通风采光好就行。就找了个位置合适,小区环境好的楼盘给买下了。
     房子不大不小,还是能够满足现在的生活起居。买完房就得考虑装修设计的事情了,装修方面还稍微懂点,以前总是陪朋友去购买一些家具 建材之类的东西,对于设计的话我可是小白了,特别是配色方面的真的一窍不通,他们都叫我色盲(色彩文盲)。一开始我是不考虑找设计师,直接让包工头简单弄弄就入住的,后面经过朋友的百般劝导,还是决定找一个专业的公司。他们之前为了省那几千块的设计费,直接施工了,有的是直接包给了那种免设计费包施工的公司,当时还心里觉得暖暖的,等到施工完之后,那个后悔啊!费话不多说了,先上传个原始图。  待续....................

原始结构

原始结构
                                                                                                                                                    许久没有更新帖子了,那是因为我花了整整一个月做设计,设计之路可说是一波三折啊!
   个人觉得房子装修设计是关键,买个房子几十上百万都花了,就不在乎那几千块的设计费了,设计的好的话还有可能节约成本。
   通过朋友介绍,我找到了刘耀成品蓝设计工厂,进网站看了他们的作品,确实是高大上啊!我当时就心动了,联系了客服,经过
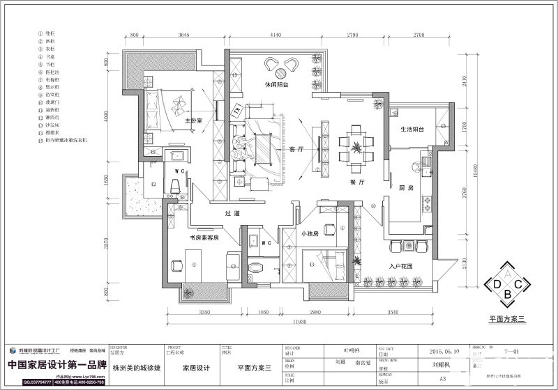
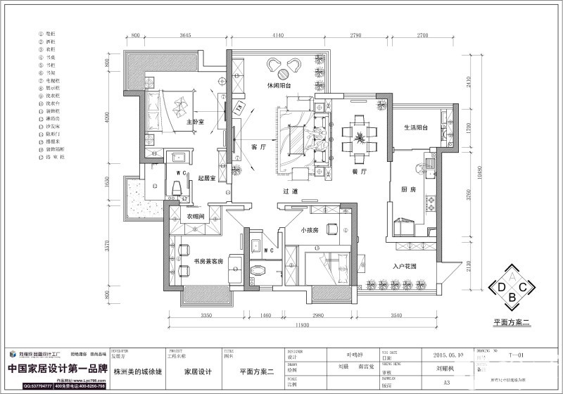
一番了解,我选择了叶鸣蝉做我的设计师,他们公司也是强力推荐。很快就进入设计阶段,叶鸣蝉设计师给我出了三个方案,各有
特色,他推荐的是方案三,我却选择了方案二,只是主卧有点小改,经过一番讨论,设计师还是尊重了我的意见。先看图吧! 平面方案二.jpg
平面方案三.jpg
平面方案一.jpg
      
                                                                                                                 平
面方案很快就确定了,确认之后就开始进入效果图阶段。由于我工作忙的原因,我也没和设计师有过多的沟通,就急急忙忙的让他
出效果图了。当时心想是做出来不满意改就是了,现在觉得心里特愧疚,有点对不起设计师的样,不过叶鸣蝉人比较大气咯,没有
和我计较这么多。第一次效果图如下   客餐厅-01.jpg
客餐厅-02.jpg
客餐厅-03.jpg
客餐厅-04.jpg
客餐厅-05.jpg
主卧室-01.jpg
主卧室-02.jpg
                                                                                 
                   这个效果一出,很符合我的口味,不管是色调上还是造型上我一眼就喜欢上了,很有艺术范。我给朋友同事看
过之后,他们都赞不决口。可是出乎意料的是家里没有一个人站在我这边,家人没法接受这种感觉,特别是色调方面,经过几天争
论,我还是妥协了,毕竟以家人的意见为主,我只好厚着脸皮和叶鸣蝉说去了,他听了我一番解释之后,情绪上并没有太大变化,
还和我说能够理解,因为房子设计并不是我一个人做主。所以经过商量之后就进行了第二次修改,这次修改不仅仅是改效果图,连
方案都改了,还是之前他推荐的方案三,我也是个纠结的人呐!修改的时间稍微长些,因为毕竟人家手上不只我一套设计,不可能
盯着我的弄。中途的废话就省略,直接看图吧!    餐厅-01.jpg
餐厅-02.jpg
过道-01.jpg
过道-02.jpg
客厅-01.jpg
客厅-02.jpg
客厅-03.jpg
客厅-04.jpg
玄关.jpg
主卧室x-01.jpg
主卧室x-02.jpg
                                                                     
                                                       这次效果图出来虽然感觉完全变了,但是效果依然挺好,经过家里商
量之后,有一半是赞成的,但是谈着谈着又出幺蛾子了,一会说墙体的颜色没法接受,一会又要做深色柜子,总之是各种想法层出
不穷,我真的是没有一点办法,最后还是和叶鸣蝉说了要修改的想法,这次他就没有第一次那么淡定了,气的简直火帽三丈,我也
只能尽量说些好话抚平下他的怒火了,毕竟责任在我,一会要这样,一会要那样,是个人都接受不了。但是问题总得解决啊!冷战
了几天之后,还是化干戈为玉帛,他答应了第三次修改,我当时心里既有愧于他,又很感激他。我想如果运气不好遇到不好的设计
师,可能都不会搭理我了。第三次修改是很多东西是确认之后再确认,最终效果图完美呈现,皆大欢喜。 餐厅-01.jpg
餐厅-02.jpg
过道-01.jpg
过道-02.jpg
客厅-01.jpg
客厅-02.jpg
客厅-03.jpg
客厅-04.jpg
玄关.jpg
主卧室-01.jpg
主卧室-02.jpg
                        
                                                                                         设计虽然做完了,不过以后还
有很多问题得请教叶大师啊!经过一个月对设计师的了解,发自内心的赞,设计水平没得说,人品也很好,脾气虽然有点爆,但有
时候应该站在别人的立场想问题,而且我认为一个好的设计师一定是有性格的。今天就先到这里,后期我再抽时间更新,欢迎回帖

1万

帖子

10

原创值

1万

金币

装修大学_教授

Rank: 7Rank: 7Rank: 7

积分
5360

社区居民最爱沙发社区明星

发表于 2015-04-23 11:19:23 | 显示全部楼层
祝装修顺利
回复

使用道具 举报

1万

帖子

0

原创值

5436

金币

荣誉版主

积分
6484

社区居民最爱沙发原创达人新人进步奖社区劳模宣传大使奖

发表于 2015-04-23 13:38:05 | 显示全部楼层
期待熊二更多的精彩内容呀~~
回复 回复(1)条

使用道具 举报

5090

帖子

0

原创值

6809

金币

荣誉版主

积分
3799

社区居民最爱沙发原创达人新人进步奖社区劳模

发表于 2015-04-23 14:10:10 | 显示全部楼层
装修顺利~期待跟大家一起分享装修心得和故事~
回复

使用道具 举报

968

帖子

0

原创值

397

金币

大四_装修达人

Rank: 4

积分
495

社区居民

发表于 2015-04-23 14:49:37 | 显示全部楼层
前排留个印子。。。我也是准备搞美式  学习围观一下
祝楼主顺利  好经验 共分享
回复 回复(1)条

使用道具 举报

7

帖子

0

原创值

49

金币

大一_装修新生

Rank: 1

积分
5
 楼主| 发表于 2015-04-24 00:55:41 | 显示全部楼层
果冻 发表于 2015-4-23 13:38
期待熊二更多的精彩内容呀~~

好的好的,尽量抽时间更新帖子
回复

使用道具 举报

7

帖子

0

原创值

49

金币

大一_装修新生

Rank: 1

积分
5
 楼主| 发表于 2015-04-24 00:58:46 | 显示全部楼层
冬天的冬瓜 发表于 2015-4-23 14:49
前排留个印子。。。我也是准备搞美式  学习围观一下
祝楼主顺利  好经验 共分享

可以相互交流
回复

使用道具 举报

31

帖子

0

原创值

144

金币

大一_装修新生

Rank: 1

积分
17
发表于 2015-05-05 10:47:00 | 显示全部楼层
对美式感兴趣,哈哈
回复

使用道具 举报

31

帖子

0

原创值

144

金币

大一_装修新生

Rank: 1

积分
17
发表于 2015-06-01 09:33:37 | 显示全部楼层
效果图棒棒哒,叶大师果然不错,我比较喜欢第二个。
回复

使用道具 举报

23

帖子

0

原创值

86

金币

大一_装修新生

Rank: 1

积分
12
发表于 2015-06-01 09:35:06 | 显示全部楼层
不错不错哦,设计师真有耐心.........
回复

使用道具 举报

您需要登录后才可以回帖 登录 | 立即注册

本版积分规则