QQ登录    

08我家网

2023兔年大吉

【乐家巢杯装修日记大赛】◆更新: 分享《住宅装饰装修一般项目参考基价》,装修公司部份材料和计价表

[复制链接]

92

帖子

0

原创值

54

金币

大二_装修学长

Rank: 2

积分
49
 楼主| 发表于 2015-06-08 21:22:52 | 显示全部楼层

餐厅两片墙都做了玻璃,真是会亮瞎双眼,关键是有片墙是弱电箱,也不可能做一整片玻璃。


异形吊顶让设计师改成平的,没想到她很执着啊,此处用不上,几个月之后的某个项目又用上了,还好只是用在小小的卧室,如果用在客厅真能引起不小的轰动。


a1.jpg



几个月后在淘宝竟然发现了同款异形背景墙,真是和我这个设计师“惺惺相惜”。 a2.jpg




这华丽丽的组合到一真是能亮瞎双眼!



回复 收藏

使用道具 举报

92

帖子

0

原创值

54

金币

大二_装修学长

Rank: 2

积分
49
 楼主| 发表于 2015-06-08 21:45:26 | 显示全部楼层
网上实在有好看异形吊顶,她做出来的怎么没天理了。


异形吊顶2.jpg
异形吊顶1.jpg
回复

使用道具 举报

92

帖子

0

原创值

54

金币

大二_装修学长

Rank: 2

积分
49
 楼主| 发表于 2015-06-08 22:20:51 | 显示全部楼层
无奈的选择

遇到这样的设计师,真是无语,我和设计师说阳台外扩,原梁到阳台门处吊平好了。把网上找的图版拿给她看,让她照着做。
她竟然对我说:你原来不喜欢曲线,喜欢直的啊。
此时我头上真是有一片云飘过:我给你最大的自由,你整个这么难看的东西给我,谁能喜欢上才是奇葩呢。

5347035.jpg


5347033.jpg










5347038.jpg
回复

使用道具 举报

92

帖子

0

原创值

54

金币

大二_装修学长

Rank: 2

积分
49
 楼主| 发表于 2015-06-08 22:49:23 | 显示全部楼层
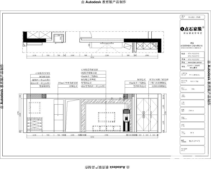
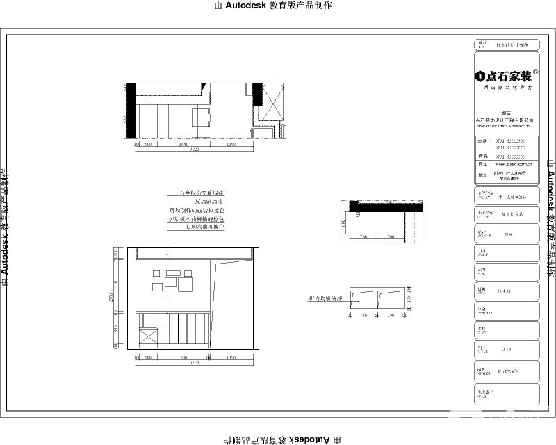
11月16日中规中矩的第二稿设计
地面铺砖图.jpg
天花布置图.jpg
电视背景A立面图.jpg
沙发背景C立面图.jpg
餐厅D立面图.jpg
儿童房A立面图.jpg





灯具尺寸图.jpg
回复 收藏

使用道具 举报

92

帖子

0

原创值

54

金币

大二_装修学长

Rank: 2

积分
49
 楼主| 发表于 2015-06-08 22:55:53 | 显示全部楼层
本帖最后由 【卓晓】 于 2015-6-8 23:45 编辑

效果图

色彩搭配上还可以咯,只是给你感觉太平常,没亮点。


许久之后才看到一句话:轻装修重装饰,有灵魂的设计应该是有空间感层次感。恍然大悟,我们的设计就是没有空间感。


   太平。

5.jpg
回复

使用道具 举报

92

帖子

0

原创值

54

金币

大二_装修学长

Rank: 2

积分
49
 楼主| 发表于 2015-06-08 23:11:10 | 显示全部楼层
本帖最后由 【卓晓】 于 2015-6-9 21:51 编辑

如何让简单装修赋予空间感

1 局部做吊顶,获得立体感,增加空间感。


2 不想做吊顶,电视背景墙又想做简单点,可以增加电视柜旁的展示柜增加层次,获得空间感。



5168184.jpg




6.bmp




7302230.jpg




8616620.jpg








回复 收藏

使用道具 举报

92

帖子

0

原创值

54

金币

大二_装修学长

Rank: 2

积分
49
 楼主| 发表于 2015-06-09 00:04:27 | 显示全部楼层
换汤不换药的方案修改

原来方案的背景墙镜面造型,空调柜机会破坏这种造型的。我让设计师改个方案,告诉她要简单的,因为我不太了解做背景墙的材料有哪些,想让她帮我找个有质感的材料。



例如这种:


















设计看我发来的图片说第一种是烤漆玻璃,这么大块的玻璃一线城市才会有。
第二种是硅藻泥
第三种是墙布


你选的这样拿掉家具,装饰之后,硬装很没什么,主要靠后期搭配。


听了这翻话我以为她领会了我的意图,过了两天之后,她竟然给我了我这种的效果图。
内心真的有一万头草泥马在飞过……

2.jpg



3.jpg




回复 收藏 回复(1)条

使用道具 举报

5201

帖子

0

原创值

6560

金币

管理员

Rank: 20Rank: 20Rank: 20Rank: 20Rank: 20

积分
4270

社区居民新人进步奖原创达人

发表于 2015-06-09 09:59:37 | 显示全部楼层
设计师完全不能领会你的意图啊
回复

使用道具 举报

1436

帖子

0

原创值

2454

金币

装修大学_研究生

十年磨砺,一中一美

Rank: 5Rank: 5

积分
860

社区居民忠实会员社区劳模

发表于 2015-06-09 16:36:12 | 显示全部楼层
【卓晓】 发表于 2015-5-16 00:59
有经验的设计师……说的好不如做的好(美女设计师的经典语录)----初次见面我和老公白手起家,自己买房自 ...

这贴子有点意思!一般装修公司的设计师首先是促销员,,,,
回复

使用道具 举报

92

帖子

0

原创值

54

金币

大二_装修学长

Rank: 2

积分
49
 楼主| 发表于 2015-06-09 22:06:45 | 显示全部楼层


赌注



收到她的终稿效果图,心中真是在咆哮啊。


第一次收到那无厘头的平面方案图就该炒掉她,没想到心太软,又交了3800继续完善施工图,真是受了一次次虐。

我要即时止损,换掉设计师,换掉装修公司。


这时戏曲性的事情发生了,我的老公竟然以“不走回头路,这个设计从10月中旬弄到12月中旬,经历两个月。现在你要换设计师,还要再设计两个月,等不起,现在要施工,明年十月份就要住进去!

设计你不喜欢,你自己改,找人改,随便你,不能换公司,不能改施工进度”


设计不好,自己找人设计。同事说施工质量不错就赌施工队吧。


最后我被我老公押着去签了施工合同。

定于2015年1月2日开工
























回复 收藏

使用道具 举报

您需要登录后才可以回帖 登录 | 立即注册

本版积分规则