QQ登录    

08我家网

2023兔年大吉

我和老公的装修之旅

[复制链接]
  • 所在城市:长沙
  • 所在小区:怡海星城
  •  
  • 装修类型:新房装修
  • 装修户型:三房
  •  
  • 装修方式:半包
  • 装修风格:现代简约
  •  
  • 装修预算:10万—20万
  • 开工时间:2015-05-12
  • 前期设计
  • 主体拆装
  • 水电
  • 泥工
  • 木工
  • 油漆
  • 成品安装
  • 软装配饰
  • 毕业
已装修历时3813

21

帖子

0

原创值

28

金币

大一_装修新生

Rank: 1

积分
14
发表于 2015-05-16 13:05:19 | 显示全部楼层 |阅读模式
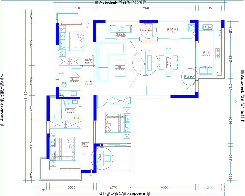
之前一直潜水看各位大侠们的装修帖子,从中能够感受到装修中的各种辛苦和快乐,当看到装修毕业照的时候我也很期待自己家的样子,所以也忍不住想把自己的装修过程写下来,希望大家多多指点。今天上午和老公起个早去把房子收了,本来去年6月就有交房,但是一直没做好准备就没装,现在准备这个月进场就赶快去收了,晒一下我的户型图(自己画的学过设计可惜没坚持)。上午收房之后下午赶忙跑到装修公司去看施工图和预算,之前有大概谈过一次,这次仔细讨论好直接就把合同签了,可能有点仓促,但是因为我和老公都上班没时间去仔细对比,所以就选择了朋友家装过的HX,也是半包主材自己选放心一些,今天谈的还不错,但是之前没有经验不知道自己哪里是不是还没考虑周全,但是总觉得选择公司会放心一些,设计师胡工是位年纪相仿的年轻人,沟通还算顺畅,合同签定了,并且交了第一批款,定在12号开工,祝愿一切顺利。
怡海星城翟美女雅居35#1105-Model.jpg
QQ图片20150516130051.jpg

21

帖子

0

原创值

28

金币

大一_装修新生

Rank: 1

积分
14
 楼主| 发表于 2015-05-16 13:10:54 | 显示全部楼层

我和老公的装修之旅

5月12日,今天我跟老公请了一天假,起了个早到工地等铲墙的师傅和装修公司的人过来,心里多少还是有点小兴奋的,大概不到9点的样子施工监理带着两个师傅就来了,戴工看起来年纪应该跟我的父母差不多,第一印象还不错,进到房间我们大概沟通了一下,他就开工四处敲打墙面说是看一下空鼓,检查空鼓的过程中他说房子质量还可以,这让我们心里蛮舒服的,不一会负责我们的设计师过来了,他把哪些地方需要改动的又跟戴工对接了一下。我跟老公选了个吉时9点58分,准备这个时候放鞭炮,另外前一天准备了几盒烟给了师傅们和设计师,就这样代表了我们的一点心意,吉时一到,鞭炮就热热闹闹的响起来了,放完鞭炮戴工开始安排两个师傅今天的工作,铲灰的工作戴工说他们可以做不用另外找,价格和外面一样,还不贵,今天主要的就是拆墙,铲灰和挖踢脚线的槽,还有去找封阳台的人把尺寸量好,因为是第一天我和老公还有点不放心想要不要一天盯在工地上,可是没过一会我们这种想法就没有了,因为拆墙铲灰除了到处是灰土之外声音真的好大,没办法我和老公就和楼上的邻居一起去建材市场看门去了,师傅们进度蛮快,一天就都搞完了铲灰和砌墙工作 给大家看看,不知道这样可以不
20150513_931748a2976e85b8b06fkwdjsK4RedDy.jpg
20150513_5cda59b37f94a0e0d6ecWJd1iVJ9cDPy.jpg
20150513_add5d6ee021abf491289n2Y7iiMmVWyt.jpg
20150513_a326b0ce073c58cc58a87zTZWM6WzCsL_180x180M.jpg
回复 收藏

使用道具 举报

1万

帖子

10

原创值

1万

金币

装修大学_教授

Rank: 7Rank: 7Rank: 7

积分
5360

社区居民最爱沙发社区明星

发表于 2015-05-16 13:14:12 | 显示全部楼层
怎么开了两个帖
回复

使用道具 举报

1万

帖子

10

原创值

1万

金币

装修大学_教授

Rank: 7Rank: 7Rank: 7

积分
5360

社区居民最爱沙发社区明星

发表于 2015-05-16 13:14:29 | 显示全部楼层
祝装修顺利
回复

使用道具 举报

21

帖子

0

原创值

28

金币

大一_装修新生

Rank: 1

积分
14
 楼主| 发表于 2015-05-16 13:17:31 | 显示全部楼层

我和老公的装修之旅—5月13号

5月13号,装修第二天,我和老公被告知房子里没人做事,下午会进一些材料入场,谁知道到了下午打电话过去询问的时候又说拉水泥和沙子的车被交警扣了,14可能还不会有人做事,心里有些不舒服了。没办法只能等,到了14号,老公询问今天进场的情况,项目经理一上午电话没人接,这下真的不开心了,做一天事停两天工,本来还想介绍朋友到华浔呢,这下就得看他们以后的情况了,咱也不能坑别人不,中午项目经理回了个微信说下午会进水泥和沙子,希望如他所说吧,毕竟钱交给他们了,现在只能等!下午没事看了一些玄关的图片分享给大家
回复 收藏

使用道具 举报

21

帖子

0

原创值

28

金币

大一_装修新生

Rank: 1

积分
14
 楼主| 发表于 2015-05-16 13:23:04 | 显示全部楼层
纪风 发表于 2015-5-16 13:14
怎么开了两个帖

我也不知道 怎么搞那个电梯直达?
回复

使用道具 举报

21

帖子

0

原创值

28

金币

大一_装修新生

Rank: 1

积分
14
 楼主| 发表于 2015-05-16 13:53:02 | 显示全部楼层

5月13号 碎碎念

本帖最后由 一荷淡影 于 2015-5-16 13:54 编辑

5月13号,装修第二天,我和老公被告知房子里没人做事,下午会进一些材料入场,谁知道到了下午打电话过去询问的时候又说拉水泥和沙子的车被交警扣了,14可能还不会有人做事,心里有些不舒服了。没办法只能等,到了14号,老公询问今天进场的情况,项目经理一上午电话没人接,这下真的不开心了,做一天事停两天工,本来还想介绍朋友到华浔呢,这下就得看他们以后的情况了,咱也不能坑别人不,中午项目经理回了个微信说下午会进水泥和沙子,希望如他所说吧,毕竟钱交给他们了,现在只能等!下午没事看了一些玄关的图片分享给大家
20150514_669b7ac4a2fea478d95ceGtKsr5DmVs6_180x180M.jpg
20150514_a72d940497a67436a4b0V3YRDLjLCkWU.jpg
回复

使用道具 举报

21

帖子

0

原创值

28

金币

大一_装修新生

Rank: 1

积分
14
 楼主| 发表于 2015-05-16 14:01:07 | 显示全部楼层
5月14日,下午下班和老公一起去新房里看了一下师傅刮灰的面积,谁知道到了那里发现监理戴工确实想说的那样把水泥 沙子 还有腻子膏 和一些工具都进场了,而且刮灰和拆墙后的卫生搞的非常干净,给大家传几张照片看看,材料堆放的也很整齐呢
20150515_8fb35ef153c328f51502I7tSNono2Mg1.jpg
20150515_1acc6d011532e5868980GrcsaXRrkJww.jpg
20150515_501ef08fd50c06e58f39j2DFj81Zq6zT.jpg
20150515_1114fa881fbc602e140bb19SM1b8bLyH.jpg
20150515_e00a528aae35fe61afd43jvjtiLmLSIq.jpg
回复

使用道具 举报

21

帖子

0

原创值

28

金币

大一_装修新生

Rank: 1

积分
14
 楼主| 发表于 2015-05-16 14:02:18 | 显示全部楼层
5月15号,早上监理戴工在微信群里说今天的工作是处理墙面,修补墙面,刮墙面剂,老公又出差了要过几天才回来,我上了一天班,下午的天气不怎么好就没去工地上看,晚上戴工传了几张照片到群里,墙面基本处理好,并且砌好了电视背景的墙,看着效果感觉还可以,就是不知道厨房的门洞是不是也有处理好,还得明天去工地上了解一下。下午上班的时候无聊把看了几天的水槽在**上定了,卖家态度很好,看了欧琳,摩恩的,但最终选择了佳德,科勒旗下的品牌,感觉还可以,希望到货后质量满意,是佳德水槽的工厂店,今天就到这里,明天有时间的话就去工地上看看,没时间的话就等后天早上和做橱柜的人一起到工地做水电定位啦,感觉好快,一切顺利
回复

使用道具 举报

919

帖子

1

原创值

4574

金币

管理员

Rank: 20Rank: 20Rank: 20Rank: 20Rank: 20

积分
620

社区居民忠实会员社区劳模最爱沙发

发表于 2015-05-16 14:42:54 | 显示全部楼层
恭祝开工大吉

你这边可能不小心开了三个帖, 我帮你合并到一个帖里哈
回复

使用道具 举报

您需要登录后才可以回帖 登录 | 立即注册

本版积分规则