QQ登录    

08我家网

2023兔年大吉

看新手装修,操最少的心,花最合适的钱,做出最好的效果,请期待我的理想装修梦。请注意“理想”2个字。

[复制链接]
  • 所在城市:长沙
  • 所在小区:富基世纪公园
  •  
  • 装修类型:新房装修
  • 装修户型:三房
  •  
  • 装修方式:全包
  • 装修风格:美式
  •  
  • 装修预算:10万—20万
  • 开工时间:2015-07-01
  • 前期设计
  • 主体拆装
  • 水电
  • 泥工
  • 木工
  • 油漆
  • 成品安装
  • 软装配饰
  • 毕业
已装修历时3758

2

帖子

0

原创值

38

金币

大一_装修新生

Rank: 1

积分
2
发表于 2015-07-10 11:18:30 | 显示全部楼层 |阅读模式
     15年加入08的,在群里经常和大家聊各种问题,感觉08的气氛是见过长沙最好气氛的群。我觉得装修这事对我们来讲,一辈子可能也就那么1一次,或者几次。所以早准备是必须的。
对于自己买房来说,我是和朋友一起去买,不到2个小时,我就把房间订了,反正我也不喜欢策,觉得自己合适,就订了(富基世纪公园),以至于到现在我都不知道长沙几个楼盘。
进入装修话题吧,第一个就是考虑设计公司,说实话,真佩服装饰公司的业务员,能风雨无阻的给你发信息,邀约你。被受感动,来到装饰公司,了解了下,相信各位装友都有不同的体会。总之是一言难尽。因为最终还是没有选择让公司装。
    我一直了解了自己的一个表弟做设计这块的,因为之前朋友经常说不要找亲戚做装修,因为有的时候直接的话也不好讲。后面这个观点我改变了,因为从小到大,每年都要见他几次,人品这块没什么问题,就基本敲定让他来做我们家的装修了。我是这样理解亲戚装修的,要么非常相信,就给他装。那种好多年没见过一面,隔了几代的亲戚,如果也比较了解就可以,如果不是这样的话,那就不要请。后面的事情也证实了这一点。
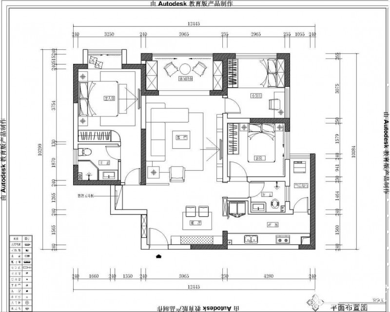
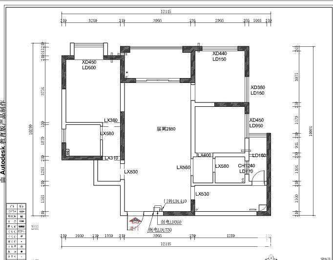
    装修第一步,确定平面图,我的户型比较周正,大的方面没什么要改的。只有餐厅小和厨房狭长这块需要调整,我表弟帮我的户型做了很多功课,设置了7,8个方案,最后我和老婆敲定了这样一个方案(图纸稍后呈现)、
    敲订方案,那接下来就是效果图的制作,其实我对这个不是很在乎,讲究的就是实用,看上去也不是很掉档次就可以了,然而我老婆非常注意这些,所以这块基本是她再沟通,看了一些参考图,表弟给她出了2张效果图(等下也可以呈现),我看觉得还可以,但是老婆一直不喜欢,这个地方还和老婆吵架了,所以说装修这事,要统一意见肯定要有让步的,最后我说那就你自己去沟通吧,于是抽出时间,带着她来长沙单独见面聊了一下,因为之前都是我这边沟通的。后面又重新修改了些,出了2张图(等下呈现),说实话,这点上还挺满意他的,没有任何二话。
    然后就是看中央空调,看瓷砖,中央空调这块,非常纠结,先是一个朋友说给我报价,结果等了3天,一点反应没,我也就没麻烦他了,后面去看大金的空调,算下来4W多,远远超出自己的预算了,最后自己又去几家格力的空调报了价格,其实价格已经比较接近了,都是3W左右,当时准备订了。后面还是听了表弟已经去他的一个好友那,2W6拿下了。瓷砖的状况也差不多,所以这里总结的经验就是,如果要想省点材料费的话,那就要多去看几家,货比3家(土豪请随意)。先写这些吧,写的太平淡了,后期慢慢补充,现在已经进水电了。

QQ图片20150710112027.jpg
QQ图片20150710112032.jpg
QQ图片20150710112036.jpg
QQ图片20150710112040.jpg

1万

帖子

0

原创值

9607

金币

论坛元老

掰子姐

Rank: 15Rank: 15Rank: 15Rank: 15Rank: 15

积分
11275

吃货社区居民社区明星忠实会员最爱沙发新人进步奖幽默大师奖贴图大师奖原创先锋奖金点子奖特殊贡献奖宣传大使奖优秀斑竹奖终身成就奖灌水天才奖社区劳模原创达人

发表于 2015-07-10 11:31:30 | 显示全部楼层
欢迎来到装修日记版记录自己的装修故事,加油!!
回复

使用道具 举报

5201

帖子

0

原创值

6560

金币

管理员

Rank: 20Rank: 20Rank: 20Rank: 20Rank: 20

积分
4270

社区居民新人进步奖原创达人

发表于 2015-07-10 11:35:49 | 显示全部楼层
户型不错哦,期待美式效果
回复

使用道具 举报

5090

帖子

0

原创值

6809

金币

荣誉版主

积分
3799

社区居民最爱沙发原创达人新人进步奖社区劳模

发表于 2015-07-10 11:54:22 | 显示全部楼层
欢迎开贴写日记,记录装修故事呀~期待装修成果
回复

使用道具 举报

您需要登录后才可以回帖 登录 | 立即注册

本版积分规则