QQ登录    

08我家网

2023兔年大吉

三房两厅,预算13万硬装,全房地暖,全房进口快步地板,能行吗?

[复制链接]

1万

帖子

0

原创值

9607

金币

论坛元老

掰子姐

Rank: 15Rank: 15Rank: 15Rank: 15Rank: 15

积分
11275

吃货社区居民社区明星忠实会员最爱沙发新人进步奖幽默大师奖贴图大师奖原创先锋奖金点子奖特殊贡献奖宣传大使奖优秀斑竹奖终身成就奖灌水天才奖社区劳模原创达人

发表于 2016-02-18 17:18:18 | 显示全部楼层
hunkitty 发表于 2016-2-11 13:05
定下的厨柜,不锈钢台面,现在纠结要不要做瓷砖柜体,接近1000的差价,5米的橱柜

预算比较紧的话,就用普通柜体吧,也能满足使用需求的。
钱就是一点点省出来的嘛~
回复

使用道具 举报

277

帖子

0

原创值

454

金币

大三_装修里手

Rank: 3Rank: 3

积分
169

社区居民忠实会员社区劳模

 楼主| 发表于 2016-02-19 13:56:03 | 显示全部楼层
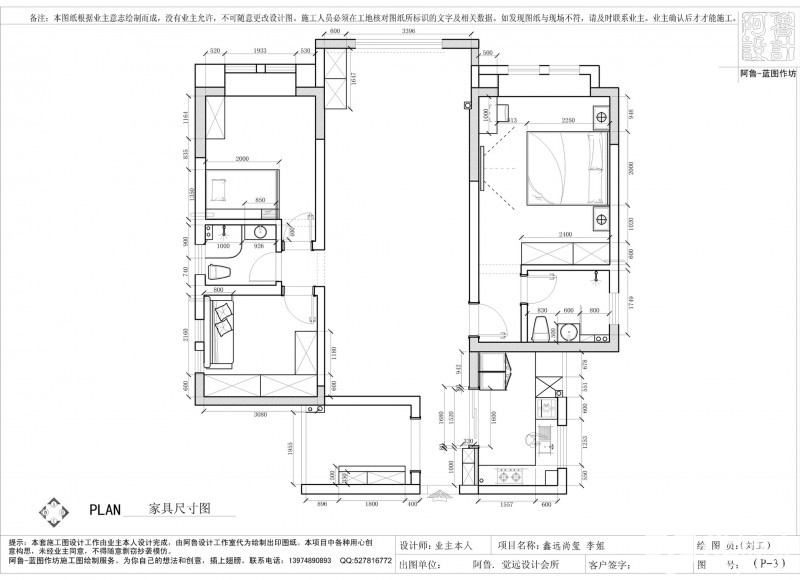
本来平面设计图早就定好了,过年讨论来讨论去做了一点改动,初十刘工上班就把改动发给她了,默默等修改后的图纸
回复

使用道具 举报

277

帖子

0

原创值

454

金币

大三_装修里手

Rank: 3Rank: 3

积分
169

社区居民忠实会员社区劳模

 楼主| 发表于 2016-02-19 13:59:13 | 显示全部楼层
喜欢这样的卫生间门,不知道长沙哪里有定做的,主要还是性价比
image.jpeg
image.jpeg
回复 回复(1)条

使用道具 举报

277

帖子

0

原创值

454

金币

大三_装修里手

Rank: 3Rank: 3

积分
169

社区居民忠实会员社区劳模

 楼主| 发表于 2016-02-19 14:09:49 | 显示全部楼层
基本确定这样,还有点小改动再等刘工,估计又去工地了,早上发的没回我信息,再让精工队的核算下价格,现在木工只有一个鞋柜要做了,希望价格能接受
image.jpeg
回复

使用道具 举报

277

帖子

0

原创值

454

金币

大三_装修里手

Rank: 3Rank: 3

积分
169

社区居民忠实会员社区劳模

 楼主| 发表于 2016-02-19 14:14:14 | 显示全部楼层
看中的油烟机,没什么原因,就是好看,鄙视下自己,价格可爱么?或者08快点有团购啊,一直纠结很多东西等315定会比开年红便宜么?
image.jpeg
回复

使用道具 举报

277

帖子

0

原创值

454

金币

大三_装修里手

Rank: 3Rank: 3

积分
169

社区居民忠实会员社区劳模

 楼主| 发表于 2016-02-19 19:41:46 | 显示全部楼层
随大流下单了前置,刚好有领券20,
image.jpeg
回复

使用道具 举报

4104

帖子

1000

原创值

7888

金币

装修大学_博士生

溯洄辰时

Rank: 6Rank: 6

积分
2105

社区居民

发表于 2016-02-23 16:59:34 | 显示全部楼层
个人觉得还是大理石台面吧,总觉得不锈钢会导电不太安全
回复

使用道具 举报

162

帖子

0

原创值

403

金币

大三_装修里手

Rank: 3Rank: 3

积分
90
发表于 2016-02-23 18:08:42 | 显示全部楼层
进来学习经验
回复

使用道具 举报

277

帖子

0

原创值

454

金币

大三_装修里手

Rank: 3Rank: 3

积分
169

社区居民忠实会员社区劳模

 楼主| 发表于 2016-03-01 11:54:21 | 显示全部楼层
开工,鞭炮我比较喜欢6,一切顺利的意思
image.jpeg
image.jpeg
回复

使用道具 举报

277

帖子

0

原创值

454

金币

大三_装修里手

Rank: 3Rank: 3

积分
169

社区居民忠实会员社区劳模

 楼主| 发表于 2016-03-01 11:57:33 | 显示全部楼层
补作业,到昨天为止,敲墙,水电位置定好,由于7号要回上海,告诉陈队6号要进地暖,加快速度噢
image.jpeg
image.jpeg
image.jpeg
image.jpeg
回复

使用道具 举报

您需要登录后才可以回帖 登录 | 立即注册

本版积分规则