QQ登录    

08我家网

2023兔年大吉

【2016最刻苦钻研奖】湘潭长房简约美式家,将美式进行到底 (更新无限制科学上网方案)

  [复制链接]

888

帖子

0

原创值

946

金币

大四_装修达人

Rank: 4

积分
472
 楼主| 发表于 2016-08-03 12:41:11 | 显示全部楼层

第19次上首页,纪念一下

19.jpg


地康水电完工的时候我拍了那么多照片分析,以为上首页妥妥的。
结果上首页机会被芹菜同学赏给了备忘录啊
回复 收藏

使用道具 举报

2392

帖子

0

原创值

3083

金币

装修大学_研究生

Rank: 5Rank: 5

积分
1274
发表于 2016-08-03 16:25:06 | 显示全部楼层
地康水电完工的时候我拍了那么多照片分析,以为上首页妥妥的。
结果上首页机会被芹菜同学赏给了备忘录啊


---------------如今水电照片已经不稀奇了,
回复

使用道具 举报

888

帖子

0

原创值

946

金币

大四_装修达人

Rank: 4

积分
472
 楼主| 发表于 2016-08-05 00:45:31 | 显示全部楼层

主卧效果图初步想法

本帖最后由 littleboy 于 2016-8-5 07:41 编辑

趁着现在精神还好,我想把主卧的一些想法汇总一下
1. 首先,墙漆总体色调是蓝灰色
1.jpg



2. 地板颜色是偏向于橙色的,都是木纹砖了。
类似于这样
2.jpg


铺贴方式暂定是人字帖,可以根据实际情况更改
3.JPG



3. 主卧没有飘窗了,空出来放个休闲椅子,脚凳之类的东西吧
4. 电视机下面如果可以放得下一个柜子,就尽量放一个。前提是不影响通行。放不下就算了。
5. 踢脚线用12公分的原木踢脚线,暂定白色,可以接受其他颜色。
6. 床尽量不要用软包,布艺和皮革都要尽量避免用于床头。我打算用原木的,也不需要四个角太高的那种
7.床头柜可以考虑用斗柜替代,能够多放一点东西。
8.床头灯不考虑陶瓷灯,也不考虑转臂灯了。用墙上的壁灯。
9.主卧和书房之间可以考虑留门,也可以考虑用门洞。
10. 主卧不能有风扇灯,老婆不喜欢。主卧的窗户位置也不能安排壁灯了,水电已经走完了。电视机下面有一个地脚灯,临时加了一个的。可以在房间安排一个落地灯。
11. 效果图主要是夜间效果,突出主卧的主要功能——睡觉。灯光效果以壁灯,筒灯,地脚灯,落地灯来营造。顶灯光线有点太强,营造不出温馨感觉。
12. 挂机在门洞上方
13. 为了减少压抑,我取消了房间的吊顶
回复 收藏

使用道具 举报

888

帖子

0

原创值

946

金币

大四_装修达人

Rank: 4

积分
472
 楼主| 发表于 2016-08-05 21:52:27 | 显示全部楼层

本杰明 摩尔 探店初体验

本帖最后由 littleboy 于 2016-8-5 22:39 编辑

认真看过我帖子的朋友,都知道我是houzz的脑残粉。混迹houzz一年多以来,我看过的美式风格图片应该有好几万张了吧,不敢说有多专业,但是积累了丰富的感性认识。在浏览houzz的过程中,有一个墙漆品牌如雷贯耳,它就是本杰明摩尔。作为一个普通消费者,我无法去获得油漆品牌在美国市场的普及率权威数据。但是我有一个简单粗暴的方法,那就是在houzz上搜索几个耳熟能详的油漆品牌,对比一下大家的评论数量。我可以负责任地说,其他几个油漆品牌的评论数量还没有哪个能够达到本杰明摩尔的1%,有些甚至是不足0.1%。感兴趣的朋友可以自己去测试一下。
今天,我在长沙红星美凯龙河西店专程去探望了一下这个店。
门面不是很大,呈狭长型
0.JPG



吸引我注意力的是墙上那一面鸡蛋壳光泽和质感的墙漆,原谅我手机拍不出那个质感
1.JPG



本杰明摩尔现在能够调出3500种不同的颜色,每一个颜色除了一个编码以外,还有一个与之对应的英文单词。
2.JPG



3.JPG



有关环保性方面,我们也不用列举什么证书和数据了,没那个时间去整理,我们只要知道一个事情:美国白宫用的油漆是本杰明摩尔的。
如果以上信息还不能够吸引你,那么我们来玩一个游戏。
这是我客厅效果图里面墙漆的颜色:
218.238.jpg



如果我要去油漆店调色,我怎么去做找出一模一样的效果? 你肯定会说,去油漆店对比色卡吧? 对比色卡受光线和个人主观判断的影响。更何况,有些时候,油漆店色卡还是脏兮兮的。。。。。。
现在,本杰明摩尔提供了另外一种方式:
IMG_9564.PNG



我只要简单操作一下手机app,就可以轻易知道这个颜色对应的本杰明摩尔色彩名称和编号。

如果这还不够吸引力,那我们再来做一个简单的游戏。
假如,我们手头有一张很喜欢的家装照片,我们想分析一下这张照片的配色方案,然后把它应用到以后的软装配色之中来。
我们可以这么做:
IMG_9547.PNG


通过这个软件,我们可以知道图片中最主要的几个颜色分别是什么。自己去做软装搭配的时候就心里有谱了。
更进一步的,如果你有特别喜欢的艺术作品,也可以试着把他们的颜色提取出来。
比如说,下面这幅莫奈的日出
1.png


想模仿他的配色方案吗?提取出来就好了
2.PNG

a2.PNG


a3.PNG


a4.PNG


a5.PNG


我们参考这些颜色去搭配软装,应该不会差到哪里去了



回复 收藏 回复(1)条

使用道具 举报

267

帖子

0

原创值

967

金币

大三_装修里手

Rank: 3Rank: 3

积分
134
发表于 2016-08-07 09:44:55 | 显示全部楼层
本杰明摩尔?价格漂不漂亮?
回复 回复(1)条

使用道具 举报

888

帖子

0

原创值

946

金币

大四_装修达人

Rank: 4

积分
472
 楼主| 发表于 2016-08-07 21:09:46 | 显示全部楼层
有暗香盈袖 发表于 2016-8-7 09:44
本杰明摩尔?价格漂不漂亮?

标价比芬琳差不多,但是他们没有铺开长沙的市场,希望有人能够去策一策,开个团。
回复

使用道具 举报

888

帖子

0

原创值

946

金币

大四_装修达人

Rank: 4

积分
472
 楼主| 发表于 2016-08-08 10:23:53 | 显示全部楼层

插座开关数量已确定

记录一下,给自己备用:
一开双控:3个
一开单控:4个
二开双控:3个
二开单控:2个
三开双控:不知
三开单控:3个
五孔插座:65个
五孔带开:10个
电视插座:3个
电脑插座:6个
空调插座:4个
白板:3个
地漏:5个
角阀:15个
5公分加长螺丝:60粒


回复 收藏

使用道具 举报

888

帖子

0

原创值

946

金币

大四_装修达人

Rank: 4

积分
472
 楼主| 发表于 2016-08-09 20:20:59 | 显示全部楼层

准备做餐厅效果图了

本帖最后由 littleboy 于 2016-8-11 22:02 编辑

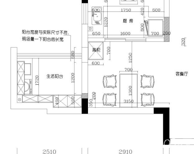
我的主卧效果图据说今天或者明天可以出来了,下一步计划做餐厅的效果图。先来看看我的餐厅布局。

9.jpg




实景是这样的:
实景1.JPG



实景2.JPG



实景3.JPG



实景4.JPG



餐厅和外面的生活阳台我需要做一张门,因为我的生活阳台没有做地暖,所以必须要隔断一下,不然房间温度上不来。门的朝向是餐厅这边,我知道这可能会挡住餐厅这边的行动,但是如果门的朝向往外的话,开门会挡住风,同时也会妨碍晾晒。
我打算做一张子母门,子门在左边,遮住一下外面柜子的见光面。
款式参考下面的
























为了精确做效果图,我需要把砌墙后的体积量准一点:
1. 从餐厅往生活阳台看,左边一个墙垛子宽度是35cm
餐厅看生活阳台左边.JPG



2. 生活阳台门洞宽度1.4m
生活阳台门洞.JPG

3. 门洞高度236cm


4 餐厅往阳台看,右边墙垛子宽度82cm
餐厅看生活阳台右边2.JPG



5. 餐厅看厨房左边墙垛子宽度70cm
厨房左1.JPG



6. 厨房门宽度忘记量了

7. 厨房门到梁高度251cm

8. 餐厅看厨房右边墙垛子宽度80cm
厨房右.JPG






回复 收藏

使用道具 举报

888

帖子

0

原创值

946

金币

大四_装修达人

Rank: 4

积分
472
 楼主| 发表于 2016-08-11 11:05:06 | 显示全部楼层
本帖最后由 littleboy 于 2016-8-11 22:06 编辑

昨天下午,老邹介绍的工厂老板来长房参观了一下,并且到我的房子里面量了一下尺寸。给了我一些建议,可惜忘记给他们拍照了。最重要的一条是,我们生活阳台那里的子母门换成了双平开,门朝餐厅方向。
这样比子母门占用的开门空间要少一些,也不会挡住生活阳台的风。只是生活阳台那里的柜子就要露出一点见光面了。希望老邹家木工能够把见光面做得美丽一些吧。高度为236cm的门洞,做什么样的门合适呢?普通的双平开太高了,只能在上面安装一个摇头。我比较喜欢正正方方的。

1.jpg


2.jpg


5.jpg


6.jpg


但是老婆喜欢带点弧度的摇头,暂时还没有找到很美貌的参考图。

回复

使用道具 举报

270

帖子

0

原创值

401

金币

大三_装修里手

Rank: 3Rank: 3

积分
140
发表于 2016-08-11 22:53:01 | 显示全部楼层
littleboy 发表于 2016-2-19 13:18
之前说过,我家有一个开放式厨房,我想用三个抽油烟机搭配使用的办法来解决油烟问题。
现在分享一下我的初 ...

这个太棒了,我家也是开放式,正在纠结油烟问题,
回复

使用道具 举报

您需要登录后才可以回帖 登录 | 立即注册

本版积分规则