QQ登录    

08我家网

2023兔年大吉

松下pm2.5系列250风量新风机24小时开机1个多月后滤芯对比及用电量

  [复制链接]

291

帖子

0

原创值

588

金币

大三_装修里手

Rank: 3Rank: 3

积分
158
 楼主| 发表于 2016-05-10 13:18:10 | 显示全部楼层
mishra1948 发表于 2016-5-10 11:31
厨房不安装门,会不会难得打扫卫生呢?虽然这样看起来很漂亮。但是中餐和西餐最大的区别在油烟的多少。

所以我选择用集成灶,集成灶的吸油烟率比传统吸油烟机要高一些。应该没这么多油烟。
况且我家在饮食上应该没有那么经常性地需要爆炒啊什么的。
再加上之前的厨房是有门的,但是关起来的时间真的比一直开着的时间少的多。
加个厨房推拉门也要几千块呢。
所以,综合美观、金钱、习惯、硬件上来考虑选择了开放性厨房
回复 回复(2)条

使用道具 举报

291

帖子

0

原创值

588

金币

大三_装修里手

Rank: 3Rank: 3

积分
158
 楼主| 发表于 2016-05-10 14:07:13 | 显示全部楼层
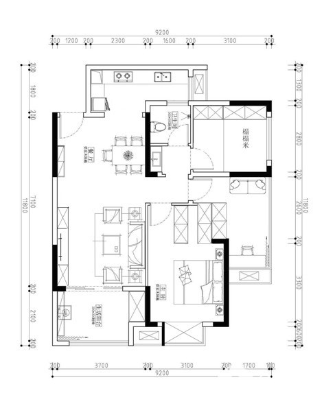
2.3-----关于布局的设想(下)


继续讲上次提出的布局设想后的更改


1.厨房和小阳台间的门窗到底要不要敲掉:
最开始的设想是打通,但是又觉得卫生间窗对着厨房不好
有群友给我提意见是,把原有的门窗敲掉,推出去一点,到卫生间的窗的位置加个推拉门,水槽继续放外面阳台
这样既能够隔开卫生间的湿气和污气,又不阻碍行动,就是敲墙要钱,装个推拉门也要钱,预算会高上去点
本来我已经决定采用这个建议,但是橱柜公司来量尺后,提出这个方案不行
因为尺寸限制,如果再装推拉门的话,集成灶和推拉门之间的距离不方便切菜备菜
如果我选择的是传统烟灶的话,选择的余地会比较多,这也是选择集成灶的一个不好的地方,比较挑位置
最后的结果就是打掉

2.冰箱的位置:
本来打算是贴卫生间墙放置,但是橱柜公司提出,本来厨房那一侧过道就比较窄了,再加个冰箱,会显得过道更加狭长
并且冰箱要移出来一点才好放,这样的话就必须敲掉那一部分门垛,就不好做门套了
冰箱只能放燃气表旁边了

3.洗碗机的位置:
还是在窗下的位置,也只有那个位置能放了

4.热水器的位置:
水槽上面

5.新风主机的位置:
南面阳台,只能放这个位置了,厨房那里是废气排放的地方
这样的话,阳台必须吊顶,层高有点矮了啊,晾衣服好像不方便了啊

6.鞋柜的位置:
靠墙

7.电视机的位置:
还是决定放在进门对着那面墙,如果沙发放这边的话,会挡住一部分推拉门,尤其是转角沙发


8.次卧衣柜的位置:
靠外墙放,而不是卫生间墙,这样做一整面墙的衣柜,空出空间,就算以后要加个书桌都可以

9.主卧衣柜:
敲墙,往空中花园那边扩一点,中间用柜子隔开,做一个衣帽间


最后的布局图定稿是这样的:
布局图最新版压缩.jpg


回复 收藏 回复(1)条

使用道具 举报

162

帖子

0

原创值

317

金币

大三_装修里手

Rank: 3Rank: 3

积分
81
发表于 2016-05-10 14:23:17 | 显示全部楼层
贰叁叁 发表于 2016-5-10 13:18
所以我选择用集成灶,集成灶的吸油烟率比传统吸油烟机要高一些。应该没这么多油烟。
况且我家在饮食上应 ...

有机会去实地学习下~
回复

使用道具 举报

1万

帖子

0

原创值

9605

金币

论坛元老

掰子姐

Rank: 15Rank: 15Rank: 15Rank: 15Rank: 15

积分
11275

吃货社区居民社区明星忠实会员最爱沙发新人进步奖幽默大师奖贴图大师奖原创先锋奖金点子奖特殊贡献奖宣传大使奖优秀斑竹奖终身成就奖灌水天才奖社区劳模原创达人

发表于 2016-05-10 14:45:35 | 显示全部楼层
关于装修公司部分分析得很有道理呀,其实所谓网络装修公司就是主要推广途径在网络,比较了解经常上网学习装修知识网友的需求,知道网友没那么容易忽悠,相对实在一些~~
回复

使用道具 举报

2392

帖子

0

原创值

3083

金币

装修大学_研究生

Rank: 5Rank: 5

积分
1274
发表于 2016-05-10 14:47:02 | 显示全部楼层
QS没怎么深入去了解,就是顺便去看了下工地,都已经入住了,看不出太多的东西,感觉木工也一般般的样子
并且QS好像都是做别墅啊、大户型的,我问了下做不做小户型,回答是“做啊,我们就有做120的小户型啊”
我一听,我这90多一点点的岂不是小小户型了

-----------呵呵,写贴很难整吧
回复

使用道具 举报

17

帖子

0

原创值

42

金币

大一_装修新生

Rank: 1

积分
9
发表于 2016-05-10 14:52:52 | 显示全部楼层
跟着学习一下,后期用得上。楼上加油
回复

使用道具 举报

194

帖子

0

原创值

279

金币

大三_装修里手

Rank: 3Rank: 3

积分
114
发表于 2016-05-10 14:58:57 | 显示全部楼层
没有弘扬和点石吗
回复 回复(1)条

使用道具 举报

242

帖子

0

原创值

747

金币

大三_装修里手

Rank: 3Rank: 3

积分
136
发表于 2016-05-10 15:01:31 | 显示全部楼层
学习学习,谢谢楼主分享
回复

使用道具 举报

291

帖子

0

原创值

588

金币

大三_装修里手

Rank: 3Rank: 3

积分
158
 楼主| 发表于 2016-05-10 15:37:27 | 显示全部楼层
tt197 发表于 2016-5-10 14:58
没有弘扬和点石吗

其实传统装修公司我一开始是完全没有考虑的。
MJ完全是撞上来的。
HY的话,我知道,价格贵。所以完全没有去考虑。
DS的话,群里吐槽比较多。貌似更坑。
回复 回复(1)条

使用道具 举报

194

帖子

0

原创值

279

金币

大三_装修里手

Rank: 3Rank: 3

积分
114
发表于 2016-05-10 15:44:44 | 显示全部楼层
贰叁叁 发表于 2016-5-10 15:37
其实传统装修公司我一开始是完全没有考虑的。
MJ完全是撞上来的。
HY的话,我知道,价格贵。所以完全没 ...

点石到底有多坑啊,我选的就是点石半包,而且选点石的不在少数嘛
回复 回复(1)条

使用道具 举报

您需要登录后才可以回帖 登录 | 立即注册

本版积分规则