QQ登录    

08我家网

2023兔年大吉

【2017日记大赛三等奖】欢乐颂—173、2020年地暖取暖数据

  [复制链接]

462

帖子

0

原创值

1264

金币

大四_装修达人

Rank: 4

积分
231
发表于 2017-04-01 09:48:33 | 显示全部楼层
看看终极秘籍
回复 回复(1)条

使用道具 举报

16

帖子

0

原创值

58

金币

大一_装修新生

Rank: 1

积分
8
发表于 2017-04-01 10:52:47 | 显示全部楼层
学习学习学习
回复 回复(1)条

使用道具 举报

3395

帖子

0

原创值

4344

金币

荣誉版主

积分
1891
发表于 2017-04-01 10:54:41 | 显示全部楼层
欢乐颂-乐妈 发表于 2017-3-29 14:43
昨天我家水电验收,发现了几个好玩的设计,很有心思,供大家参考:
      1、锅炉燃气管预埋,同时 ...

记忆中打斜孔是要额外加钱的吧?现在什么行情?
回复 回复(1)条

使用道具 举报

1298

帖子

0

原创值

2986

金币

装修大学_研究生

Rank: 5Rank: 5

积分
671
发表于 2017-04-01 12:46:48 | 显示全部楼层
回复 回复(1)条

使用道具 举报

3461

帖子

50

原创值

3473

金币

装修大学_博士生

Rank: 6Rank: 6

积分
1767
 楼主| 发表于 2017-04-01 15:03:49 | 显示全部楼层

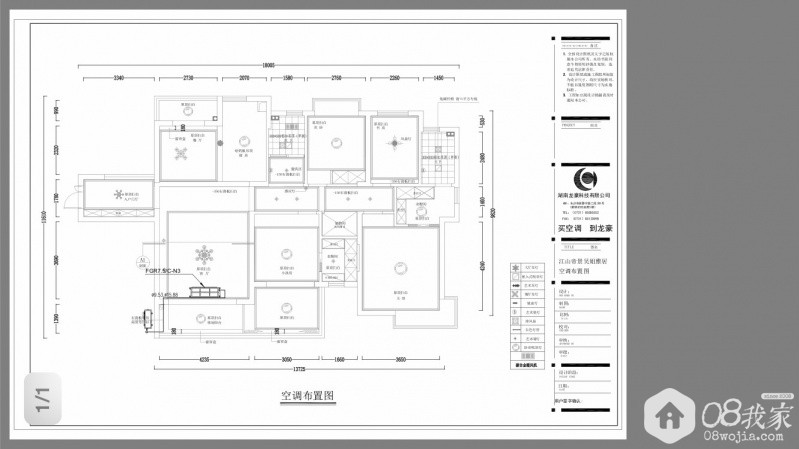
50、安装篇:格力风管机安装

本帖最后由 欢乐颂-乐妈 于 2017-4-3 17:33 编辑

    我的装修日记第30篇已写过我曾纠结于如何选中央空调,但多方学习、了解过后直接做了放弃装中央空调的决定,原因是我家常住人口少,同时开两台以上的空调机率不多,从能效上来说我家装中央空调不划算,美观上我和老公沟通过后都可以接受房间挂壁挂机。            好啦,解决完中央空调的纠结,又要开始做选择题,一是装什么品牌的空调?二是选择哪家公司来装?三是装柜机+壁挂机,还是风管机+壁挂机?格力空调知名度国内最高,但中央空调选它不是最佳选择,但柜机、壁挂机格力在全世界范围来说也可以说是一流的,能用国货的东西,我还是支持国货。二是如何在遍地开花的格力销售公司中选取一家做方案也曾让我头晕,但由于工作的便利我认识一家为我们单位做了快二十年机房空调供货的供应商,正在我发晕之时,在办公室相遇,于是乎直接与他们公司销售联系、沟通。与销售的第一次见面也是直接在房子里,因为他要量房,出图,做预算!很正规吧!来看看他为我家出的设计和报价。
安装 013_meitu_10.jpg
安装 014_meitu_11_meitu_1.jpg


       这份报价包含了很多信息,第一,销售直接建议我装风管机,因为他去了我家现场,认为我60平的客厅与餐厅之间无梁,风管机装在图中这个位置最好;第二,我在纠结风管机与柜机之时,他建议用风管机,因为给我配的风管机匹数够大,够用,美观;第三,我担心一台大3匹风管机制冷效率不够,是不是餐厅与生活阳台门之上还装个风管机,销售小彭不建议装,原因很简单:姐姐,好多装了的都不用,您也就别装了,无非是天热时,开26度没感觉,那就下调至24度,再不行就22度,也比您装两台,一台永远不用好!看, 居然有不多推商品的销售,我的运气的有多好!遇到这样的销售什么都别多说了,签合同,付款吧!注:格力的价格体系很透明,加之给我的价直接看上表,很公道了。我需要的是靠谱的安装和售后,这家公司我也不多说,安装、售后非常专业,专做运营商的机房快二十年,不专业怎么能生存这么久呢!
        3月28日我家水电验收后,直接联系空调送货,29日空调送货到位现场支付余款。约好31日来安装,风管机安装时业主一定要到位,因为空调内机要定位,装多高也有讲究,要与你的吊顶设计相符,为此我现场打电话给晓斐和老卜与安装师傅沟通确定后再装。来装空调的师傅有4人,分工合作,效率很高,现场定位内机、调温线控、洞口,尽量做到让我满意,其实我也不懂,但看热闹也能看出他们的专业,因为施工规范,走线整齐。完成安装后,师傅交待我两件事:第一,出风口做多大,他已经量好、写好并贴在内机上了,请木工照此尺寸做(出风口:1190*150;回风口:1800*350),木工完工后,请通知他来量尺制做出风口;第二油漆完工,通知他来装出风口和安装线控。我又遇到了一位超级专业的安装师傅,人品暴发呀!
安装 008_meitu_7.jpg
安装 007_meitu_6.jpg
空调安装效果图_meitu_13.jpg
] 出风口尺寸_meitu_2.jpg


      附上我选择的格力空调销售公司及其销售员小彭的电话,真心感谢他们的专业服务。唯一美中不足:走时没带上部分垃圾,让老卜策我要提醒一下安装师傅不。龙豪公司,小彭:15673341998。
      

回复 收藏 回复(1)条

使用道具 举报

3461

帖子

50

原创值

3473

金币

装修大学_博士生

Rank: 6Rank: 6

积分
1767
 楼主| 发表于 2017-04-01 15:11:04 | 显示全部楼层

没有秘籍,只有纠结过、走过的路
回复

使用道具 举报

3461

帖子

50

原创值

3473

金币

装修大学_博士生

Rank: 6Rank: 6

积分
1767
 楼主| 发表于 2017-04-01 15:11:37 | 显示全部楼层

不客气,欢迎来踩帖
回复

使用道具 举报

3461

帖子

50

原创值

3473

金币

装修大学_博士生

Rank: 6Rank: 6

积分
1767
 楼主| 发表于 2017-04-01 15:12:31 | 显示全部楼层
易匹马 发表于 2017-4-1 10:54
记忆中打斜孔是要额外加钱的吧?现在什么行情?

没加我钱,总共打了14个洞,收了350元钱
回复 回复(1)条

使用道具 举报

3461

帖子

50

原创值

3473

金币

装修大学_博士生

Rank: 6Rank: 6

积分
1767
 楼主| 发表于 2017-04-01 15:13:06 | 显示全部楼层
郁郁 发表于 2017-4-1 12:46
http://www.08wojia.com/thread-116182-1-1.html
开贴

已去踩帖,我们一起加油吧
回复

使用道具 举报

3395

帖子

0

原创值

4344

金币

荣誉版主

积分
1891
发表于 2017-04-01 15:16:09 | 显示全部楼层
欢乐颂-乐妈 发表于 2017-4-1 15:12
没加我钱,总共打了14个洞,收了350元钱

嗯,25块钱一个孔是比较实惠的了
回复 回复(1)条

使用道具 举报

您需要登录后才可以回帖 登录 | 立即注册

本版积分规则