|
楼主 |
发表于 2017-01-03 22:34:40
|
显示全部楼层
【地砖铺贴】瓷砖铺贴第1天,深刻体会到装修是门大学问,且装且学习
本帖最后由 五月五日晴 于 2017-5-7 21:17 编辑
2016年12月31日,地砖正式开贴了!
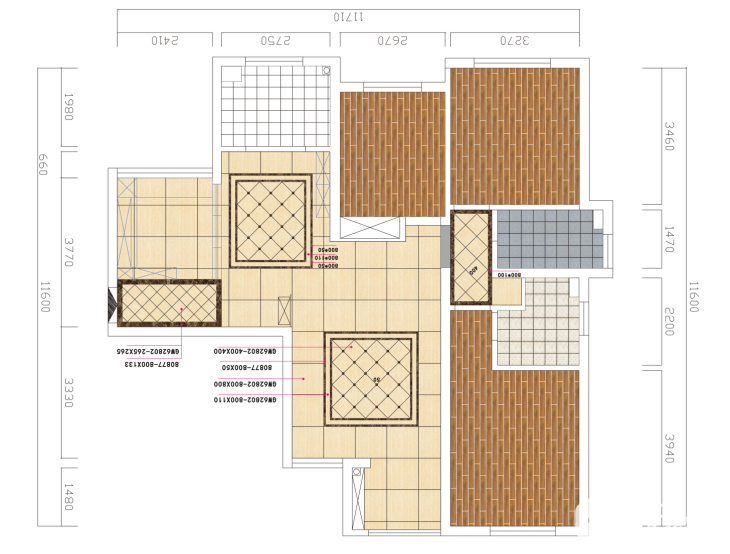
我家全屋都是冠珠的瓷片和木纹砖,客厅餐厅有四处拼花,见下图。
12月31日开工第一天下午,师傅便发微信来,说入口处拼花波打线少一条,而且有一块三角板方向纹路不对。另外,客厅餐厅的拼花有一部分砖,加工厂切错了,方向纹路都不对,让我们马上去现场看下。
顿时觉得,装修真不容易啊!第一天就出问题!!
人在醴陵,立刻马不停蹄的往长沙赶,赶到工地都晚上6点了,和师傅沟通了一下,决定第二天先贴客房。
另人气愤的是,给商家打电话,导购不承认错误,态度很不好,说话比客户还大声。
因为我们收货时,把货款全部结清了,商家态度也变了。
深深的体会到:装修是门大学问,水太深,知识点太多了,且装且学习!
2017年1月1日晚上,老公从杭州提前翘会回来,和工人一起把客厅餐厅拼花预铺,真是超超超郁闷,拼花加工切角错误,方向纹路不对。
晚上10点半,给导购打电话,让她约设计师明天上门到现场来看,在电话里和她扯不清楚。
下面是切错的拼花:
1月2日早上9点,商家设计师到现场看,然后,把切错的砖带走了,24片,下午重新送来。
1月2日下午,商家打电话来说,下午送不过来,要等1月3号早上送来。
贴砖师傅发来微信说,三个卧室总共少26片木纹砖,要补货。真是一波未平,一波又起!这样补下来,全房瓷砖2W挡不住了。
1月2日晚上,数学好的老公,又从头到尾,自已核算了开料单。原来加工切剩下的有些余料,可以再利用的,但加工厂都没有给我们送过来。
1月3日早上,重新加工的拼花送到工地。和导购联系,发给她看我们计算的开料单,她核对了一下,承认余料是没有送来,而且多出的有一整片客厅整砖也没给我们。
深深的套路啊,如果我们不提,估计也不会给我们,不够的砖,我们最后又要再补货了
1月3日晚上,下班后去看工地,餐厅拼花贴好了,果然感觉不一样,稀饭稀饭啊!心中的阴霾渐渐散去!
上图,哈哈!
|
|