QQ登录    

08我家网

2023兔年大吉

预算20万,只能亲自动手施工,DIY装修256平花园洋房(上)

  [复制链接]

1390

帖子

0

原创值

3258

金币

装修大学_研究生

Rank: 5Rank: 5

积分
741
发表于 2017-06-29 00:58:19 来自手机 | 显示全部楼层
香颂26 发表于 2017-06-29 00:35:13
【33、设计:自己的家自己设计,才能最符合自己的需求,八室两厅布局初步定稿】

虽说房子只有160多平,但 ...

我找个图片给你看,我家的公卫现在放的就是这种,一般都是老人在用这个厕所,是直通蹲便器下水的,实际看起来也没有违和感的。 824826.jpg
回复

使用道具 举报

1604

帖子

300

原创值

1787

金币

装修大学_研究生

Rank: 5Rank: 5

积分
1219
 楼主| 发表于 2017-06-29 01:44:49 | 显示全部楼层
天亮宝宝 发表于 2017-6-29 00:54
颂,你妈妈那里没有必要弄马桶和蹲便器两种呀,弄蹲便器就可以了,现在有一种活动的塑料马桶,200多块, ...

我妈要用智能马桶盖的……
回复

使用道具 举报

1322

帖子

0

原创值

2554

金币

装修大学_研究生

Rank: 5Rank: 5

积分
666
发表于 2017-06-29 09:44:24 | 显示全部楼层
拜读下文章哈
回复

使用道具 举报

1604

帖子

300

原创值

1787

金币

装修大学_研究生

Rank: 5Rank: 5

积分
1219
 楼主| 发表于 2017-06-29 09:46:30 | 显示全部楼层

34、设计:长达8米的过道,入户门直对卧室厕所区域,拦腰砍断一举三得

本帖最后由 香颂26 于 2017-6-29 12:21 编辑

【34、设计:长达八米的过道,入户门直对卧室厕所区域,看我拦腰砍断它!一举三得】

一楼进门这个12.5平的走廊被我拦腰截断,在中间硬是加进去一个衣帽间。从而将狭长的走廊分割成了玄关和过道两部分。这样设计是一举三得:
1、进门不再直对着卧室与卫生间开门处,而是拥有了一个阻挡视线的玄关(照壁?)。
2、动区与静区彻底分开了,客餐厅、厨房、书房、阳光房这些都是动区,日常活动会发出声音,并且不会有隐私问题的,都靠近入户大门这一侧;而睡眠与盥洗这些静区,对安静和隐私有要求的,都需要通过客厅与衣帽间形成的这个拱门进去。
3、新增加的衣帽间为一家人提供了足够的换季衣物存放处。
过道.jpg
下面放点参考图片。。。
走进大门看到的类似下图这样,迎面一个遮挡视线的照壁,左侧是个门洞通向客厅
过道07.jpg




但其实我想要玄关照壁做成是全封闭的,而不是上图那样镂空的。可能这样,做块板子上面放个花瓶,再用墙饰和点光源营造点效果
过道01.jpg




或者这样,做一个墙裙防猫狗抓刨,上面再挂画打灯
过道06.jpg




进门后左手边墙体敲掉做个窄鞋柜+换鞋凳,不会像下图这样复杂,主要还是实用为主,以抽屉和放包的柜子为主。
过道02.jpg




换鞋凳背后做下图中这样的花式铁艺隔断,或者别的什么隔断,总之能透光过来但又不让猫狗窜过来的。
过道05.jpg



进门右手边是厨房,同样敲掉墙,墙洞的下半截做鞋柜,上半截空着,像下图这样,有一个与厨房连通的窗口
过道04.jpg



而这个窗要安装百叶玻璃窗,炒菜时可以关上窗免得油烟出来。从玄关看过去就是这样的,下面是鞋柜,上面是窗扇。
过道08.jpg



回复 收藏

使用道具 举报

1604

帖子

300

原创值

1787

金币

装修大学_研究生

Rank: 5Rank: 5

积分
1219
 楼主| 发表于 2017-06-29 09:55:09 | 显示全部楼层

35、设计:6米厨柜变10米,8平也分中西厨,还要能坐着洗菜切菜哦!

本帖最后由 香颂26 于 2017-6-29 12:50 编辑

【35、设计:6米厨柜变10米,小厨房里折腾出中厨西厨分离的设计,对开冰箱蒸箱烤箱洗碗机都要有!】

厨房与生活阳台打通后,原本占用4.5平的过道向右平移,左边腾出了足够的空间来放置一系列厨电与操作区。这样设计达到了我以下几个目的:
1、中西厨尽可能分离:冰箱、蒸箱、烤箱、洗碗机等无油烟电器都放在左侧L型的西厨区域,而日常炒炸等有油烟的操作则集中在右侧凹形的中厨区域。以后说出去姐也是家里分了中厨西厨的人啦~
2、尽可能增加厨房操作台面:原本中厨这边的台面虽多,但放了电饭煲等常用电器后,实际可以用来择菜切菜装盘的备餐区域其实并不大,这样一调整,小家电统统挪到左侧西厨台面去了,右边中厨台面就全是纯粹的操作空间,立马变得好用起来。(3.5米西厨台面+0.6米高柜+5米中厨台面+1.7米超窄台面=10.8米厨柜=。=钱啊钱啊全是白花花的银子啊)
3、超窄台面下面不做柜子,悬空设计一排可抽拉的挂篮,可以放不必进冰箱存储的菜,挂篮下还可以放一把高脚椅,方便老人长时间备餐时坐着轻松些。

另外还有些小细节:
★ 选择超薄对开冰箱,厚度不足66公分,配合打掉一部分的墙体,冰箱可以刚好与高柜平齐,不会显得凸出来一大块。
★ 所有能做吊柜的地方都做吊柜,薄吊柜使用收纳得,厚吊柜使用联动收纳得,提高吊柜的空间利用率
【收纳我支招】矮个子专用收纳神器大推荐!让厨房吊柜和衣柜顶部也变成常用空间!
★ 厨房门洞仅有1.4米,做两扇推拉门的话仅有70公分供人出入,太窄了,因此改做三轨联动推拉门,打开后能有90多公分的宽度,足够一人双手端着火锅出入。
★ 鞋柜上方打通做玻璃百页窗,增加中厨区域的采光亮度,又能很好的阻挡油烟进入玄关。
厨房.jpg

下面晒我意向中的参考图片:
首先是中厨部分,中厨与玄关相邻处是这样的采光窗,这一长条厨柜全是操作台面,厨房背后是比厨柜高一点的鞋柜
厨房01.jpg


但这个窗子我可能会做更有逼格一点的百页窗(如果到时候钱够的话),那么从厨房往外看时,百页窗全打开是这样的
厨房01-1.jpg


这个窗前的厨柜我准备留一部分下面不做柜体,放把椅子,这样可以让老人坐着择菜切菜
厨房07.jpg



而西厨部分就如下图所示,左边一个高柜,右边一溜操作台面,放各种厨房小电器。
厨房06.jpg



然后吊柜与地柜之间,我有想法搞这种医用抗菌板来覆盖在瓷砖上,耐磨抗冲击又好搞卫生。已经托人帮我问去了。颜色据说有很多木纹可以选择。
厨房08.jpg


再就是一些厨房的小细节了,在做厨柜前要想好的。
一是水槽下的柜体做个这样的超级小翻板柜子,柜里是可沥水的,反正瓷砖厨柜不怕水嘛。专门放洗碗布
厨房03.jpg


厨房03-1.jpg



二是水槽下方做一个浅抽屉,或者说一块带围边的可抽拉板子,方便拿取各种厨用洗涤剂(爱囤货,没办法)
厨房04.jpg


厨房04-1.jpg



三是零散的勺子筷子放在这样的抽拉筷筒里,不用了关上抽屉,免得落灰,下面也能正常沥水。
厨房05.jpg



回复 收藏 回复(1)条

使用道具 举报

1604

帖子

300

原创值

1787

金币

装修大学_研究生

Rank: 5Rank: 5

积分
1219
 楼主| 发表于 2017-06-29 10:00:43 | 显示全部楼层

36、设计:餐厅三堵墙统统打掉为哪般?一锤解决四个区域的采光问题!

本帖最后由 香颂26 于 2017-6-29 13:21 编辑

【36、设计:餐厅四个方向三堵墙,统统打掉为哪般?一锤解决四个空间的采光问题!】

餐厅的改动主要是为了各种采光,打掉了许多墙体来引入更多光线,并且封掉通向书房的门,餐桌换一个方向而已。
★ 客餐厅之间做一组略高的电视柜,可以兼为餐厅的餐边柜,实现减少餐桌覆盖率的效果
★ 一张大餐桌改为可伸缩餐桌,在满足目前一家三口日常就餐需求的同时,将来添丁进口或请客大餐时,也能拉开换个方向变成八人餐桌。
★ 餐厅与书房之间的墙打掉,改为砌整面玻璃墙(我孜孜不倦的种这个草啊),透光不透影,既增加了餐厅的采光亮度,又营造了美妙的光影效果。
★ 餐厅与楼梯间之间的墙打掉,为地下室的楼梯休闲厅引入一部分光线,白天下楼不必开灯也能看清脚下阶梯。
★ 餐厅与玄关之间的墙打掉,改为开放式换鞋凳,玄关采光也得到了改善,还能引入一部分光线到厨房去。
餐厅.jpg



还是来晒我的参考图:
首先是餐厅入口,客餐厅之间的这个用于隔断的电视柜兼餐边柜非常重要。从客厅那一侧看过来,它是半截电视背景墙,像下图这样的。
餐厅09.jpg




实际上在挂电视机的两侧,它是柜子的形式,里面有格子可以放各种常用物品,如常备药品,零食,猫狗梳子,各种遥控器等
餐厅09-1.jpg




同时我也在考虑要不要把电视机做进柜子里去,外面加个滑动门,这样以后不想让小孩看电视时,把柜门锁上就行了。
餐厅09-2.jpg




而从餐厅这个方向看过来呢,这个电视柜就像一个餐边柜,餐桌一侧靠着它,上面做几个抽屉,平时放餐桌上堆起的杯垫啊牙线啊乱七八糟的东西都往里收纳。下图只是个大概示意,它是靠着电视背景墙的,而我是要靠着电视背景柜的。
餐厅05.jpg




桌面与电视背景柜有个高度落差,这个落差可以装插座,吃电火锅时用。平时也可以边吃饭边给手机充电。我不喜欢地插,因为怕狗拉尿渗进去。
餐厅08.jpg




餐厅与楼梯之间就做这么个简单款式的扶手,太复杂的我做不来,也难搞卫生。下楼梯这一侧的墙上做照片墙好了。
餐厅02.jpg




餐厅与书房间是水晶玻璃砖墙(坚持种草一百年),虽然是整面墙,但不排除我今后在墙边放一排可移动的餐边柜。当然下图因为是工业风所以显得暗,我家亮堂多了。
餐厅06.jpg




柜子就做简单的造型,上面放些常用的水杯啊咖啡茶叶啥的。
餐厅03.jpg




在书房那一侧要不要装线帘或这样的百叶帘我还在考虑,毕竟玻璃砖墙已经很能保证隐私了。
餐厅01.jpg


回复 收藏

使用道具 举报

1604

帖子

300

原创值

1787

金币

装修大学_研究生

Rank: 5Rank: 5

积分
1219
 楼主| 发表于 2017-06-29 10:03:27 | 显示全部楼层

37、设计:书房又是一整面的水晶玻璃砖墙!还要有隐形书架密室门哦!

本帖最后由 香颂26 于 2017-6-29 13:45 编辑

【37、设计:书房又是一整面的水晶玻璃砖墙!还要有隐形书架密室门哦!】

书房改动不大(动了墙还叫改动不大=。=)拆掉原有隔墙改成玻璃砖墙,又重新换方向开了个门,主要为了装逼。
★ 这种空心玻璃砖墙比单纯搞一块磨砂玻璃隔音得多,关上门后,外面的电视声传不进来,里面电脑的看剧声也传不出去。
★ 注意这个门洞,我准备DIY一个书架门,从客厅看起来好像只是一个书架,其实推开它是一个密室(大误!)
★ 1.2*1.8的双人书桌,平时可以两人面对面各玩各的,有需要时把电脑往边上一推就变成一张大书画桌(你有几日会提笔画画?切!)
★ 如果将来生了二胎,又刚好是一男一女性别不同的话,儿子女儿需要分房睡,这间书房就可以改成儿子房(大的那间当然给女儿,女孩衣服多)
书房.jpg



照例上参考图:
玻璃砖墙就不用再上图种草了,种过好多回了。来种个新鲜玩意儿:密室门
看上去像是书架对吧?
书房02.jpg




也确实可以放书
书房03.png




不注意根本不知道这是个房间的门
书房04.jpg




我准备在电视右侧这个书房门,用上这个设计。当然,一如既往的找不到师傅会做,只能自己DIY了。相关教程我已经收集了一箩筐,没有多大难度,只要记得别放太重的书就好了。
书房05.gif




书房里的布局很简单,一整面墙的书柜,一张大书桌,像下图这样摆放:
书房01.jpg




书柜我肯定要顶天立地的做的,上面要不要做这种黑板推拉门,我还在犹豫
书房06.jpg




因为我更想把书柜下半截做成倾斜的,这样无须弯腰也能看到下面是哪些书,下图中这个还不算倾斜,真正的倾斜是放书的横隔板也是斜的才行。
书房08.jpg




最后书房有一面比较窄的空墙面,要么我就放现在已经做好的榆木小书架,要么就贴软木板,做照片展示用。
书房07.jpg


回复 收藏

使用道具 举报

444

帖子

0

原创值

863

金币

大四_装修达人

Rank: 4

积分
227
发表于 2017-06-29 10:05:31 来自手机 | 显示全部楼层
好的,下次我来
回复

使用道具 举报

1604

帖子

300

原创值

1787

金币

装修大学_研究生

Rank: 5Rank: 5

积分
1219
 楼主| 发表于 2017-06-29 10:08:33 | 显示全部楼层

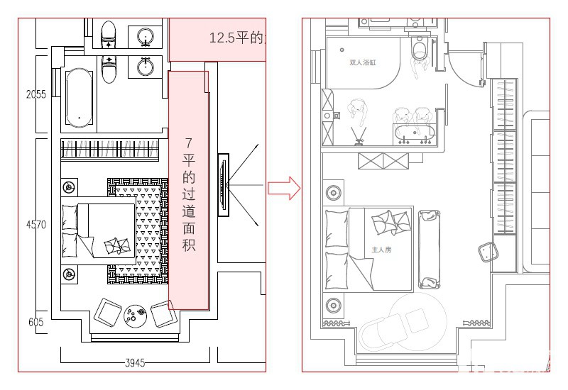
38、设计:主卧既扩大又缩小,面积不变衣柜变多,主卫双人浴缸+淋浴都要有!

本帖最后由 香颂26 于 2017-6-29 15:25 编辑

【设计:主卧既扩大又缩小,面积不变衣柜变多,双人浴缸+淋浴都要有!】

主卧室的改动集中在尺寸上,先是将隔墙向客厅推几十公分,腾出了一整面墙大衣柜的空间,再是将主卫隔墙向卧室推几十公分,扩大了主卫。
★ 过道还在这里,但由于过道右边新增了一长线的衣柜空间,当人站在衣柜前挑衣换衣时,过道就兼具了更衣处的功能。
★ 原本主卧与主卫之间的隔墙这边应该做一线大衣柜,现在这个空间被主卫给吞并了,从而为主卫赢得了宝贵的双洗浴空间,而主卧实际使用面积一点也没有减少。
★ 主卫既有淋浴又有浴缸,还是双人浴缸哦!不,你们这些老司机不要想歪了,双人浴缸是为了方便带崽泡澡的,崽小的时候一个人坐在浴缸里太不安全,稍不注意滑进水里那可不是闹着玩的,而单人浴缸要坐下一个胖妈妈和一个壮宝宝实在是太勉强了。
★ 双人面盆完美解决了两个人同时洗漱的问题,睡前效率提高一倍!
★ 吉博力隐藏式水箱配悬挂式马桶,将不必要的空间浪费减到最低
★ 移墙之后,原本角落里的水管变成卫生间中间,两侧包管时顺便还能做两溜储物格,洗浴用品囤再多也有地方放了!
主卧室.jpg

参考图片:
主卧室沿墙一溜大衣柜,差不多这么长吧,但我不要中间的书架和电视,统统做衣柜。右边的梳妆台也不要这么宽。
做这么多柜子,但里面的分割与外面的柜门款式不要这样的。
主卧01.jpg



而且梳妆台要能在关推拉门时被隐藏起来,避免梳妆镜正对床的风水问题。
主卧02.jpg


但是大衣柜的柜门我还在纠结,一方面我觉得这样纯白的会显得过道亮堂一些,也好搞卫生
Screenshot_2017-06-29-14-29-14.png

(这是落地的)

Screenshot_2017-06-29-14-25-08.png

(这是不落地的,下面留一条长槽我在想放啥用?给猫睡觉吗)

但另一方面我又被原木柜门或KD板柜门的纹路所吸引

Screenshot_2017-06-29-14-35-20.png

(这是KD的)

Screenshot_2017-06-29-14-52-32.png

(这是水曲柳原木的)


追求逼格的人肯定要吉博力隐藏水箱+壁挂式马桶,这一点我从未犹豫过。我讨厌马桶与地砖接触那一圈打的玻璃胶,哪怕是防霉玻璃胶我也不喜欢。生生造成了卫生死角。悬空的马桶下面才好搞卫生,拖地机器人进去转一圈就行了。
主卫03.jpg



面盆前用镜子还是镜柜,这是个问题,用镜子就可以用电子防雾镜,不起雾这一点很重要,有时候洗完澡想抹个脸啥的,雾蒙蒙的都看不清。镜柜好像暂时还没见到有用电子防雾镜的,难道要自己DIY么。难倒不难,和倒车镜的防雾原理一样,背后有片加热膜。
主卫04.jpg

(图中方镜子背后贴了一块圆形的防雾膜,通电后圆形区域就没有雾了)


面盆我的要求比较奇怪,我要两人能同时洗漱,要两个水龙头,这样才能一个手动龙头,一个感应龙头。但又不要双盆的。因为双盆的话每个盆都很小,我想要大盆大盆大大盆。最后在宜家找到这款,可是只有1米宽。哪位同学有发现这种类似的单盆双龙头浴室柜或面盆,长度超过1.1米的,烦请告知啊,多谢啦~
主卫05.png






回复 收藏

使用道具 举报

1604

帖子

300

原创值

1787

金币

装修大学_研究生

Rank: 5Rank: 5

积分
1219
 楼主| 发表于 2017-06-29 10:10:12 | 显示全部楼层

39、设计:老人住的房间要注意担架和轮椅能顺畅出入哦!

本帖最后由 香颂26 于 2017-6-29 16:03 编辑

【39、设计:老人住的房间要注意担架和轮椅能顺畅出入哦!】

长辈房是唯一没有动过格局的房间了,次卫都移了下门洞(这么看我还真是个拆砌狂啊)
★ 完全能放得下1.5米床的空间,应我妈强烈要求改为1.2米床,这样床边就能腾出空间放1米宽的书桌。我妈非要把现在用的书桌搬新房子去用,理由是这张书桌买了还不到一年,怎么能舍弃呢?
★ 凹窗处我妈要求放缝纫机……好吧,爱放啥放啥,虽然我觉得这里放书桌更合适,但是谁的房间谁做主……
★ 床头柜处预留各种插座和设备,将来有需要的话,把书桌搬走,床转个方向靠墙放,这里能插许多医疗设备(包括但不仅限于呼叫器、制氧机、电动医疗床、自动翻身气垫等等)
★ 所有门洞和过道的宽度,都经过精确计算,确保救护担架、轻便轮椅能够畅通无阻。
★ 尊重老人的要求,次卫既安装蹲便器,又安装座便器。老人可以自由选择是在腿脚不便时使用座便,还是大便不畅时使用蹲便。
★ 次卫洗漱台下会设计一个抽拉式垫脚台,以便将来小孩可以独立洗漱。
长辈房.jpg


参考图又是一大堆
首先是老人需要的,地脚感应灯,只需预留电源底盒即可安装,人走过来自动亮,人离开了过会儿灭。老人要起夜,从床到次卫生必须有这个。
老人房01.png



再就是次卫的儿童踏板,这就得定制浴室柜了,好在我自己会做。麻烦点而已。
柜子本身很普通,最下面一个像抽屉一样的,其实就是踏板。
次卫06.png




踏板抽出来之后,小孩站上去,就能够得着洗脸盆了。
次卫02.png




而且这个踏板还能掀开,里面可以放东西,我准备放给猫狗剪指甲啊剃毛的工具。
次卫03.png




然后浴室柜的侧面,做成向侧面开口的格子,用来放浴室清洁剂等用品。
次卫08.png




次卫空间小,所以上面只能做镜柜了,里面留插座,隔板开个圆孔,好放电吹风。
次卫04.png




要用的时候电吹风直接拿出来就能用。
次卫05.png




另外,座便器边上要不要安装USB充电插座和放手机的搁板,我还在犹豫中。。。
次卫07.png


回复 收藏

使用道具 举报

您需要登录后才可以回帖 登录 | 立即注册

本版积分规则