QQ登录    

08我家网

2023兔年大吉

预算20万,只能亲自动手施工,DIY装修256平花园洋房(上)

  [复制链接]

1604

帖子

300

原创值

1787

金币

装修大学_研究生

Rank: 5Rank: 5

积分
1219
 楼主| 发表于 2017-07-19 13:04:57 | 显示全部楼层

54、空调:告诉你256平复式洋房每月空调电费只有500元是怎么做到的?

本帖最后由 香颂26 于 2020-4-15 12:55 编辑

【54、空调:告诉你256平十室三厅每月空调电费只有500元是怎么做到的?】

节能是个永远的主题,但我并不一味追求极致的节能。不花钱白吹空调那是不现实的,只要使用费在我能接受的范围内就OK。
前面@yangfan 同学说到,多联机比全房风管机更节能。就我在暖通行业的实操经验来看,在某些情况下是这样的没错。
但放在我家这种大面积、少人口、部分房间使用率极低这个情况来看,其实全房多联机并非是最节能的选择。
我家虽有八个常用房间加两个常用厅,但大部分时间屋里拢总三个人,就算客厅坐一个,书房坐一个,健身房坐一个,也只有三台内机要开起。
如果我装了多联机(一拖九),那九台内机总冷量达到了32500w,就算超配125%,也需要一台至少10匹的外机(10匹的外机有26000w冷量)
QQ图片20170719124442.png

这意味着什么?意味着哪怕只有我妈一个人在家开她卧室那台1匹的空调内机,这台巨大的10匹外机也得在运转,随他哦斯一级能效,随他哦斯变频节能,它的耗电量也不可能低至每小时0.6度呀!

而到了年节家里来客的时候,由于外机总冷量只有26000w,九台内机中我可能最多同时开七台……要是全开了,效果就不如人意了……

因此,我家选择了客餐厅一台大3匹变频风管机,地下室三个房间都是1.5匹的定频风管机。
三个卧室和一个书房都是一级能效的变频挂机,厨房一台定频的小厨星。
这样搭配起来,我家可以做到每月空调电费仅花500元!

想知道怎么做到的吗?

【客餐厅】
KFR-72T2W/BP2DN1-TR:制冷功率2720W
每小时2.72度电,每天开4小时本应耗电10.88度,考虑到变频+房屋保温好,实际节能至少25%以上,按每天实际耗8度电来算,一个月就是240度

【健身房】
KFR-T2W/D-TR:制冷功率1320W
每小时1.32度电,每天开1小时,一个月就是40度电

【影音室】
KFR-T2W/D-TR:制冷功率1320W
每小时1.32度电,每周末看两场电影,每场电影按120分钟时长算,一个月就是21度电

【手工房】
KFR-T2W/D-TR:制冷功率1320W
每小时1.32度电,每周末玩半天左右,一个月也差不多是21度电吧

【厨房】
KF-26GW/Y-CF2(R3):制冷功率815W
每小时0.815度电,每天中午晚上做饭各1小时,每天就是1.63度电,每个月49度电

【主卧室】
KFR-35GW/WXDA1:制冷功率860W
每小时0.86度电,每天开8小时本应耗电6.88度,考虑到变频+房屋保温好,实际节能至少25%以上,按每天实际耗5度电来算,一个月就是150度

【长辈房】
KFR-26GW/WXDA1:制冷功率620W
每小时0.62度电,每天开8小时本应耗电4.968度,考虑到变频+房屋保温好,实际节能至少25%以上,按每天实际耗4度电来算,一个月就是120度

【儿童房】
KFR-35GW/WXDA1:制冷功率860W
现在没娃,每月耗电0度

【书房】
KFR-26GW/WXDA1:制冷功率620W
每小时0.62度电,每天开4小时本应耗电2.48度,考虑到变频+房屋保温好,实际节能至少25%以上,按每天实际耗2度电来算,一个月就是60度

总共加起来,夏季每个月光是空调耗电就700度了,按现在长沙的阶梯电价:
每月180度以下是0.588元/度
冬夏季第180-450度之间是按0.638元/度
冬夏季超过450度的部分要按0.888元/度
那我家夏季每月空调电费一共是(180度*0.588元/度)+(270度*0.638元/度)+(250度*0.888元/度)=500元


256平的复式洋房每月空调电费仅500元,我觉得可以接受了~~


回复 收藏 回复(3)条

使用道具 举报

432

帖子

0

原创值

860

金币

大四_装修达人

Rank: 4

积分
219
发表于 2017-07-19 14:20:46 来自手机 | 显示全部楼层
香颂26 发表于 2017-07-18 22:01:46
【53、空调:节能狂来告诉你为何我家48平的客餐厅仅需一台大3匹空调就够?】

多大的房间该配多大的空调, ...

回复

使用道具 举报

4104

帖子

1000

原创值

7888

金币

装修大学_博士生

溯洄辰时

Rank: 6Rank: 6

积分
2105

社区居民

发表于 2017-07-19 15:10:38 | 显示全部楼层
香颂26 发表于 2017-7-18 22:01
【53、空调:节能狂来告诉你为何我家48平的客餐厅仅需一台大3匹空调就够?】

多大的房间该配多大的空调 ...

香颂,你这又做内保温又换高级断桥的,20W分分钟破功啊
回复 回复(1)条

使用道具 举报

381

帖子

0

原创值

652

金币

大四_装修达人

Rank: 4

积分
200
发表于 2017-07-19 15:12:04 | 显示全部楼层
香颂26 发表于 2017-7-19 13:04
【54、空调:告诉你256平十室三厅每月空调电费只有500元是怎么做到的?】

节能是个永远的主题,但我并不 ...

我看你的帖子是跳着看的,俺没想到你是这样的土豪!  确实我说的是平常的三室或者四室的情况。
回复 回复(1)条

使用道具 举报

4104

帖子

1000

原创值

7888

金币

装修大学_博士生

溯洄辰时

Rank: 6Rank: 6

积分
2105

社区居民

发表于 2017-07-19 15:28:49 | 显示全部楼层
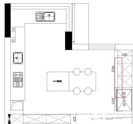
空调.JPG

我就想问一下,我中央空调的风盘置于红色标记的位置,应该不影响灶台的火焰哦?距离够远把?
回复 回复(1)条

使用道具 举报

1604

帖子

300

原创值

1787

金币

装修大学_研究生

Rank: 5Rank: 5

积分
1219
 楼主| 发表于 2017-07-19 15:58:33 | 显示全部楼层
本帖最后由 香颂26 于 2020-4-15 12:55 编辑
林月如 发表于 2017-7-19 15:10
香颂,你这又做内保温又换高级断桥的,20W分分钟破功啊

留影说过一句话,他港:你这20W只怕哈是材料钱……

内保温的材料其实并不贵,贵的是人工。我没打算请师傅做,准备继续奴役我家属……
回复 回复(1)条

使用道具 举报

1604

帖子

300

原创值

1787

金币

装修大学_研究生

Rank: 5Rank: 5

积分
1219
 楼主| 发表于 2017-07-19 16:00:18 | 显示全部楼层
yangfan 发表于 2017-7-19 15:12
我看你的帖子是跳着看的,俺没想到你是这样的土豪!  确实我说的是平常的三室或者四室的情况。

是哒是哒,如果是三室或四室,每个房间都住着人,使用率高,所有的内机都同时开起,或者开个80%以上,那多联机是要比风管机省电些的。
风管机的一级能效贵,所以我特意把需要长时间开的房间不装风管机,装一级能效的挂机(穷啊没办法)
回复

使用道具 举报

1604

帖子

300

原创值

1787

金币

装修大学_研究生

Rank: 5Rank: 5

积分
1219
 楼主| 发表于 2017-07-19 16:01:00 | 显示全部楼层
林月如 发表于 2017-7-19 15:28
我就想问一下,我中央空调的风盘置于红色标记的位置,应该不影响灶台的火焰哦?距离够远把?

没数字,看起来有至少三米多远?那不要紧咧。。。
回复 回复(1)条

使用道具 举报

4104

帖子

1000

原创值

7888

金币

装修大学_博士生

溯洄辰时

Rank: 6Rank: 6

积分
2105

社区居民

发表于 2017-07-19 16:01:47 | 显示全部楼层
香颂26 发表于 2017-7-19 15:58
留影说过一句话,他港:你这20W只怕哈是材料钱……

内保温的材料其实并不贵,贵的是人工。我没打算请 ...

主要说的断桥。。。。高级的怕么要花费几万了

还有你影音室的配置等等7788的加起来20W分分钟。。。。花光
回复 回复(1)条

使用道具 举报

27

帖子

0

原创值

41

金币

大一_装修新生

Rank: 1

积分
14
发表于 2017-07-19 16:02:57 | 显示全部楼层
这个一定要学习下
回复

使用道具 举报

您需要登录后才可以回帖 登录 | 立即注册

本版积分规则